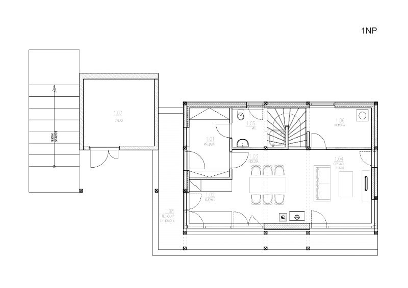
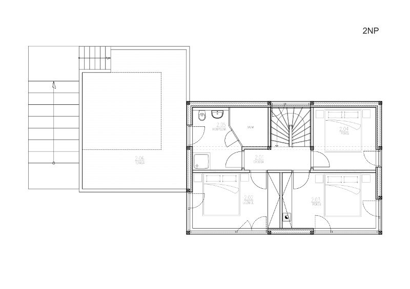
Tato dřevostavba je navržena do prostředí svahů Českého ráje a dispozičně uspořádána pro mladou rodinu s dětmi.
Dřevostavba se skládá ze dvou podlaží, kde v 1NP se nachází společné obytné prostory orientovány na jih a v 2NP jsou oddělené soukromé pokoje. Ze společných obytných prostor je umožněn přímý vstup na venkovní terasu 1 NP. K domu je připojen sklad, v jehož 2NP se nachází prostorná terasa o 40 m2.
Dřevostavba je navržena v nízkoenergetickém standardu s konstrukcí těžkého dřevěného skeletu.






Čerstvé novinky ze světa dřevostaveb