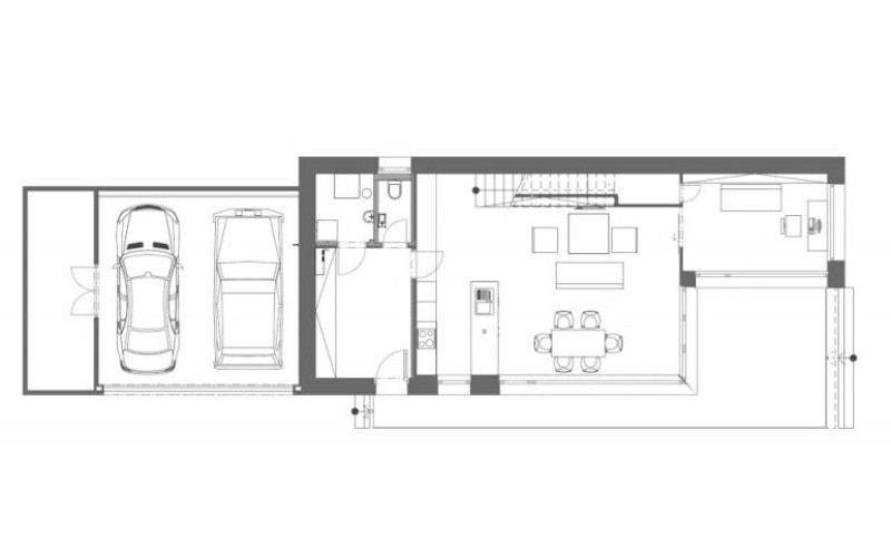
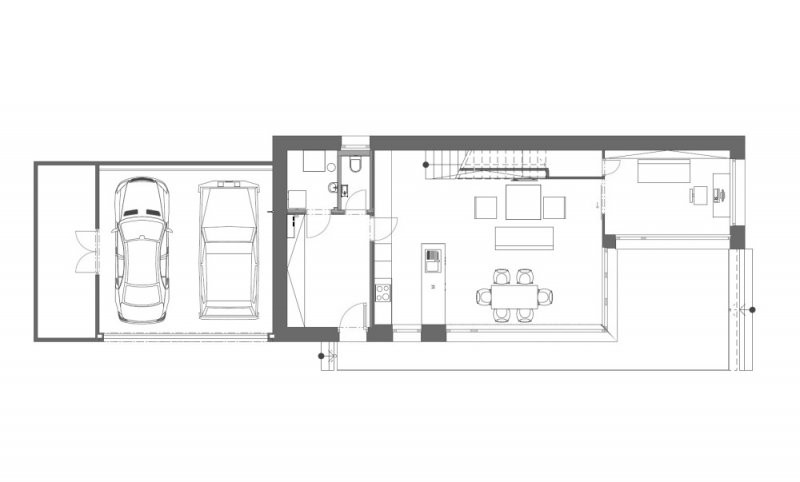
Pasivní rodinný dům obsahuje dvě nadzemní podlaží. V prvním se nachází při jižní straně vstup, tento je přístupný po vyvýšené dřevěné terase. Dispozice dále sestává ze zádveří, technické místnosti, samostatného WC, obývacího prostoru s kuchyňským koutem, pracovny a skladu. Přes obývací pokoj lze dále pokračovat na venkovní terasu.
2.NP je přístupné po dřevěném schodišti, dispozice sestává z chodby, ložnice, koupelny, samostatného WC a dvou pokojů.
Součástí stavby je také oddělený sklad, který je propojený s domem plochou střechou, která tak tvoří kryté stání pro automobil.
![]()

















Čerstvé novinky ze světa dřevostaveb