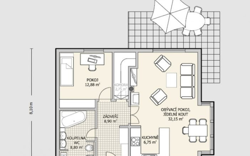
Dřevostavba na klíč s plným komfortem pro dvou člennou rodinu v přízemí. V podkroví dřevostavby dva pokoje + koupelna.
Stavíme dřevostavby nejen z našeho katalogu, ale také dle individuálního přání našeho klienta.
Díky našim kontaktům nabízíme našim klientům tzv. služby od A po Z. Pomáháme se zprostředkováním pozemku, či prodeje bytu, s realizací a stavbou dřevostavby, můžeme doporučit a zprostředkovat dodavatele podlah a jiného vybavení dřevostavby jako např. kuchyňské linky atd.




Čerstvé novinky ze světa dřevostaveb