DACH+HOLZ 485x100

Rodinný dům 01 - dřevostavba na klíč

Dodavatel: MARTINICE GROUP s.r.o.

Parametry projektu Rodinný dům 01 - dřevostavba na klíč

Společnost PILA MARTINICE s.r.o.
Charakteristika domu samostatný
Počet podlaží Jednopodlažní
Generačnost Jednogenerační
Konstrukční systém Panelový
Podlahová plocha (užitná) 75
Zastavěná plocha 90
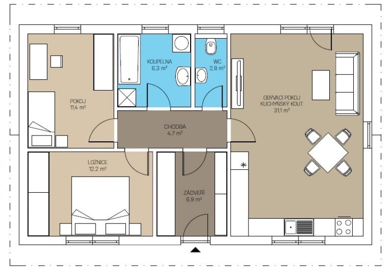
Dispozice 3+kk/3+1
ZOBRAZIT DALŠÍ PROJEKTY FIRMY

Popis projektu Rodinný dům 01 - dřevostavba na klíč

Omrzelo vás již bydlení v panelákovém bytě 2+1 na sídlišti a toužíte po životě v rodinném domečku se zahradou? Pak je náš bungalov MG 101 tím pravým řešením. Je jako stvořený pro mladé rodiny. Dispoziční řešení 3 + kk, kde ústřední místností domu je obývací pokoj spojený s kuchyňským koutem a jídelnou, přináší dostatečný prostor pro příjemné bydlení. Prostorné zádveří nabízí prostor pro umístění botníku i šatní skříně. Centrální prostor domu tvoří malá chodba, z které se dostaneme do ložnice i dětského pokoje. Velmi komfortně je řešeno sociální zázemí „stojedničky", kde je samostatná místnost WC s toaletou a umývátkem a také koupelny – tady je dostatek prostoru pro umístění jak pračky se sušičkou, tak i kotle s ohřívačem vody.

Zeptejte se na tento produkt

Sdílet obsah

Partneři projektu

news arrowČerstvé novinky ze světa dřevostaveb

Přihlaste se k odběru zadáním e-mailu