Rodinný dům 013 - dřevostavba na klíč
Dodavatel:
MARTINICE GROUP s.r.o.
Parametry projektu Rodinný dům 013 - dřevostavba na klíč
| Společnost | MARTINICE GROUP s.r.o. |
| Charakteristika domu | samostatný |
| Počet podlaží | Vícepodlažní |
| Generačnost | Jednogenerační |
| Konstrukční systém | Panelový |
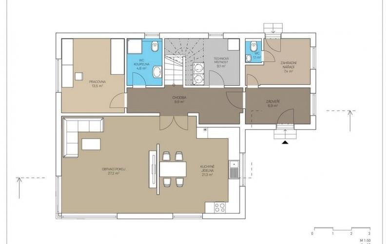
| Podlahová plocha (užitná) | 186 m2 |
| Zastavěná plocha | 124 m2 |
| Dispozice | 5+kk/5+1 |







Čerstvé novinky ze světa dřevostaveb