Rodinný dům 02 - dřevostavba na klíč

Dodavatel: MARTINICE GROUP s.r.o.

Parametry projektu Rodinný dům 02 - dřevostavba na klíč

Společnost MARTINICE GROUP s.r.o.
Charakteristika domu samostatný
Počet podlaží Jednopodlažní
Generačnost Jednogenerační
Konstrukční systém Panelový
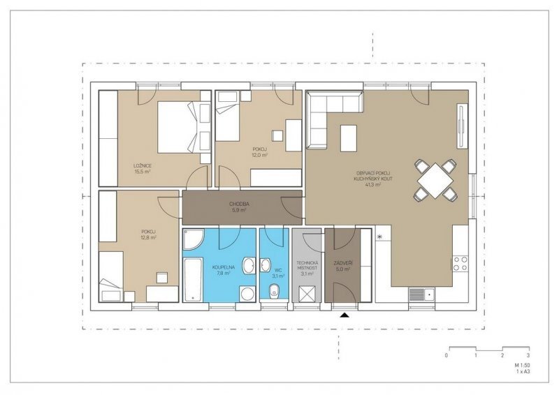
Podlahová plocha (užitná) 106 m2
Zastavěná plocha 124 m2
Dispozice 4+kk/4+1
ZOBRAZIT DALŠÍ PROJEKTY FIRMY

Popis projektu Rodinný dům 02 - dřevostavba na klíč

Jste čtyřčlenná rodina a hledá nové bydlení pro spokojený život? Rodinný dům MG 102 je přesně tím domem, který bude vyhovovat vašim představám včetně příznivé ceny. Dispozice domu je velmi variabilní, jelikož místnosti zádveří, komory, WC a koupelny lze dispozičně uspořádat tak, abyste z venku vcházeli zádveřím do chodby místo do obývacího pokoje. Z komory lze vytvořit spíž přímo sousedící s kuchyňským koutem. Komfortně navržený obývací pokoj s jídelním a kuchyňským koutem dává dostatek prostoru pro scházení celé rodiny a trávení společného času. Vše je doplněné dvěma dětskými pokoji, či pracovnou a prostornou ložnicí. Fasádu domu lze oživit dřevěným obkladem. Samozřejmostí je možnost doplnění o venkovní terasu, na které můžete trávit krásné slunečné dny.

Zeptejte se na tento produkt

Sdílet obsah

Partneři projektu

news arrowČerstvé novinky ze světa dřevostaveb

Přihlaste se k odběru zadáním e-mailu