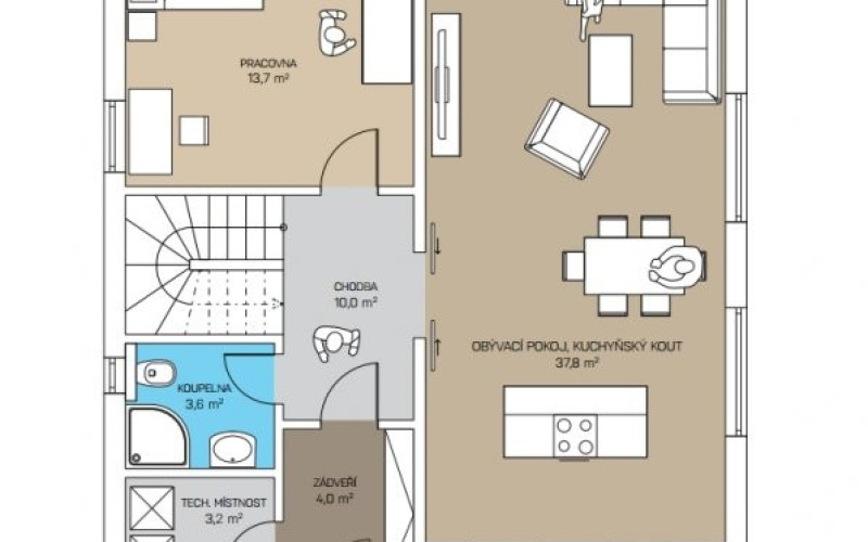
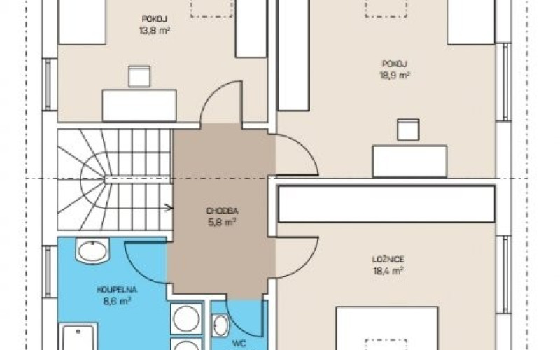
Dispozičně velmi dobře navržený rodinný dům, ve kterém je vše, co potřebuje rodina k pohodlnému žití. Hodí se také pro venkovské bydlení díky sedlovému tvaru střechy a podkroví. Do domu vejdeme zádveřím, ve kterém může být umístěna šatní skříň a botník. Na zádveří navazuje komora, ve které můžeme mít umístěn kotel a ohřívač vody, ale i pračku se sušičkou. Součástí přízemí je i koupelna. Do té se dostaneme z chodby, ze které je přístupný i pokoj a obývací pokoj s kuchyňským a jídelním koutem. Po krásném bukovém schodišti, které je jednou z dominant domu se dostáváme do podkroví, jež tvoří dva dětské pokoje a ložnice. Komfortně zařízené podkroví obsahuje i koupelnu a místnost samostatného WC. Střešní okna v pokojích zajišťují výborné prosvětlení všech pokojů.
Rodinný dům 09 - dřevostavba na klíč
Dodavatel:
MARTINICE GROUP s.r.o.
Parametry projektu Rodinný dům 09 - dřevostavba na klíč
| Společnost | MARTINICE GROUP s.r.o. |
| Charakteristika domu | samostatný |
| Počet podlaží | Vícepodlažní |
| Generačnost | Jednogenerační |
| Konstrukční systém | Panelový |
| Podlahová plocha (užitná) | 140 m2 |
| Zastavěná plocha | 86 m2 |
| Dispozice | 5+kk/5+1 |



Čerstvé novinky ze světa dřevostaveb