DACH+HOLZ 485x100

Rodinný dům 106 - dřevostavba na klíč

Dodavatel: MARTINICE GROUP s.r.o.

Parametry projektu Rodinný dům 106 - dřevostavba na klíč

Společnost PILA MARTINICE s.r.o.
Charakteristika domu samostatný
Počet podlaží Jednopodlažní
Generačnost Jednogenerační
Konstrukční systém Panelový
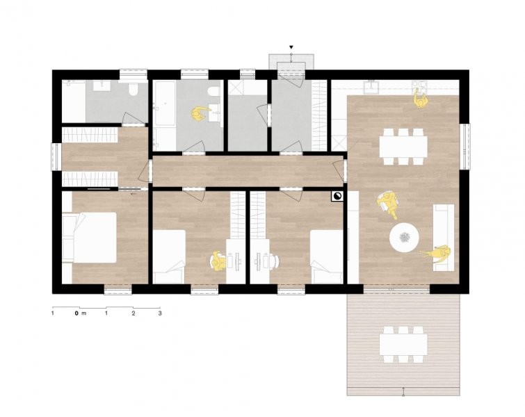
Podlahová plocha (užitná) 107,80
Zastavěná plocha 128,80
Dispozice 4+kk/4+1
ZOBRAZIT DALŠÍ PROJEKTY FIRMY

Popis projektu Rodinný dům 106 - dřevostavba na klíč

Jedná se o tvarově jednoduchý přízemní dům o dispozici 4+kk. Hlavní výhodou tohoto domu je vytvoření zcela oddělené rodičovské části domu s vlastní šatnou a koupelnou.

Tento dům umožňuje variantní provedení typu střechy, viz vizualizace.

Zeptejte se na tento produkt

Sdílet obsah

Partneři projektu

news arrowČerstvé novinky ze světa dřevostaveb

Přihlaste se k odběru zadáním e-mailu