Rodinný dům 204 - dřevostavba na klíč

Dodavatel: MARTINICE GROUP s.r.o.

Parametry projektu Rodinný dům 204 - dřevostavba na klíč

Společnost MARTINICE GROUP s.r.o.
Charakteristika domu samostatný
Počet podlaží Vícepodlažní
Generačnost Jednogenerační
Konstrukční systém Panelový
Podlahová plocha (užitná) 118,1 m2
Zastavěná plocha 75,1 m2
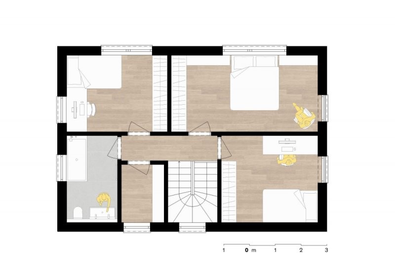
Dispozice 5+kk/5+1
ZOBRAZIT DALŠÍ PROJEKTY FIRMY

Popis projektu Rodinný dům 204 - dřevostavba na klíč

RD 204 je patrový dům o dispozici 5+kk. Hlavní výhodou tohoto domu je plnohodnotně využitelné podkroví, které je dáno vysoko umístěnou šikminou a menším sklonem střechy.

Tento dům umožňuje variantní provedení typu střechy, viz vizualizace.

Zeptejte se na tento produkt

Sdílet obsah

Partneři projektu

news arrowČerstvé novinky ze světa dřevostaveb

Přihlaste se k odběru zadáním e-mailu