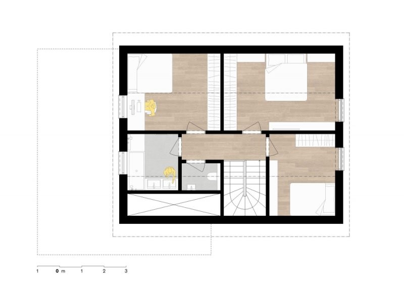
Jedná se o patrový dům se šikmou střechou, který je hmotově tvořen samotným domem a krytým parkovacím stáním se zahradním domkem. V přízemí domu se nachází krytý vstup se zádveřím, technická místnost, koupelna, pracovna a hlavní obytná místnost se schodištěm. V podkroví jsou 2 pokoje, ložnice, koupelna a samostatná toaleta.
Tento dům umožňuje variantní provedení typu střechy, viz vizualizace.






Čerstvé novinky ze světa dřevostaveb