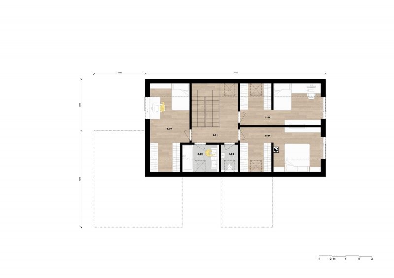
Jedná se o tvarově jednoduchý patrový dům, který je hmotově tvořen hlavní hmotou domu s obytnou částí, garáží a krytou terasou. V přízemí domu se nachází zádveří, garáž, pracovna, hlavní obytná místnost, toaleta, technická místnost a schodiště. V podkroví jsou 2 pokoje, ložnice, koupelna a samostatná toaleta.
Rodinný dům 310 - dřevostavba na klíč
Dodavatel:
MARTINICE GROUP s.r.o.
Parametry projektu Rodinný dům 310 - dřevostavba na klíč
| Společnost | MARTINICE GROUP s.r.o. |
| Charakteristika domu | samostatný |
| Počet podlaží | Vícepodlažní |
| Generačnost | Jednogenerační |
| Konstrukční systém | Panelový |
| Podlahová plocha (užitná) | 189,8 m2 |
| Zastavěná plocha | 153,9 m2 |
| Dispozice | 5+kk/5+1 |





Čerstvé novinky ze světa dřevostaveb