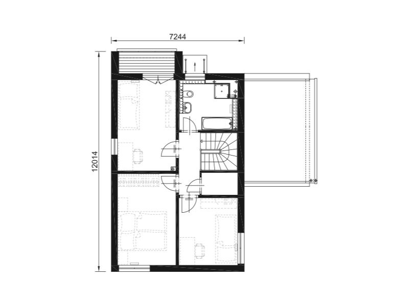
Charakteristickým rysem domu je plochá střešní konstrukce. Dalším zástupcem této typové řady nazvané ROHE je dvoupodlažní, ale větší rodinný dům s dispozicí 5+1 s garáží. Tento dům vychází z nejprodávanějšího domu z produkce RD Rýmařov oblíbeného NOVA 101. Jeho součástí je lodžie, dřevěné obložení a stříška nad vchodem.
ROHE 101 - dřevostavba na klíč
Dodavatel:
RD Rýmařov s.r.o.
Parametry projektu ROHE 101 - dřevostavba na klíč
| Společnost | RD Rýmařov s.r.o. |
| Charakteristika domu | samostatný |
| Počet podlaží | Vícepodlažní |
| Generačnost | Jednogenerační |
| Konstrukční systém | Panelový |
| Podlahová plocha (užitná) | 128,03 m2 |
| Dispozice | 5+kk/5+1 |
| Cena dřevostavby na klíč (vč. DPH) | 4 707 583,00 Kč |






Čerstvé novinky ze světa dřevostaveb