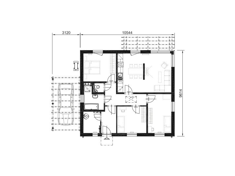
Jednopodlažní typová dřevostavba ROHE 98 Vás překvapí dispozicí 4+1, ke které náleží ještě garážové stání. Jednoduchý tvar domu a rovná střecha, to jsou typické prvky řady ROHE od RD Rýmařov. Díky nim jsou také tyto domy energeticky úsporné a velmi moderní. ROHE 98 je jediným bungalovem v této řadě.
ROHE 98 - dřevostavba na klíč
Dodavatel:
RD Rýmařov s.r.o.
Parametry projektu ROHE 98 - dřevostavba na klíč
| Společnost | RD Rýmařov s.r.o. |
| Charakteristika domu | samostatný |
| Počet podlaží | Jednopodlažní |
| Generačnost | Jednogenerační |
| Konstrukční systém | Panelový |
| Podlahová plocha (užitná) | 82,49 m2 |
| Dispozice | 4+kk/4+1 |
| Cena dřevostavby na klíč (vč. DPH) | 3 314 645,00 Kč |







Čerstvé novinky ze světa dřevostaveb