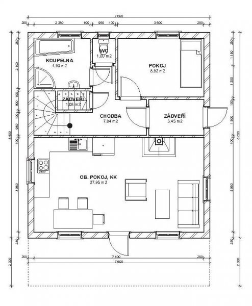
Dispozičně je roubenka na klíč Zuzana řešena pro rekreační účely i rodinné bydlení pro 4.-6. osob. Roubenkana klíč Zuzana je svými rozměry vhodná i na střední stavební parcely od 900 m2. Roubenka na klíč Zuzana je svým tradičním vzhledem vhodná do podhorské i horské krajiny, CHKO i do obcí s tradiční stylovou zástavbou.
Podélné spoje - jedinečná "pero - drážka"- rohové spoje klasicky na rybinu.
Roubenku na klíč Zuzanu vyrábíme z hraněného masivu o průřezu 26/24 cm ( možnost až 30/30cm ) - splňuje technické parametry pro rodinné bydlení.
NÁŠ TIP - výhodná roubenka na klíč s bočním krytým stáním, použitelným také jako zastřešená terasa.





Čerstvé novinky ze světa dřevostaveb