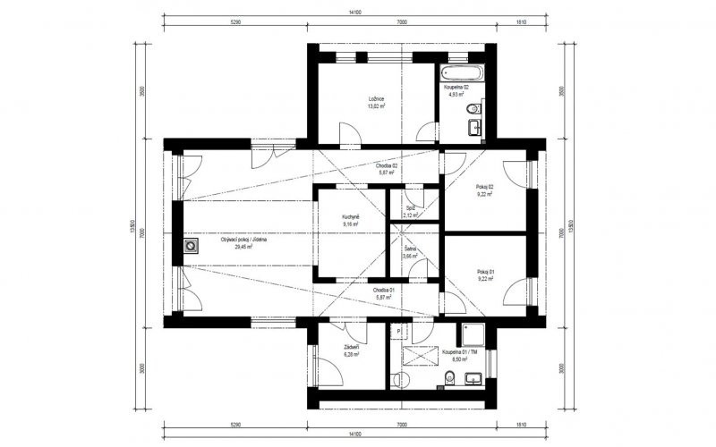
Bungalov skandinávského stylu Scandic 2-106 nabízí na užitné ploše přes 106 m2 velkorysý, světlý obývací pokoj s vestavěnou kuchyní. Navíc 3 ložnice, 2 koupelny a dostatek úložných prostor v samostatné šatně nebo spíži.
Scandic 2-106 - dřevostavba na klíč
Dodavatel:
Haas Fertigbau s.r.o.
Parametry projektu Scandic 2-106 - dřevostavba na klíč
| Společnost | Haas Fertigbau s.r.o. |
| Web | www.haas-fertigbau.cz/drevostavby/scandic-2-106 |
| Charakteristika domu | samostatný |
| Počet podlaží | Jednopodlažní |
| Generačnost | Jednogenerační |
| Konstrukční systém | Panelový |
| Podlahová plocha (užitná) | 107,3 m2 |
| Zastavěná plocha | 136,84 m2 |
| Cena hrubé stavby (vč. DPH) | 4 970 000,00 Kč |
| Cena dřevostavby na klíč (vč. DPH) | 7 244 000,00 Kč |









Čerstvé novinky ze světa dřevostaveb