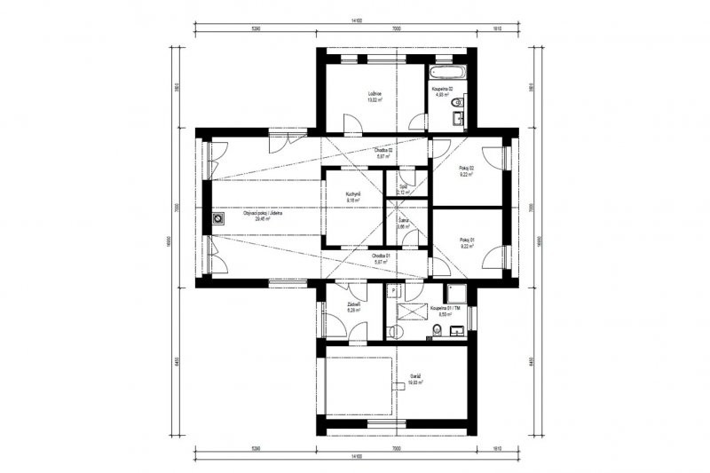
Bungalov Scandic 3-126 ze stejnojmenné řady Scandic, inspirované skandinávským stylem, je skvělým příkladem nového přístupu k bydlení. Jeho srdcem je velký obývací pokoj s kuchyňským koutem. Spolu s třemi dalšími pokoji, dvěma koupelnami s toaletou, šatnou a garáží má dům celkovou užitnou plochu přes 126 metrů čtverečních. Všimněte si výrazného prosklení, díky kterému je dům výrazně světlejší. I to je jeden z hlavních rysů nové řady domů Haas.
Scandic 3-126 - dřevostavba na klíč
Dodavatel:
Haas Fertigbau s.r.o.
Parametry projektu Scandic 3-126 - dřevostavba na klíč
| Společnost | Haas Fertigbau s.r.o. |
| Web | www.haas-fertigbau.cz/drevostavby/scandic-3-126 |
| Charakteristika domu | samostatný |
| Počet podlaží | Jednopodlažní |
| Generačnost | Jednogenerační |
| Konstrukční systém | Panelový |
| Podlahová plocha (užitná) | 127,13 m2 |
| Zastavěná plocha | 160,99 m2 |
| Dispozice | 4+kk/4+1 |
| Cena hrubé stavby (vč. DPH) | 5 430 000,00 Kč |
| Cena dřevostavby na klíč (vč. DPH) | 7 877 000,00 Kč |









Čerstvé novinky ze světa dřevostaveb