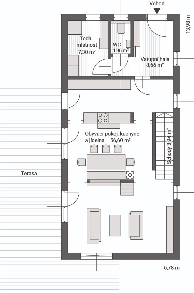
Sera 153 je největší z našich patrových domů. Nabízí velkorysý prostor pro rodinný život i vícegenerační soužití. Jeho nadčasový design a praktické řešení interiéru z něj dělají ideální volbu pro ty, kteří hledají bydlení kombinující moderní styl a maximální funkčnost.
Dům je perfektní volbou pro rodiny, které hledají dostatek prostoru a pohodlí pro všechny členy domácnosti. Nabízí nejen vzdušný interiér, ale také propojení se zahradou, což z něj dělá ideální místo pro každodenní život.
Tento dům zaručeně splní vaše nároky na moderní, komfortní a praktické bydlení. Díky svému efektivnímu uspořádání a prostorným místnostem poskytuje dokonalé zázemí i pro větší rodiny.





Čerstvé novinky ze světa dřevostaveb