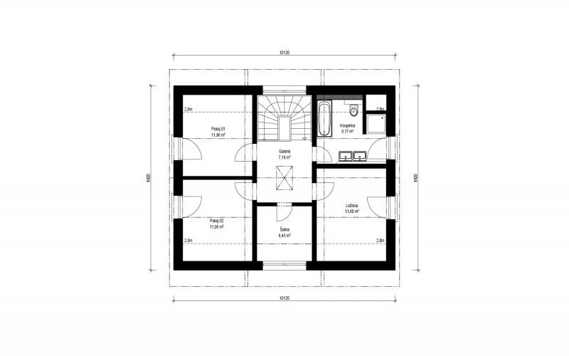
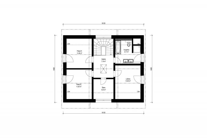
Patrový rodinný dům Skywood 2-126 nabízí celkem 126 m2 užitné plochy. Dispozice 4 + KK s garáží vám hned po vstupu do interiéru nabídne vstupní halu se schodištěm do patra. Z haly se vstupuje do velkého obývacího pokoje, spojeného s kuchyňským koutem a jídelnou, do technické místnosti s WC a do garáže. V patře jsou pak tři další pokoje, šatna a velká koupelna s WC.
Skywood 2-126 - dřevostavba na klíč
Dodavatel:
Haas Fertigbau s.r.o.
Parametry projektu Skywood 2-126 - dřevostavba na klíč
| Společnost | Haas Fertigbau s.r.o. |
| Web | www.haas-fertigbau.cz/drevostavby/skywood-2-126 |
| Charakteristika domu | samostatný |
| Počet podlaží | Jednopodlažní |
| Generačnost | Jednogenerační |
| Konstrukční systém | Panelový |
| Podlahová plocha (užitná) | 126,46 m2 |
| Zastavěná plocha | 85,21 m2 |
| Dispozice | 4+kk/4+1 |
| Cena hrubé stavby (vč. DPH) | 3 880 000,00 Kč |
| Cena dřevostavby na klíč (vč. DPH) | 6 584 000,00 Kč |












Čerstvé novinky ze světa dřevostaveb