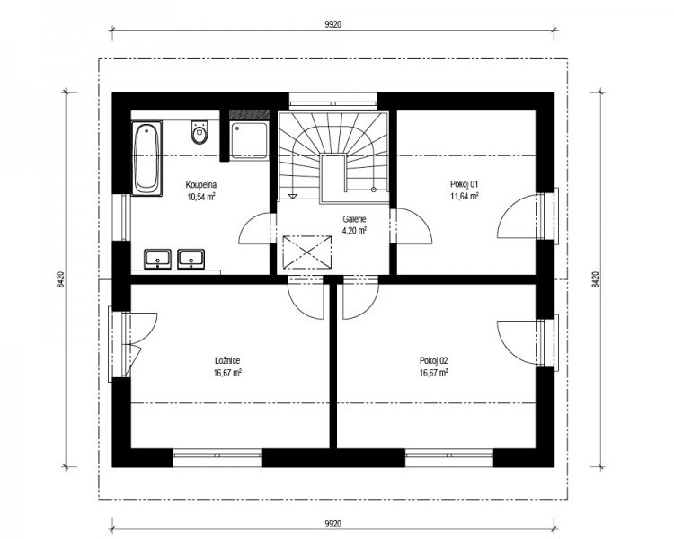
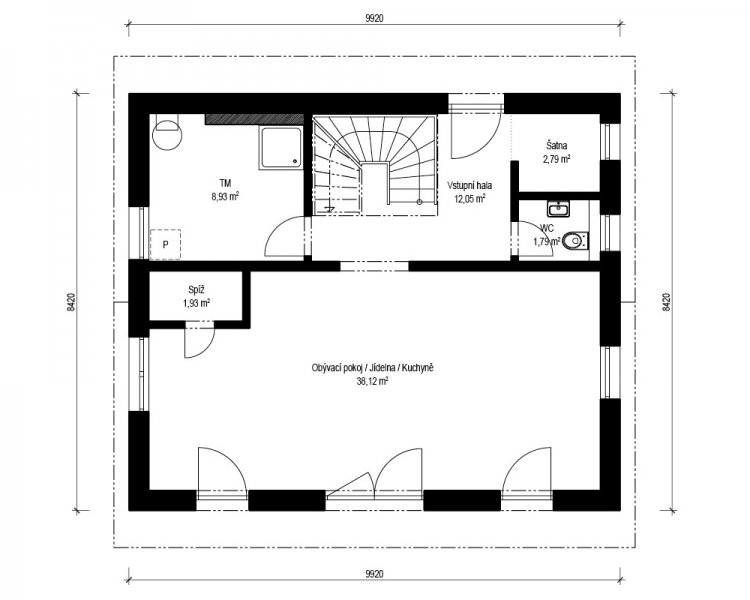
Rodinný dům Spring 2-125 nabízí na zastavěné ploše necelých 84 m2 užitnou plochu přes 125 m2 a dispozici 4 + KK. Ve vstupní hale je samostatná šatna, WC a technická místnost. Zbytek přízemí zabírá prostorný obývací pokoj s jídelnou a kuchyňským koutem doplněný o spižírnu. V patře jsou pak tři ložnice a velká koupelna.
Spring 2-125 - dřevostavba na klíč
Dodavatel:
Haas Fertigbau s.r.o.
Parametry projektu Spring 2-125 - dřevostavba na klíč
| Společnost | Haas Fertigbau s.r.o. |
| Web | www.haas-fertigbau.cz/drevostavby/spring-2-125 |
| Charakteristika domu | samostatný |
| Počet podlaží | Vícepodlažní |
| Generačnost | Jednogenerační |
| Konstrukční systém | Panelový |
| Podlahová plocha (užitná) | 125,33 m2 |
| Zastavěná plocha | 83,53 m2 |
| Dispozice | 4+kk/4+1 |
| Cena hrubé stavby (vč. DPH) | 4 140 000,00 Kč |
| Cena dřevostavby na klíč (vč. DPH) | 6 888 000,00 Kč |








Čerstvé novinky ze světa dřevostaveb