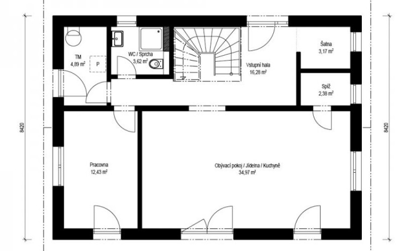
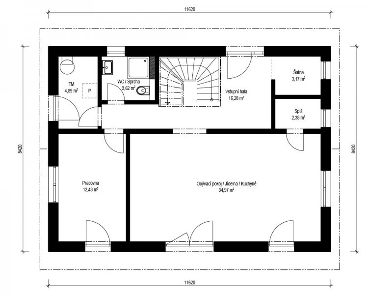
Užitná plocha 150 m2 s dispozice 6 + KK, to je dřevostavba Spring 4-150. V přízemí patrového rodinného domu najdete veliký obývací pokoj s jídelnou, kuchyňským koutem a oddělenou spíží, velkou pracovnu, šatnu, koupelnu a technickou místnost. V privátní zóně podkroví jsou 4 ložnice a veliká koupelna.
Spring 4-150- dřevostavba na klíč
Dodavatel:
Haas Fertigbau s.r.o.
Parametry projektu Spring 4-150- dřevostavba na klíč
| Společnost | Haas Fertigbau s.r.o. |
| Web | www.haas-fertigbau.cz/drevostavby/spring-4-150 |
| Charakteristika domu | samostatný |
| Počet podlaží | Vícepodlažní |
| Generačnost | Jednogenerační |
| Konstrukční systém | Panelový |
| Podlahová plocha (užitná) | 149,84 m2 |
| Zastavěná plocha | 97,84 m2 |
| Dispozice | Větší jak 5+1 |
| Cena hrubé stavby (vč. DPH) | 4 690 000,00 Kč |
| Cena dřevostavby na klíč (vč. DPH) | 7 725 000,00 Kč |








Čerstvé novinky ze světa dřevostaveb