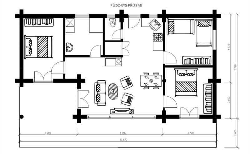
Přízemní srub s dispozicí 4+kk s přestřešenou terasou k využití jako menší bezbarierový rodinný domek či víkendový dům.
Srub u jezera - dřevostavba na klíč
Dodavatel:
SRUBY RAJEC, s. r. o.
Parametry projektu Srub u jezera - dřevostavba na klíč
| Společnost | SRUBY RAJEC, s. r. o. |
| Charakteristika domu | samostatný |
| Počet podlaží | Jednopodlažní |
| Generačnost | Jednogenerační |
| Konstrukční systém | Sruby |
| Podlahová plocha (užitná) | 99 m2 |
| Zastavěná plocha | 89 m2 |
| Dispozice | 4+kk/4+1 |
| Cena hrubé stavby (vč. DPH) | 1 150 000,00 Kč |
| Cena dřevostavby na klíč (vč. DPH) | 4 710 000,00 Kč |



Čerstvé novinky ze světa dřevostaveb