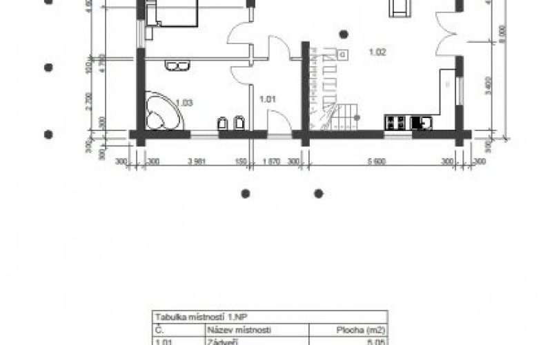
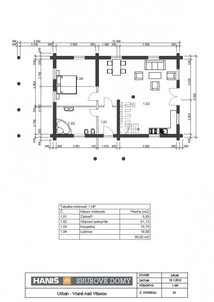
Dispozičně je podkrovní srub na klíč Jirka navržen tak, aby splňoval požadavky pro bydlení až 6. členné rodiny.
Srub na klíč je svými rozměry vhodný na střední stavební parcely od 1000 m2.
Srubový dům na klíč Jirka je svým tradičním vzhledem vhodný do téměř jakékoliv krajiny i se zástavbou.
Srub na klíč Jirka je možné vybavit i prosklenými štíty, které od podzimu do jara pomáhají vytápět interiér. V letních měsících, kdy je slunce na obloze vysoko, chrání slunečnímu svitu větší štítové přesahy střechy.
NÁŠ TIP - srub na klíč Jirka, je srub, který svými rozměry splní přání i početnější rodině.










Čerstvé novinky ze světa dřevostaveb