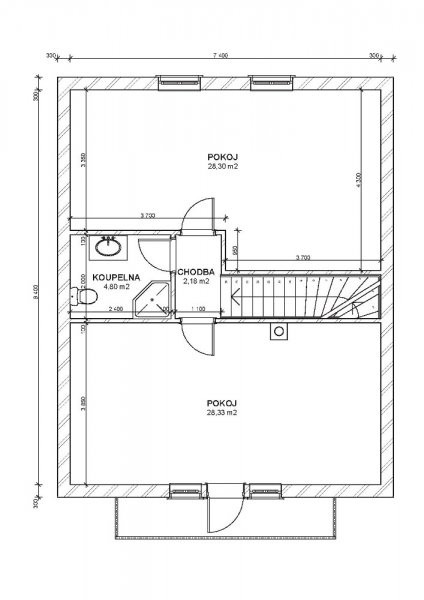
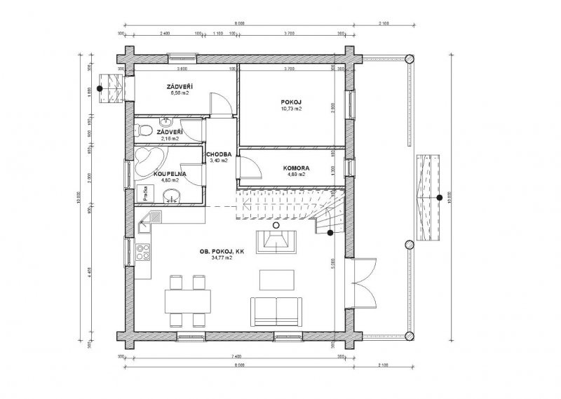
Dispozičně je srub na klíč Radek - "Nejkrásnější dřevostavba roku 2007" navržen tak, aby splňoval požadavek bydlení 4 členné rodiny.
Srub na klíč Radek je svými rozměry vhodný na střední stavební parcely od 900 m2. Srubový dům na klíč Radek je svým tradičním vzhledem vhodný do téměř jakékoliv krajiny i se zástavbou.
Srub na klíč Radek je možné vybavit prosklenými štíty, které od podzimu do jara pomáhají vytápět interiér. V letních měsících, kdy je slunce na obloze vysoko, chrání slunečnímu svitu větší štítové přesahy střechy.
NÁŠ TIP - nejoblíbenější stavba - srub na klíč Radek - výborný poměr cena/velikost - dřevostavba roku 2007.






Čerstvé novinky ze světa dřevostaveb