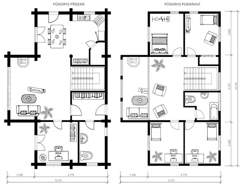
Srub střední velikosti se 4 ložnicemi a prostorným obývacím pokojem propojeným s kuchyní. Obývací pokoj prosvětluje prosklený štít, galerie v podkroví tvoří příjemnou relaxační zónu domu.
Vera - dřevostavba na klíč
Dodavatel:
SRUBY RAJEC, s. r. o.
Parametry projektu Vera - dřevostavba na klíč
| Společnost | SRUBY RAJEC, s. r. o. |
| Charakteristika domu | samostatný |
| Počet podlaží | Vícepodlažní |
| Generačnost | Jednogenerační |
| Konstrukční systém | Sruby |
| Podlahová plocha (užitná) | 243 m2 |
| Obytná plocha | 205 m2 |
| Zastavěná plocha | 113 m2 |
| Dispozice | Větší jak 5+1 |
| Cena hrubé stavby (vč. DPH) | 1 970 000,00 Kč |
| Cena dřevostavby na klíč (vč. DPH) | 9 100 000,00 Kč |



Čerstvé novinky ze světa dřevostaveb