VEXTA B123 TREND - dřevostavba na klíč
Dodavatel:
VEXTA a.s.
Parametry projektu VEXTA B123 TREND - dřevostavba na klíč
| Společnost | VEXTA a.s. |
| Charakteristika domu | samostatný |
| Počet podlaží | Jednopodlažní |
| Generačnost | Jednogenerační |
| Konstrukční systém | Panelový |
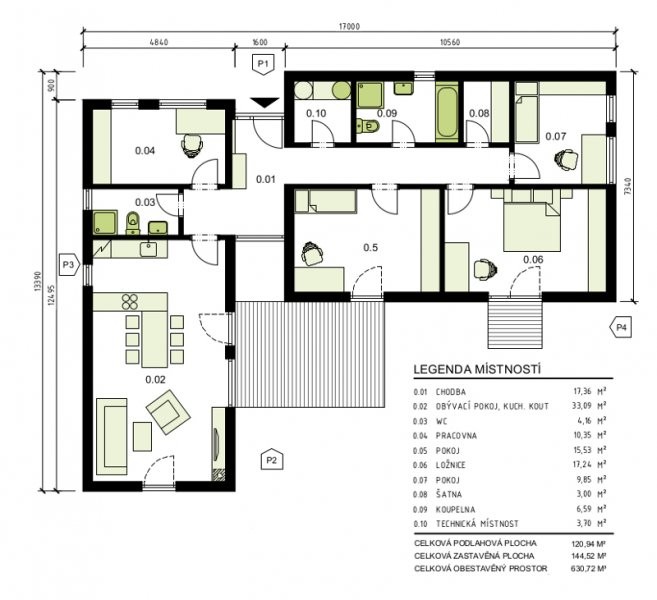
| Podlahová plocha (užitná) | 122,6 m2 |
| Zastavěná plocha | 151,0 m2 |
| Dispozice | 5+kk/5+1 |
| Sklon střechy | 22 |
| Cena hrubé stavby (vč. DPH) | 2 356 480 |
| Cena dřevostavby na klíč (vč. DPH) | 5 148 640 |
Popis projektu VEXTA B123 TREND - dřevostavba na klíč
Pokud máte větší pozemek a hledáte pro svoji velkou rodinu pohodlný bungalov 5+kk, právě jste ho našli. Bungalov B123 je navržen na půdorysu ve tvaru L, což zaručuje naprostý klid a soukromí na terase, která je ze 2 stran chráněna hmotou domu. Nemusíte se tak obávat zvědavých pohledů od sousedů, zatímco budete na terase grilovat.
Interiér domu je prakticky členěn na společenskou a privátní část. Společenskou tvoří velkorysý obytný prostor propojený s kuchyňským koutem a jídelnou. Dokonalé prosvětlení interiéru denním světlem a jeho přirozené propojení se zahradou mají na starosti velká francouzská okna. V této části domu najdeme také místnost, která může sloužit jako pracovna případně hostinský pokoj. K této místnosti přiléhá menší koupelna s toaletou.
V privátní části domu jsou navrženy 3 ložnice s praktickými úložnými prostory, z nichž 2 mají francouzská okna s výstupem na terasu. Nechybí ani velká koupelna s vanou i sprchovým koutem, samostatná šatna a technická místnost.




Čerstvé novinky ze světa dřevostaveb