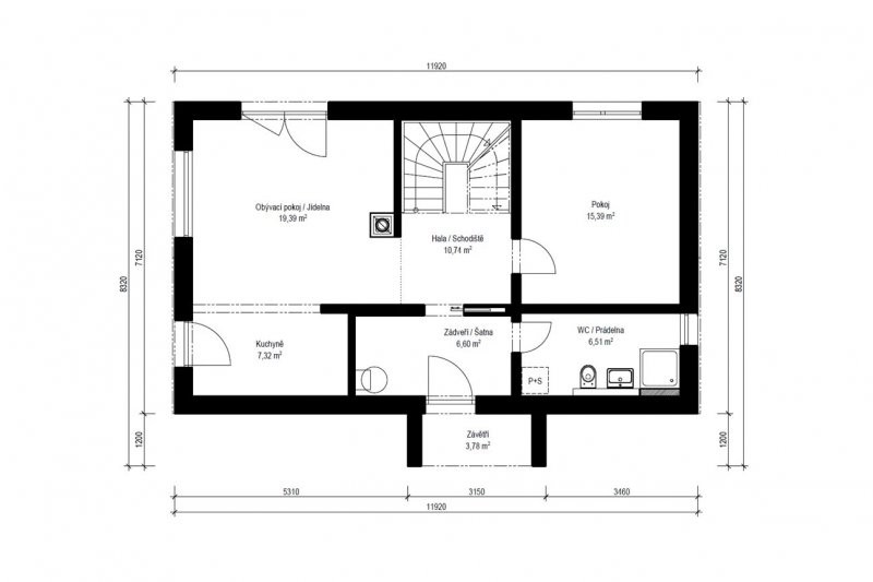
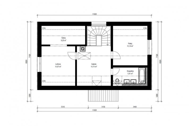
Dřevostavba Videra 1-126 se sedlovou střechou ale moderní tváří nabízí na užitné ploše přes 126 m2 dispozici 4 + KK. Kterou doplňuje mnoho úložných prostor ve dvou šatnách, dvě koupelny a prostorná galerie v podkroví.
Videra 1-126 - dřevostavba na klíč
Dodavatel:
Haas Fertigbau s.r.o.
Parametry projektu Videra 1-126 - dřevostavba na klíč
| Společnost | Haas Fertigbau s.r.o. |
| Web | www.haas-fertigbau.cz/drevostavby/videra-1-126 |
| Charakteristika domu | samostatný |
| Počet podlaží | Vícepodlažní |
| Generačnost | Jednogenerační |
| Konstrukční systém | Panelový |
| Podlahová plocha (užitná) | 125,86 m2 |
| Zastavěná plocha | 88,65 m2 |
| Dispozice | 4+kk/4+1 |
| Cena hrubé stavby (vč. DPH) | 4 300 000,00 Kč |
| Cena dřevostavby na klíč (vč. DPH) | 7 100 000,00 Kč |













Čerstvé novinky ze světa dřevostaveb