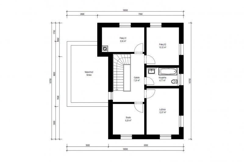
Moderní patrový dům Vita 1-112 nabízí bydlení s funkčně navrženou vnitřní dispozicí a dostatkem úložných prostor. Na celkové ploše 112 m2 nabízí tři prostorné samostatné pokoje, studio a koupelnu v podkroví. V přízemí obývací pokoj, jídelnu s kuchyní, dále halu, koupelnu s WC a také komoru. Z kuchyně a jídelny je snadný přístup na krytou terasu, která obytný prostor ještě zvětšuje.
Vita 1-112 - dřevostavba na klíč
Dodavatel:
Haas Fertigbau s.r.o.
Parametry projektu Vita 1-112 - dřevostavba na klíč
| Společnost | Haas Fertigbau s.r.o. |
| Web | www.haas-fertigbau.cz/drevostavby/vita-1-112 |
| Charakteristika domu | samostatný |
| Počet podlaží | Vícepodlažní |
| Generačnost | Jednogenerační |
| Konstrukční systém | Panelový |
| Podlahová plocha (užitná) | 111,69 m2 |
| Zastavěná plocha | 98,23 m2 |
| Dispozice | 5+kk/5+1 |
| Cena hrubé stavby (vč. DPH) | 5 030 000,00 Kč |
| Cena dřevostavby na klíč (vč. DPH) | 7 438 000 Kč |












Čerstvé novinky ze světa dřevostaveb