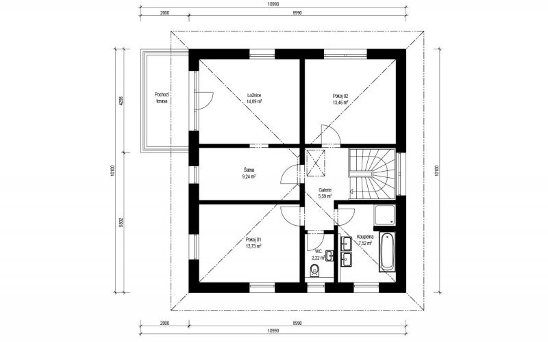
Rodinný dům Vita 2-145 je zástupcem rodiny městských vil. V půdorysu přízemí se nachází veliký obývací pokoj s kuchyňským koutem a jídelnou, pracovna, šatna, koupelna a technická místnost. V patře pak tři ložnice, šatna, koupelna a samostatné WC. Z jedné ložnice je navíc vstup na terasu.
Vita 2-145 - dřevostavba na klíč
Dodavatel:
Haas Fertigbau s.r.o.
Parametry projektu Vita 2-145 - dřevostavba na klíč
| Společnost | Haas Fertigbau s.r.o. |
| Web | www.haas-fertigbau.cz/drevostavby/vita-2-145 |
| Charakteristika domu | samostatný |
| Počet podlaží | Vícepodlažní |
| Generačnost | Jednogenerační |
| Konstrukční systém | Panelový |
| Podlahová plocha (užitná) | 145,19 m2 |
| Zastavěná plocha | 99,4 m2 |
| Dispozice | 5+kk/5+1 |
| Cena hrubé stavby (vč. DPH) | 4 920 000,00 Kč |
| Cena dřevostavby na klíč (vč. DPH) | 7 910 000,00 Kč |












Čerstvé novinky ze světa dřevostaveb