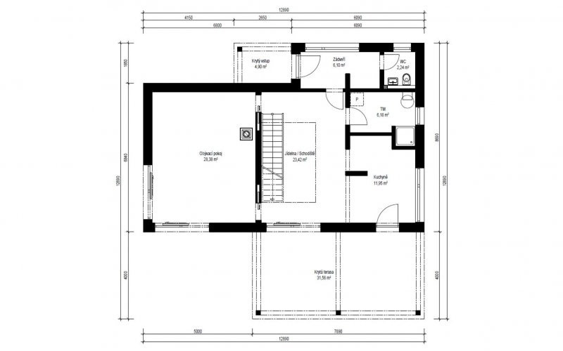
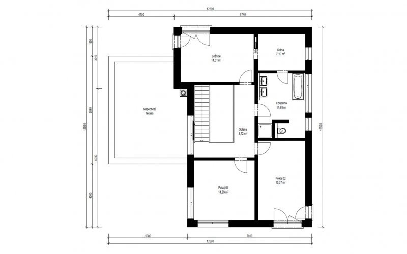
Prakticky celé přízemí patrového domu Vita 3-151 zabírá obrovský společný obývací prostor s jídelnou a kuchyní, odkuj je navíc přímý vstup na krytou terasu, která celý prostor ještě více rozšiřuje. Z galerie v patře pak vstoupíte do 3 pokojů a koupelny, která je přes šatnu navíc propojena s jednou z ložnic.
Vita 3-151 - dřevostavba na klíč
Dodavatel:
Haas Fertigbau s.r.o.
Parametry projektu Vita 3-151 - dřevostavba na klíč
| Společnost | Haas Fertigbau s.r.o. |
| Web | www.haas-fertigbau.cz/drevostavby/vita-3-151 |
| Charakteristika domu | samostatný |
| Počet podlaží | Vícepodlažní |
| Generačnost | Jednogenerační |
| Konstrukční systém | Panelový |
| Podlahová plocha (užitná) | 150,54 m2 |
| Zastavěná plocha | 135,9 m2 |
| Dispozice | 4+kk/4+1 |
| Cena hrubé stavby (vč. DPH) | 7 250 000,00 Kč |
| Cena dřevostavby na klíč (vč. DPH) | 10 181 000,00 Kč |











Čerstvé novinky ze světa dřevostaveb