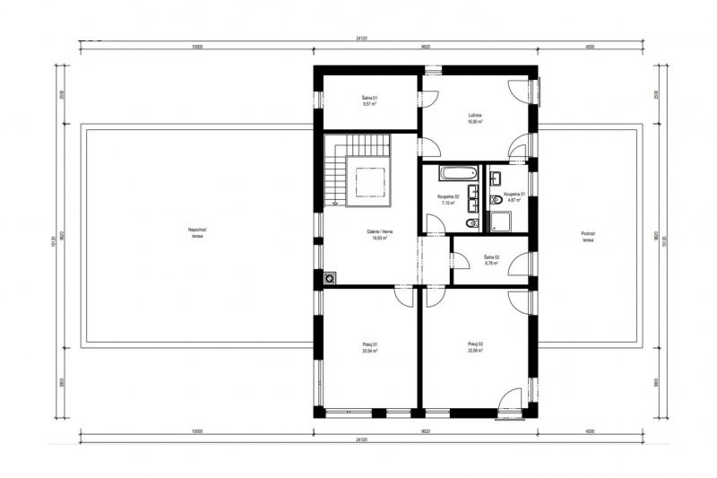
Největší dřevostavba v nabídce Haas je exkluzivní moderní dům Vita 5-288 s neuvěřitelnou užitnou plochou 288 m2. Dispozici 6 + KK s garáží doplňuje velké množství úložných prostor, tři koupelny, samostatné WC a nezbytná technická místnost. Součástí rodinného domu je několik teras v přízemí i v patře.
Vita 5-288 - dřevostavba na klíč
Dodavatel:
Haas Fertigbau s.r.o.
Parametry projektu Vita 5-288 - dřevostavba na klíč
| Společnost | Haas Fertigbau s.r.o. |
| Web | www.haas-fertigbau.cz/drevostavby/vita-5-288 |
| Charakteristika domu | samostatný |
| Počet podlaží | Vícepodlažní |
| Generačnost | Jednogenerační |
| Konstrukční systém | Panelový |
| Podlahová plocha (užitná) | 287,87 m2 |
| Zastavěná plocha | 284,95 m2 |
| Dispozice | Větší jak 5+1 |
| Cena hrubé stavby (vč. DPH) | 13 180 000,00 Kč |
| Cena dřevostavby na klíč (vč. DPH) | 18 627 000,00 Kč |












Čerstvé novinky ze světa dřevostaveb