Kuchyňka s jídelním koutem, obývací pokoj, koupelna, pokoj a prostorná terasa. To vše na úsporné půdorysné ploše, s efektivním využitím prostoru, bez nutnosti betonové základové konstrukce.
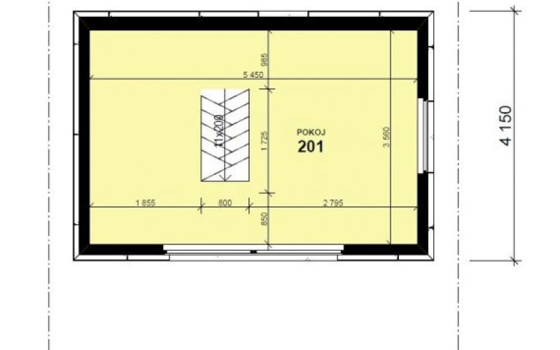
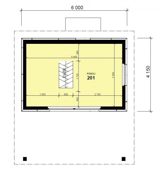
Vytvořili jsme pro Vás rovnou dvě varianty – přízemní a patrovou.
Cena přízemní varianty činí 541 000,- (bez DPH) a patrové 700 000,- (bez DPH). Postaveno do dvou měsíců a navíc určeno k celoroční rekreaci.








Čerstvé novinky ze světa dřevostaveb