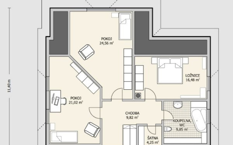
Luxusnější dřevostavba na klíč pro vícečlenné rodiny. Je velmi vhodný pro individuální úpravy.
Stavíme dřevostavby na klíč nejen z našeho katalogu, ale také dle individuálního přání našeho klienta.
Díky našim kontaktům nabízíme našim klientům tzv. služby od A po Z. Pomáháme se zprostředkováním pozemku, či prodeje bytu, s realizací a stavbou dřevostavby, můžeme doporučit a zprostředkovat dodavatele podlah a jiného vybavení dřevostavby jako např. kuchyňské linky atd.





Čerstvé novinky ze světa dřevostaveb