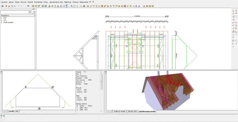
Dodáváme technologie pro výrobu střech ze sbíjených vazníků, dřevostaveb, bednění, software pro výpočet nosných konstrukcí, strojní zařízení (pily, lisy, rámovací stoly) styčníkové desky, stavební kování, spojovací prvky a materiál, protištěné spony.
MiTek Industries spol. s r.o.
Popis firmy
Dodavatel:
MiTek Industries spol. s r.o.
--> href="/katalog/projekty-drevostaveb?pid=127">ZOBRAZIT PROJEKTY
Vizitka firmy MiTek Industries spol. s r.o.
Kategorie:
Stroje a zařízení
Další kategorie: Software pro dřevostavby, Spojovací materiál a technika
Další kategorie: Software pro dřevostavby, Spojovací materiál a technika
| Logo firmy: |
|
Kontakt na firmu
MiTek Industries spol. s r.o.
Drážní 7, 627 00, Brno, Jihomoravský kraj, Česká republika
Telefon: +420 531 022 272
Mobil: +420 602 710 272
Web: www.mitek.cz
E-mail: mitek@mitek.cz















Čerstvé novinky ze světa dřevostaveb