Příběh celého procesu začíná právě u ní. Když totiž před lety s manželem přemýšleli nad pořízením vlastního bydlení, na jednom stavebním veletrhu je zaujala nabídka dodavatele dřevostaveb. Jednalo se o prodej pozemku s připraveným projektem rodinného domu v obci v těsném sousedství Prahy. Protože výhodná nabídka byla vázaná na samotný veletrh a dotyčná firma jim byla od začátku sympatická, dlouho neváhali.
O několik let později, posílena vlastní zkušeností, navrhla rodičům, jestli i oni nechtějí byt vyměnit za pohodlí vlastního domu. Dokonce jim našla pozemek na prodej ve stejné obci, aby si byli blíž a mohli si navzájem pomáhat. Pavel s Marií váhali – bydleli v klidné části Prahy, v blízkosti přírody i MHD a vzdušnou čarou byli jen o kilometr a půl dále. Byli také nadmíru spokojení se samotným bytem – v domě byl umístěný v nejvyšším podlaží, celé patro měli sami pro sebe a po třech čtvrtinách ho lemovala prostorná terasa.
„Vždy jsem říkala, že je to takový náš dům na domě,“ směje se Marie. Jenže tu byla i jedna zásadní nevýhoda, kterou si Marie užila do sytosti po operaci menisku – čtvrté patro bez výtahu. „Nejdřív jsem si začala zjišťovat, kolik by stálo do domu výtah pořídit, samozřejmě se souhlasem sousedů. Byli jsme druzí nejstarší obyvatelé, jinak tam žily samé mladé rodiny a ty by výtah tolik nepotřebovaly,“ pokračuje. „Zvažovala jsem i různé zdvižné plošiny na schody, ale to by stálo až moc peněz. Takže nakonec přeci jen zvítězil nový dům.“
Domeček na čtverečkovaném papíru
Aby pro ně stěhování dávalo smysl, stanovili hned na začátku jednoduchý požadavek – musí jít o bungalov, nejlépe bezbariérový. „Spolu se stavbou domu jsme měli v plánu postarat se i o nepohyblivou devadesátiletou babičku, která se neobejde bez vozíčku,“ vysvětluje Pavel. Chvilku společně bydleli ještě v původním bytě, ale bez výtahu s babičkou sami nedokázali manipulovat.
Podstatným faktorem celého projektu byla rychlost výstavby – záměr realizovali díky prodeji bytu, a stanovili si tak podmínku, že se do roka nastěhují. Jasně daný časový horizont jim prakticky sám o sobě určil technologii realizace, ve prospěch dřevostaveb navíc hovořila pozitivní zkušenost jejich dcery. Než ovšem plně dali na její doporučení dodavatele, Marie si udělala vlastní průzkum.
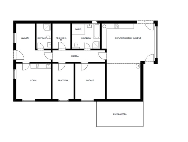
„Vyplynulo nám z toho, že nejlepší bude dát na zkušenost našich mladých, protože se nám líbilo solidní jednání firmy a precizní provedení realizovaných dřevostaveb,“ přibližuje definitivní rozhodnutí. Díky spokojenosti s původním bytem hned věděli, jak bude vypadat i dispozice domu – až na pár změn zůstala prakticky stejná. „Obsahoval dvě koupelny, což nám vyhovovalo a kvůli babičce měly obě zůstat. K tomu dvě ložnice, pracovnu a společné prostory,“ vypočítává Pavel.
„I rozložení místností je velmi podobné – zůstalo, co nám vyhovovalo, a zbytek prošel drobnými úpravami. Jen zimní zahrada je úplná novinka.“ Základní představu následně nakreslili spolu s dcerou na čtverečkovaný papír, předali projektantce a byli připraveni na kolotoč schůzek a navazujícího vyřizování všech povolení.

Na památku: Zařízení obývacího pokoje zůstalo i přes stěhování prakticky stejné, včetně kouta vzpomínek. „V rohu máme na památku různé drobnosti z cest. Máme sošky z Egypta, Zanzibaru, Kuby i Floridy,“ ukazuje Marie. Foto: Martin Zeman

Zpoždění: Kuchyně je jedním z důvodů zpoždění dokončení domu. „Čekali jsme asi šest týdnů jen na dodání a pak trvalo, než se vše konečně smontovalo,“ vzpomíná Marie. Foto: Martin Zeman

Foto: Martin Zeman
Do roka a pár měsíců
Jak už to bývá, když se to nejméně hodí, dojde ke zpožděním a komplikacím. Jednou z nich byl samotný projekt, jehož zhotovení se oproti očekávání protáhlo. Výraznější zádrhely představovaly limity spojené s územním rozhodnutím a ohlášením stavby. Parcela se totiž nacházela v oblasti obce, na kterou již bylo vydané územní rozhodnutí z počátku tisíciletí, podle kterého se v této lokalitě měly vybudovat ulice plné totožných dvoupatrových domků se sedlovou střechou a štítem situovaným do ulice. Přestože k realizaci záměru nakonec nedošlo, návrh bungalovu se dvěma protilehlými pultovými střechami úřady povolit nechtěly.
„Žádná stavba v okolí tomu původnímu plánu neodpovídá, ale vesměs mají druhé patro a sedlovou střechu,“ objasňuje Marie. „Bungalov byl příliš nízký, tudíž nám nezbylo než počkat na na vydání nového územního rozhodnutí.“ A jak vzápětí dodává, celý proces se tím protáhl o několik měsíců, které jim následně chyběly do ročního limitu pro nastěhování.
Ani ohlášení stavby neproběhlo podle představ. Nedařilo se totiž získat podpis majitele vedlejšího pozemku, který prý byl mimo republiku, takže se realizace zpozdila o dalších několik týdnů. Jenže dlouhé čekání nebylo jediným problémem. „Směrem k sousedovi mělo stát tepelné čerpadlo, ale on s tím nesouhlasil. Museli jsme proto nechat projekt předělat a získat znovu stanovisko od hygieny,“ povzdechne si Pavel. „Kdybychom to věděli, tak zvolíme cestu stavebního povolení, což by nám ušetřilo čas i starosti,“ doplňuje.

Foto: Martin Zeman

Foto: Martin Zeman
Slovo dodavatele
V jednoduchosti je síla. Realizace tohoto domu pro nás byla velmi příjemná, o to více, že se nachází v bezprostřední blízkosti naší pražské centrály. Po počátečních komplikacích se stavebním úřadem následovala plynulá výstavba, která již probíhala bez zásadních problémů. Poměrně hladce se podařilo zapracovat také dodatečný požadavek investora na doplnění systému rekuperace. Největší výzvou se nakonec ukázalo sladění pracovních postupů a změna zavedených návyků řemeslníků investora, zejména v pochopení principů a specifik dřevostavby.

Bc. Tomáš Peterka
WOLF SYSTEM spol. s.r.o.
Snaha uspořit
Prodej bytu jim stanovil datum odstěhování i jasně daný finanční rozpočet. Aby dokázali dům realizovat v požadovaném standardu, zvolili některé dokončovací práce formou vlastních subdodávek. „Od dodavatele jsme měli hrubou stavbu, okna, omítky a zateplení. Svépomocí jsme si pak dodělávali obklady, podlahy a kuchyni,“ vzpomíná Marie.
Rychle se ukázalo, že doba zvolená pro stavbu není nakloněná finanční úspoře. „Peníze z prodeje bytu nám přišly v prosinci 2021, přes následující jaro se připravoval projekt a souhlas stavebního úřadu jsme dostali v červenci 2022,“ pokračuje.
„V září se během dvou týdnů udělala základová deska a v říjnu začala montáž domu – to šlo vážně rychle a s dodavatelem proběhla realizace k naší naprosté spokojenosti. Jenže nám už mezitím uteklo tři čtvrtě vyhrazené doby.“
Největší problémy nastaly v otázce domluvy s řemeslníky pro dokončovací práce a jejich návaznosti. Bylo náročné dohodnout vyhovující termíny i cenu, která v průběhu jednání stoupala. „Dodnes si říkáme, že jsme měli zvolit dodávku na klíč, protože cena by byla daná smlouvou a nehýbalo by se s ní. Navíc by to znamenalo i méně starostí pro nás.“
Ačkoliv do poslední chvíle doufali, že dům bude do konce prosince 2022 připravený k nastěhování, finalizace stavby se protáhla do prvních měsíců následujícího roku. S tím vyvstala otázka, kde budou bydlet, protože vypršela lhůta určená k přestěhování. Naštěstí jim pomohli sousedé.
„Byt v patře pod námi patřil Afgháncům, kteří tam nebydleli trvale, a tak nám nabídli dočasný azyl asi na měsíc a půl,“ vzpomíná. „Doufali jsme, že nám to pomůže překlenout zbylý čas potřebný k posledním pracím na domě, ale nakonec nás ještě na nějakou dobu ubytovala dcera s rodinou.“

Blízkost přírody: Jídelní kout je díky blízkosti zimní zahrady a prosklení vedoucího na terasu přímo v obklopení zeleně. Díky směrování místnosti na sever je tu navíc po celý den příjemný chládek, a to i během tropických letních dní. Foto: Martin Zeman
Ačkoliv vyměnili pohodlí Prahy za klid nedaleké obce, do centra metropole se paradoxně dostanou rychleji.
Vše v jednom: Nový dům znamenal i nové možnosti – v hlavní koupelně je proto sprchový kout i vana. A hlavně sauna na přání majitelky, kvůli níž se místnost zvětšovala. Foto: Martin Zeman
Konec dobrý, všechno dobré
K vytouženému nastěhování nakonec došlo během března 2023. Kombinace stresu spojeného s dokončovacími pracemi a přesunů do přechodných bydlišť oba naprosto vyčerpala. „Všichni nás měli za blázny – pouštět se po šedesátce do stavby!“ směje se Marie. „A nám už na konci opravdu docházely síly a samotnou mě napadlo, jestli jsme se nepřecenili.“
Když konečně dodělali dům, přišla na řadu zahrada, do které se opět pustil Pavel spolu s dcerou. Kompletně vymysleli její rozvržení a sami se vrhli i na realizaci. Při té si pro ně zahrada připravila několik tvrdých překvapení. „Kopal jsem jamku pro bobkovišeň a narazil jsem na kámen, co vážil snad 30 kg. Tak jsem ho využil a zakomponoval do skalky,“ ukazuje Pavel. „Velkých kamenů se postupně ukázalo více a všechny našly využití – buď právě do skalky, nebo jako dláždění do zimní zahrady.“
Po dvou a půl letech shodně přiznávají, že si i přes počáteční váhání na nový dům zvykli překvapivě rychle. „Opravdu se mi z města nechtělo pryč, ale odsud to mám paradoxně na metro blíž než z původního pražského bytu,“ říká Marie. Jejich nové bydlení má jen jednu slabinu – leží v trase letových drah. Výrazně je to nezaskočilo: velkou část života totiž strávili stěhováním blíže či dále od Ruzyně, a s hlukem se navíc počítalo už v projektu. „Z toho důvodu má dům okna s trojskly, rekuperaci, protihlukové dveře a celkově lepší odhlučnění,“ vypočítává Pavel.
Skutečná nevýhoda se tak projeví jen při větrání okny. „Když mám otevřeno, koukám na detektivku a zrovna chtějí odhalit vraha, musím to stopnout, abych vůbec něco slyšela,“ uzavírá se smíchem Marie. „Zvykli jsme si už dávno. Říkám, že je to takový náš syndrom nádražního domku.“

Bohatá úroda: Kromě klasických ovocných stromů, jako jsou jabloně, zasadil Pavel i exotičtější fíky, kanadské borůvky nebo melouny. „Uplynulé léto bylo sice chladnější, ale úroda byla pěkná. A loni jsme sklidili snad 100 kg melounů,“ pochvaluje si. Foto: Martin Zeman

Špetka exotiky: V zimní zahradě jsou umístěny subtropické rostliny, kterými se Pavel inspiroval během cest po světě. Pár z nich si dokonce vypěstoval ze semínka. Foto: Martin Zeman

Tato dřevostavba soutěží v anketě DŘEVOSTAVBA ROKU 2026
Pomozte nám zvolit nejhezčí dřevostavby! Tato dřevostavba se uchází o váš hlas v anketě Dřevostavba roku 2026 pod názvem "Syndrom nádražního domku". Zaregistrujte se na našem webu, pošlete hlas a získejte atraktivní ceny...Hlasování v tomto kole probíhá do 30. 3. 2026
HLASOVAT V ANKETĚ
Technické parametry
- Typ domu: pasivní bungalov
- Zastavěná plocha: 156 m2
- Užitná plocha: 131 m2
- Dispozice: 4 + kk
- Konstrukční systém: panelová rámová dřevostavba (prefabrikovaná)
- Stěna: Ultra Mega Wand
- Zdroj energie / teplo: tepelné čerpadlo vzduch/voda + rekuperace
- Součinitel prostupu tepla stěnou: U = 0,135 W/m2K
- Autor arch. návrhu a projektu: Kateřina Ryvolová
- Realizace: 2022, WOLF SYSTEM spol. s r.o., www.wolfhaus.cz


Tento článek vyšel v časopisu DŘEVO&stavby 1/2026
Objednejte si krásně vonící výtisk časopisu s kvalitními fotografiemi pouze za 119 Kč
koupit časopis
- :
Na nový dům a styl života jsme si zvykli překvapivě rychle
Zvolená dodavatelská firma WOLF na nás už od první chvíle udělala dobrý dojem, proto jsem se rozhodli jít do realizace právě s nimi. V září se během dvou týdnů udělala základová deska a v říjnu začala montáž domu – to šlo vážně rychle a s dodavatelem proběhla realizace k naší naprosté spokojenosti.


.jpg)


Čerstvé novinky ze světa dřevostaveb