Myšlenka pořídit si vlastní chalupu vznikla během covidu, kdy se nikam nedalo cestovat a Tomáš s rodinou zatoužili po místě jen pro sebe. Shodli se, že nejdůležitější je vybrat krásnou lokalitu, kde se budou cítit dobře. Volba padla na Krušné hory – stále trochu stranou turistického zájmu, a tím pádem ideální k nalezení vysněného pozemku. „Vyslali jsme našeho švagra, který rád běžkoval. Spojil sport s průzkumem a opravdu místo objevil,“ směje se Tomáš.
Od začátku měli jasno i o podobě stavby – kvůli propojení s přírodou bylo jednoznačnou volbou dřevo. Krátce dokonce uvažovali o dvou domech vedle sebe, ale územní plán jim to nedovolil. Stejně přímočará byla i volba dodavatele. „Měli jsme kontakt na firmu, která staví roubenky z cedrového dřeva. Věděli jsme, že jejich stavby jsou opravdu kvalitní, proto jsme oslovili rovnou je,“ vzpomíná. Z finančních důvodů a díky zkušenostem v rodině si objednali jen hrubou stavbu a nechali si doporučit subdodavatele. „Jestli jsme tím skutečně něco ušetřili, to už si ale úplně jistý nejsem,“ dodává s úsměvem.
Co nejblíže k přírodě
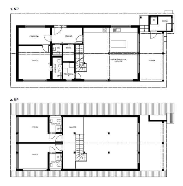
Představa o budoucí chalupě byla jasná: jednoduchá stavba s velkou společenskou místností, tedy kuchyní propojenou s obývákem, a pokoji vybavenými vlastním sociálním zařízením. Kapacita? Zhruba sedm dospělých a k tomu pár dětí. „Tři pokoje s koupelnou jsou určeny pro dospělé, čtvrtý je dětský,“ popisuje Tomáš. Klíčová byla blízkost přírody. „Hodně jsme řešili, jak bude roubenka natočená vůči světovým stranám a co bude vidět z jednotlivých oken,“ pokračuje. „Nechali jsme je posadit níže, aby byl výhled ven co nejpřirozenější a člověk se cítil součástí krajiny.“ Společenská místnost je navíc orientovaná tak, aby byla po většinu dne přirozeně prosvětlená.
Ačkoliv se rodině podařilo získat rozlehlý pozemek o výměře 3 000 m², k zastavění mohli využít jen 116 m². Krušné hory jsou totiž od roku 2019 zapsané na seznam světového dědictví UNESCO a přísná regulace tu má chránit jedinečnou krajinu i historickou hodnotu. Tomáš s rodinou tak stáli před výzvou – navrhnout chalupu tak, aby splnila jejich potřeby, a přitom přirozeně zapadla do existující zástavby. „Záleželo nám i na sousedech, nechtěli jsme vyvolávat konflikty ani pocit, že se naše chalupa do prostředí nehodí,“ vysvětluje. Obavy se ale rychle rozplynuly. „Všichni byli neuvěřitelně milí a fandili nám. Když pak chválili, jak roubenka hezky zapadla do okolí, bylo to pro nás největší ocenění.“

obr.: Pro co největší propojení s okolní přírodou zůstaly na zahradě i části s lučním kvítím. Své místo našly také zbylé cedrové profily – proměnily se v lavičky kolem ohniště, kde rodina i hosté tráví společné chvíle. Foto: archiv CEDAR HOME

obr.: Kvůli svažitému terénu bylo nutné srovnat část pozemku určenou pro stavbu, zbytek zahrady však zůstal v původní podobě. „Po dokončení jsme jen na několika místech vysadili trávu, jinak jsme nechali přírodu, aby se sama obnovila,“ vysvětluje Tomáš. Foto: archiv CEDAR HOME
Kompromisem k úspěchu
Kvůli přísným regulacím si na úřadě raději nechali schválit předběžný záměr, aby měli jistotu, že míří správným směrem. Projektování a vyřizování stavebního povolení pak nakonec trvalo déle než samotná stavba, pečlivost se ale vyplatila. „Během stavby si sousedi roubenku chodili fotit, jak se jim líbila,“ usmívá se Tomáš. „Dokonce i montážní parta dodavatele nám chválila výběr parcely, že se vážně povedla.“ Stavět se začalo až v dubnu 2022 a záhy přišlo překvapení. Při výkopu pro tepelné čerpadlo s plošnými kolektory narazili na základy původní, pravděpodobně německé stavby. „Bylo nám líto je nechat v zemi, a tak jsme kameny vykopali a využili na zahradě jako základ valu, který od západu přirozeně ohraničuje pozemek,“ vypráví.
Ani samotná stavba se neobešla bez komplikací. Rozpočet musel několikrát projít revizí. „Měli jsme jasně danou částku a párkrát jsme ji překročili, takže bylo nutné dělat úpravy,“ přiznává Tomáš. „Nejvíc se to projevilo v posledních fázích, ale dotáhli jsme to ke spokojenosti všech.“ Prioritou byla kvalita provedení, i když konkrétní podoba domu je místy výsledkem kompromisů. „Někdy jsme se nemohli shodnout, tak jsme museli hlasovat,“ dodává s úsměvem.
Zvolený systém vlastních subdodávek prodloužil stavbu na více než rok a nevyhnulo se jim ani jisté zdržení. Většinu řemeslníků se podařilo naplánovat a sladit podle harmonogramu, až na střechu. „Ta je pro životnost stavby klíčová, proto jsme dlouho vybírali ideální firmu. Jenže když jsme měli jasno, nikdo už neměl volný termín,“ popisuje. Nakonec pomohl dodavatel a celá stavba se posunula zhruba o dva měsíce.

obr.: Aby byla roubenka ideálně natočená vůči světovým stranám, stojí na pozemku trochu „nakřivo“ oproti sousedním stavbám. Chodníček vedoucí k parkovišti pro čtyři auta a zároveň souběžně s vozovkou opticky vyrovnává natočení domu a přirozeně zapojuje stavbu do prostoru. Foto: archiv CEDAR HOME

obr.: Největší prosklená plocha je orientovaná na sever. Z obývacího pokoje se tak dá přes dva velké HS portály vyjít přímo na terasu a vychutnat si okolní krajinu z bezprostřední blízkosti. Právě odtud vede i vstup do sauny, která se k příjemnému nahřátí připraví za pouhých dvacet minut. Foto: archiv CEDAR HOME
Slovo dodavatele
Tahle stavba pro nás byla radostí od samého začátku. Zákazník nás oslovil s plánem stavby roubenky v Krušných horách, zamýšlené jako rekreační objekt. Díky jasné představě o její podobě byl počátek spolupráce poměrně snadný, výhodou byla i krásná lokalita v Krušných horách, kam stavba přirozeně zapadla. Navíc s majiteli, kteří si pak sami subdodavatelsky zajišťovali dokončovací práce, byla výborná komunikace. Jsem rád, že se záměr povedl a pobyty v roubence jsou příjemnou záležitostí. Právě takové zpětné vazby dávají naší práci smysl.

Alan Karela
CEDAR HOME
Vůně dřeva
Zpočátku panovaly obavy, jak si roubená konstrukce v horském prostředí povede z tepelnětechnického hlediska. „Překvapilo nás, jak perfektně funguje,“ uznává Tomáš. „V zimě po vytopení krásně drží teplo a v létě, když nepustíme horko dovnitř, udrží příjemné klima.“ O vytápění se stará především tepelné čerpadlo se zemními kolektory, doplněné akumulačními kamny. „Zvažovali jsme i klasickou vzduchovou venkovní jednotku, ale na kolektorech se nám líbí, že nikde nic nehučí,“ dodává.
Nakonec se shodli, že nic víc není potřeba. Uvažovali sice o řízeném větrání s rekuperací, ale nechtěli narušovat konstrukční profily vývody. Jedinou technologickou „vymožeností“ tak zůstala malá sauna, která podtrhuje odpočinkový charakter stavby. Ačkoliv dodavatel garantuje, že cedrové dřevo je bezúdržbové, rozhodli se raději využít nanonátěr.
„Nejprve jsme to pro jistotu s dodavatelem konzultovali. Nátěr odpuzuje vodu, takže déšť po stěnách prostě steče. Zároveň jsme chtěli mít ochranu před povětrnostními podmínkami, protože v této oblasti bývá prudký vítr,“ vysvětluje. Účinnost nátěru je dva až tři roky, poté je třeba ho obnovit. Interiér naopak zůstal neošetřený, aby si mohli užívat vůni dřeva i jeho přirozenou živost – včetně prasklin, které vznikají při vysychání. „Na praskání jsme byli upozorněni dopředu a už jsme ho sami zažili. Ale to k těmhle stavbám prostě patří.“

obr.: Velkou část roubenky zabírá prostorná společenská místnost otevřená až do krovu. Díky promyšlenému rozmístění nábytku vznikly jasně oddělené zóny – kuchyňský kout, jídelna a obývací část – laděné do přírodních a neutrálních barev, které harmonizují s pohledovým dřevem. Foto: archiv CEDAR HOME

obr.: Schodiště plní zároveň symbolickou i praktickou funkci – odděluje společenskou část roubenky od té odpočinkové. Odtud se vstupuje ke všem ložnicím a pod ním jsou umístěny dveře do chodby u hlavního vchodu. Foto: archiv CEDAR HOME
Krása k zapůjčení
Rodinným přáním bylo stihnout dokončení roubenky do Vánoc 2023 a to se povedlo. Jenže těsně před svátky se objevil nečekaný zádrhel: instalatérovi praskla sprchová zástěna a celá se vysypala. „Ještě 22. prosince jsme zoufale sháněli stejnou, nakonec jsme ji našli až u Písku, takže čtyři hodiny cesty tam a další ještě zpátky,“ vzpomíná Tomáš, dnes už s úsměvem. „Druhý den se podařilo zástěnu nainstalovat a Vánoce v rodinném kruhu už proběhly podle plánu.“
Následující rok rodina chalupu postupně zabydlovala a ladila drobné detaily. V roubence trávili hodně času společně i po jednotlivých skupinkách. „Člověk tam opravdu načerpá energii, i když není zrovna hezky. Sledovat z obýváku nebo z ložnice, jak se z údolí valí mlha, je nesmírně příjemné – a zvlášť v dnešní digitální době to spolehlivě dobije baterky,“ říká Tomáš. Ačkoliv je roubenka postavená přesně podle jejich představ, od začátku počítali i s částečnou návratností investice.
„Chtěli jsme prostor pro rodinu, ale také aby na sebe chalupa něco vydělala,“ vysvětluje. První hosty roubenka přivítala na jaře 2025 a hned získala nadšené ohlasy s přísliby budoucích návratů. „Do budoucna bychom byli rádi, kdyby se k nám vracela stabilní klientela. Chceme si vybudovat vlastní komunitu hostů a časem roubenku stáhnout z veřejných rezervačních serverů,“ dodává. S ohledem na sousedy a okolní stavby zde platí poměrně přísný návštěvní řád. „Hlavní je vyvarovat se hluku – v sousedství jsou koně a nechceme je plašit. A také dbáme na to, aby byl všude pořádek,“ uzavírá Tomáš.

obr.: Ložnice v přízemí nabízí přímý výhled do údolí. Výhodou jsou také okna orientovaná na východ, díky nimž lze krásu okolní krajiny sledovat už od brzkého rána. Ve vedlejší samostatné místnosti je navíc gauč, který slouží jako příležitostná přistýlka. Foto: archiv CEDAR HOME

obr.: Obě ložnice v patře jsou orientované na jih. Kombinace otevření do krovu, pohledového dřeva a pečlivě zvolených barev plně podporuje myšlenku, která stojí za celou roubenkou.
Foto: archiv CEDAR HOME

obr.: Koupelny v patře jsou zařízeny v jednoduchém a funkčním designu. Díky oknům ve střešních vikýřích do nich proudí denní světlo, které posiluje pocit přirozené harmonie s okolní krajinou. Foto: archiv CEDAR HOME

obr.: Klíčovým faktorem při stavbě byl výhled – a ten je zde skutečně výjimečný. Kombinace všudypřítomné zeleně, okolních hor a pohledu do údolí vytváří jedinečný genius loci, který dokáže okouzlit v každém ročním období i za jakéhokoliv počasí. Foto: archiv CEDAR HOME

Tato dřevostavba soutěží v anketě DŘEVOSTAVBA ROKU 2026
Pomozte nám zvolit nejhezčí dřevostavby! Tato cedrová dřevostavba se uchází o váš hlas v anketě Dřevostavba roku 2026 pod názvem "Výhled s vůní cedrového dřeva". Zaregistrujte se na našem webu, pošlete hlas a získejte atraktivní ceny...Hlasování v tomto kole probíhá do 13. 4. 2026
HLASOVAT V ANKETĚ
Technické parametry
- Zastavěná plocha: 116 m2
- Užitná plocha: 170 m2
- Dispozice: 5 + kk
- Konstrukční systém: obvodové stěny z masivního cedrového dřeva, zděná část z cihel Porotherm
- Vnitřní nátěr: bez ošetření
- Vnější nátěr: nanonátěr
- Střešní krytina: falcovaný plech
- Zdroj energie / teplo: kolektorové tepelné čerpadlo
- Větrání: přirozené
- Projekt: CEDAR HOME
- Realizace: 2023, CEDAR HOME, www.cedarhome.cz


Tento článek vyšel v časopisu sruby&ROUBENKY 1/2026
Objednejte si krásně vonící výtisk časopisu s kvalitními fotografiemi pouze za 99 Kč

.jpg)

Čerstvé novinky ze světa dřevostaveb