S městem na dlani

  • Soutěž: DŘEVO&stavby 02/2026
  • Realizace: DŘEVOSTAVBY BISKUP s.r.o. a ARCHCON atelier s.r.o.
  • Popis a technické parametry:
    • Typ domu: pasivní
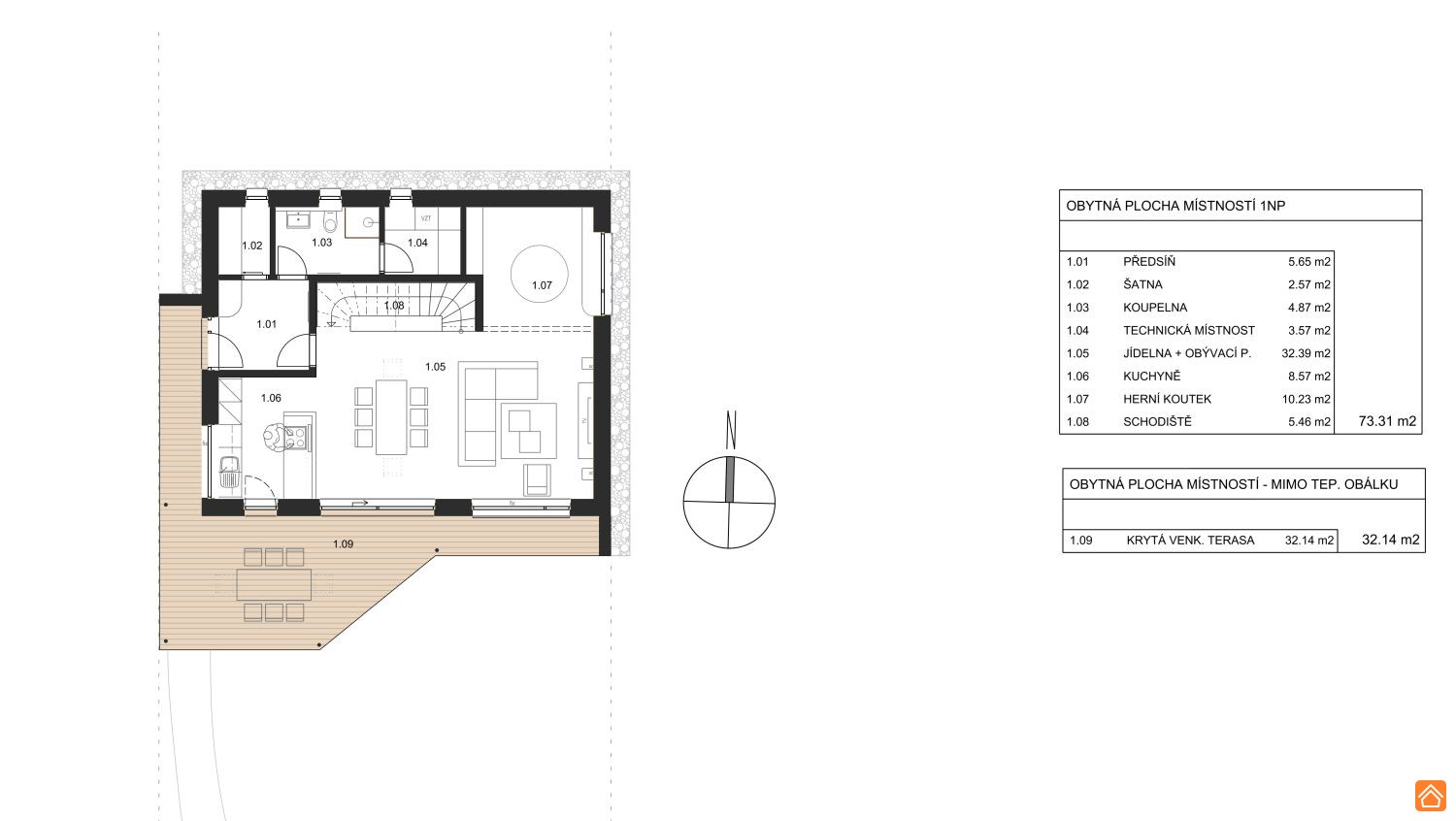
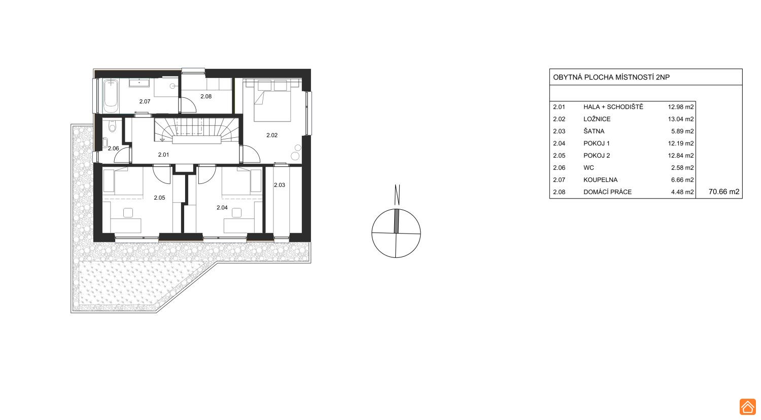
    • Užitná plocha: RD – 145,6 m2, krytá terasa – 33,3 m2, carport se skladem – 59,5 m2
    • Zastavěná plocha: RD – 91 m2, krytá terasa – 33,3 m2, carport se skladem – 67 m2
    • Dispozice: 5 + kk
    • Konstrukční systém: masivní dřevěné třívrstvé šroubované panely DEKPANEL
    • Zdroj energie / teplo: elektrické topné kabely + stropní panely (ložnice)
    • Součinitel prostupu tepla stěnou: U = 0,132 W/m2K
    • Větrání a dochlazování: řízené větrání – kompaktní jednotka Nilan K XL s rekuperací
    • Další vybavení: technologie s inteligentním řízením Loxone, FV systém na střeše carpotu 9,96 kWp + baterie
    • Okna: dřevohliník
    • Autor studie a projektu: 2020–2021, ARCHCON atelier, s.r.o., www.archcon.cz
    • Realizace: 2021–2022, DŘEVOSTAVBY BISKUP, s.r.o., www.drevostavbybiskup.cz

Partneři projektu

news arrowČerstvé novinky ze světa dřevostaveb

Přihlaste se k odběru zadáním e-mailu