Markéta Kristová | Neděle, 06. listopad 2022 |
Nově postavená poloroubenka vzdává svou podobou a zpracováním hold nejen Chráněné krajinné oblasti Kokořínsko, pro kterou jsou tato stavení typická, ale zároveň i poctivému dřevařskému a tesařskému řemeslu, které na roubených stěnách zanechalo svůj otisk. Cit pro detail, uvážlivé a dopředu promyšlené kroky a perfektní konstrukční řešení jsou hlavními atributy podtrhujícími kvalitu této poloroubené chalupy v romantickém zákoutí Máchova kraje. Pojďte prostřednictvím následujících stránek ocenit detaily, které činí poloroubenku zajímavou.
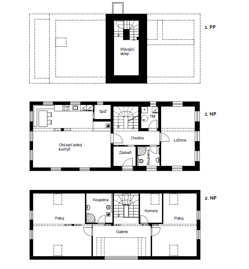
Na původně zarostlém pozemku již poloroubená chalupa stála, kvůli špatnému technickému stavu však musela být zbourána. Podařilo se z ní zachovat sokl, na kterém se nejprve postavila část zděná a následně roubená. Podoba poloroubenky musela korespondovat s místními regulativy CHKO Kokořínsko, které podmiňovaly zachování stylu tradiční chalupy.
TIP NA ČLÁNEK: Stavba domu v chráněné krajinné oblasti. Na co si dát pozor a jaké informace je dobré vědět před zpracováním projektu
Před samotnou realizací věnovali investoři dostatek času hledání kvalitního dodavatele. Při stavbě poloroubenky je nezbytné správně provést napojení zděné části na roubenou. Z důvodu sedání dřevěných trámů musí být totiž perfektně vyřešena dilatace, kdy je zděná část na dřevěné zcela nezávislá. Konstrukční problémy jsou eliminovány rektifikačními šrouby, které případné výškové rozdíly vyrovnají.
TIP NA ČLÁNEK: Celodřevěnou roubenku nebo poloroubenku?
Dřevěná špaletová okna s dvojskly jsou dílem místního truhláře. Všechna jsou navíc ručně natírána a ručně olištována hřebíčky, to je přidaná hodnota jejich celkového zpracování. Jediné, co úplně neodpovídá tradičnímu vzhledu klasické chalupy, je velikost oken, která je poněkud předimenzovaná z důvodu zajištění lepšího průniku denního světla do interiéru. Vytěžené pískovcové kameny z pozemku byly použity na obezdívku domu a do části zdí venkovního přístřešku. Velkou chloubou je i pískovcový sklep v domě, který je společně se soklem původní. Pro jeho zachování musela být upravena dispozice (výška) celé stavby.
Prostorná světnice s moderním nádechem je srdcem celé chalupy. Pozornost přitahují masivní trámy z poctivě vysušeného dřeva, které byly z tepelněizolačních důvodů zvoleny v průřezu 30×30 cm. Jejich výjimečnost především spočívá ve způsobu ručního opracování, při kterém byl každý trám otesán ručně sekerou do požadovaného průměru. Tímto způsobem se podařilo docílit i „starého" vzhledu.
Spáry v roubené části se před tmelením nejprve utěsnily minerální vatou a následně zakryly pěnovou páskou, kterou překrývá bílý tesařský tmel. Ten se do spár šikovnou rukou řemeslníka roztíral a dohlazoval ručně.
TIP NA ČLÁNEK: Spára u roubenek jako znaménko krásy aneb jak se změnila technologie řešení tohoto detailu?
Stejně jako ve starých chalupách se i tady přistoupilo k položení dřevěné prkenné podlahy, kterou najdeme i v koupelně. Toto odvážné rozhodnutí si vyžádalo dostatek času na důkladnou přípravu, a to především kvůli podlahovému topení. Bylo nutné vytvořit dostatečnou izolaci do podlahy, udělat kvalitní betonové zalití s cementovým potěrem, do kterého byla navíc přimíchána speciální výztuž, použít kvalitní lepidlo a mít především šikovné ruce. Investor dbal i na kvalitu a vysušení prken. Důležitá je také správná pokládka drážkováním dolů.
Netypicky zbarvené kachle měly původně zdobit stěny v koupelně, nakonec se však investoři rozhodli jimi obložit právě kamna, která se díky nim stala skutečně originálním kouskem. Společně s tepelným čerpadlem se starají o teplo domova a příjemnou atmosféru v chalupě.
Stropní podhledy jsou v patře podbity, sádrokarton byste tu nenašli. Horní pokoje jsou určeny pro práci i odpočinek.

Tento dům soutěží v anketě Dřevostavba roku 2022
Pomozte nám zvolit nejhezčí dřevostavby! Tato krásná poloroubenka se uchází o váš hlas v anketě Dřevostavba roku 2022 pod názvem "Tradiční postupy v moderním duchu". Hlasujte do 31.12. 2022 v tomto kole a získejte atraktivní ceny...
Hlasovat v anketě
Technické parametry
- Zastavěná plocha: 108 m2
- Obytná plocha: 168 m2
- Stavební systém: kombinace roubené a zděné části
- Vnitřní i venkovní nátěr: olej Astaxil
- Vytápění: tepelné čerpadlo
- Izolace: minerální vata ISOVER Unirol Profi
- Okna: špaletová dřevěná okna s dvojsklem
- Podlaha: dřevěná (3 cm tlustá, 25 cm široká a 5 metrů dlouhá dřevěná prkna)
- Střecha: betonové střešní tašky Tegalit (BRAMAC)
- Realizace: 2020, Roubenky Roman Střihavka, www.roubenky-strihavka.cz

Tento článek vyšel v časopisu sruby&ROUBENKY 4/2022
Objednejte si krásně vonící výtisk časopisu s kvalitními fotografiemi pouze za 85 Kč
koupit časopis
Nejnovější články v kategorii “Návštěvy dřevostaveb”
-
Jednoduchá, účelná a moderní chalupa v pasivním standardu
Krkonoše, naše nejvyšší hory, mě lákají, ale málokdy se tam dostanu. Dnes mě ale horská silnice dovede až k Žacléři – na nejvýchodnější cíp Krkonoš nedaleko hranic s Polskem.…
-
Apartmány s vůní dřeva
Když dědeček Soně a jejímu bratrovi odkázal v jihočeském Políkně kamenné stavení na krásném místě, sourozenci se rychle dohodli, že by mohlo, po rozsáhlejší rekonstrukci, sloužit…
-
Takhle to dopadne, když máte dům ve vlastních rukou
Andrej s Denisou původně pochází z podhůří Tater, po studiích se ale oba rozhodli zůstat v Česku. V pomyslném souboji mezi Brnem a Prahou nakonec zvítězila metropole, ale když čekali…
-
V dřevostavbě v Louňovicích se bydlení mění v zážitek
Když vám prozradím, že se v patře této dřevostavby v Louňovicích mimo jiné nachází i showroom, kde Pavel předvádí svým zákazníkům systém Loxone, jistě vás nepřekvapí, že je…














.jpg)
.jpg)
.jpg)
.jpg)
.jpg)
.jpg)
.jpg)
.jpg)
.jpg)
.jpg)
.jpg)
.jpg)
.jpg)
.png)
Vytvořeno v xart.cz