DAS | Pondělí, 13. březen 2017 |
Jednoduchý, kompaktní, ale netuctový – takový je bungalov s valbovou střechou vhodný i pro menší pozemky.
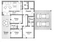
Jeho nosné obvodové stěny jsou navrženy z dřevěných sendvičových panelů s jedinečnými hodnotami součinitele prostupu tepla v nízkoenergetickém až pasivním standardu. Do obdélníkového půdorysu je integrována i terasa s pergolou, takže dům se tváří jako obdélník, byť má ve skutečnosti tvar L.
Na zastavěné ploše 134 m2 nabízí dům od společnosti Wolf Haus dispozici 4+kk a dvě koupelny – jednu rodičovskou, druhou společnou pro dva dětské pokoje. Užitná plocha dřevostavby je celkem 112 m2.


















Vytvořeno v xart.cz