Dana Jakoubková | Úterý, 01. listopad 2022 |
Na první dojem venkovský, přesto nabízí současný komfort a nadčasový vzhled. Dům, který neskrývá hřejivou spřízněnost s okolím a naplňuje přirozené instinkty lidské povahy. Jednoduchý, přehledný a příjemný domov pro rodinu Jany a Jakuba, která výraz komplikovanost nemá ve svém slovníku.
Váš dům, byť je přímo v obci, je takový utajený, z ulice vůbec není vidět. Jaké okolnosti vás přivedly k tomuto pozemku?
Vybrali jsme ho na inzerát a při první návštěvě jsme ho vůbec nemohli najít. Až posléze jsme zjistili, že je šikovně zastrčený za záhumenky (záhumenek – menší zemědělský pozemek mimo areál hospodářství, za humny; pozn. red.). Je to takové příznačné. Brdy, ke kterým máme dlouholetou vazbu, jsou také takové utajené. Zvláště ta část od nás na jih. Lokalita je úžasná, těsná blízkost relativně divoké přírody, zajímavá místa pro pěší i cyklo výlety, více možností pro koupání. Zároveň tu není mnoho turistů. Ideální místo pro rekreační dům.
Vypadá ale docela plnohodnotně. Nebo mu chybí něco k trvalému bydlení?
Kdepak, nechybí. Stavěli jsme ho s tím, že tu jednou bydlet budeme. Původně jsme získali stavební povolení pro jiný architektonický návrh. Dům byl sice zajímavý, ale stavba se ukázala jako značně komplikovaná a náklady na její realizaci se vyšplhaly vysoko nad námi očekávanou částku. Takže jsme hledali dodavatele stavby, který má vlastní portfolio domů, nabídne kvalitu a rozumné cenové podmínky. Samo sebou jsme lustrovali internet, časopisy i veletrhy, až jsme našli vše u firmy, která staví i typové domy.
Vybrali jste si tedy typový dům. Museli jste dělat nějaké kompromisy, má toto řešení slabší stránky?
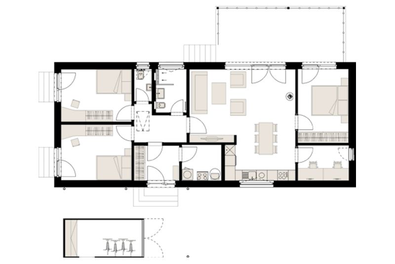
S dispozicemi problém nevidíme. Myslíme, že každý musí vybírat typový dům tak, aby dobře sedl na pozemek a maximálně využil prostoru, který zahrada a okolí nabízí. Optimal D dobře pasoval k situaci, která na zahradě je – příjezdová cesta, výhledy, světové strany. Bylo třeba provést jen pár úprav; místo standardních oken máme francouzská, protože jsme se chtěli více propojit se zahradou, a přidali jsme jednu toaletu. Vyhovuje nám, že pokoje dětí jsou dále od obýváku; kluci si mohou pozvat kamarády a vzájemně se nerušíme.
S úpravou projektu neměl dodavatel problém?
Naopak. Od počátku jsme měli ze zástupců firmy dobrý dojem. Naslouchali nám a změny zahrnuli do plánů bez okolků. Dostali jsme i možnost navštívit stejný, již postavený typový dům jednoho z jejich klientů (referenční dům; pozn. red.), takže jsme si o něm mohli udělat dobrou představu.
Předpokládám, že jste stavěli na klíč. Dodavatel má u typového domu obvykle všechno vyladěné, vyzkoušené a stavba logisticky nevázne. Nebo se snad vyskytlo něco nad očekávání?
Šlo sice o stavbu na klíč, ale realizovala se během nejpřísnějších opatření proti covidu, takže nad vším visely otazníky. S dodavatelem jsme se domluvili, že stavbu budeme realizovat ve dvou fázích a po první fázi se domluvíme na dalším pokračování. Vzhledem k tomu, že jsme na kontrolu stavby jezdili přes hranici kraje, museli jsme mít v jednu dobu nachystané potvrzení. Dodavatel to ale i v tom složitém období zvládl, i když jednoduché to nebylo. Nakonec obě fáze v podstatě navazovaly a do roka bylo hotovo. Stavaři byli během stavby flexibilní a dokázali pružně reagovat i na naše nově vzniklé požadavky.
Velkým oříškem ovšem bylo vedení sítí. Pozemek je atypický v tom, že příjezdová cesta, na jejímž konci začíná vlastní parcela pro dům, je od ulice sto metrů dlouhá. A právě pod touto cestou bylo vedení sítí výzvou jak z hlediska délky, tak vyspádování. Navíc na poslední chvíli se ještě s přípojkami přidal i soused. Také jsme museli ještě před stavbou odvézt ze zahrady několik nákladních aut se sutí, která byla navršena na pozemku.
Je vidět, že jste si s úpravou terénu dali práci ...
Část, kterou vidíte pod úrovní domu, jsme museli řešit už při stavbě základové desky. Jakmile byl dům postaven, už by se tam technika těžko dostávala. Protože to býval zemědělský pozemek, občas jsme vykopali starou rezavou zemědělskou techniku. To děti hodně bavilo, měly z toho takové naleziště. Jinak nám určitě pomohlo, že jsme v době stavby už měli připravenou studii zahrady od krajinářské architektky a věděli jsme, jakým směrem se budeme ubírat. Později jsme se návrhu s drobnými úpravami drželi. Dokonce je v části zahrady v zimě možné sáňkovat.
Když jsme u zimy, jak máte řešené teplo?
Zvažovali jsme tepelné čerpadlo, ale s ohledem na využívání domu by se nám nevyplatilo. Zvolili jsme tedy elektrický kotel a podlahové topení. V rámci domu na klíč to bylo součástí dodávky a jelikož je dům velice dobře izolován, nemáme ani vysoký účet za elektřinu. Ročně spotřebujeme zhruba pět megawattů. A samozřejmě v tom hraje roli prosklení na jih a krbová kamna, u nichž rádi vysedáváme. Letní teplo se naopak daří dobře držet na uzdě. S předokenními žaluziemi jsme velmi spokojeni – měli jsme je nainstalovat i do kuchyně, ale mysleli jsme si, že nebudou třeba. Jinak hodně práce zastane řízené větrání s rekuperací.
Až budete stavět podruhé, uděláte něco jinak?
(Smích.) Je to o kompromisech. Vždy je možné najít zajímavější řešení. Pokud bychom ale nemuseli brát ohled na rozpočet, líbila by se nám konstrukce v masivních CLT panelů a otevřený krov.
Co nás těší?
- Stále čerstvý vzduch.
- Smrková biodeska v interiéru.
- Atmosféra topení kamny na dřevo.
- Oddělené dětské pokoje – eliminace důvodů některých sporů.
- Dobrý výhled.
- Člověk udělá jeden krok a je na zahradě.
- Sedět na terase a pozorovat ovce na sousedním pozemku.
- Některé trvalky už narostly a oblíbili si je motýli.
- Těšit se na vlastní ovoce.
- Pozorovat ptáky na krmítku a hádat jejich druhy.
- Celoroční koupání v biobazénu.
- Vřelé sousedské vztahy – k jedněm sousedům chodíme pro domácí vajíčka a někdy odcházíme i třeba s frgálem nebo jaternicemi. Druzí nás upozorní, pokud se na zahradě něco děje. Od dalších si půjčujeme pejska na procházky.
Komentář redaktorky
Leonardo da Vinci jednou řekl, že jednoduchost je nejvyšší sofistikovanost. Brilantní designér Apple iPhone zase razil heslo: Zbavte se všeho, co není absolutně nezbytné. Kompozice tohoto bydlení tkví v nenucené uspořádanosti, za jejímiž hranami cítíte lyrický akcent. Je to tak jednoduché, až se to zdá samozřejmé. Ale právě v tom je onen uklidňující potenciál, bez kterého se žádný domov neobejde a kterým je tento dům bohatě prosycen.

Dana Jakoubková
redaktorka

Tento dům soutěží v anketě Dřevostavba roku 2022
Pomozte nám zvolit nejhezčí dřevostavby! Tato dřevostavba se uchází o váš hlas v anketě Dřevostavba roku 2022 pod názvem "Půvab, který hýčká oči". Hlasujte do 14.11. 2022 v tomto kole a získejte atraktivní ceny...
Hlasovat v anketě
Komentář dodavatele
Na počátku bylo snad trochu ostýchavé setkání a ze strany stavebníka již zpracovaný projekt pro stavební povolení. Náklady realizace ale vycházely výrazně nad jeho původní předpoklad a limity. Začali jsme tedy v podstatě znovu skládat mozaiku potřeb, představ a možností, včetně charakteru parcely. Jako vhodné řešení se nakonec ukázal jeden z našich typových domů s několika úpravami, což je ale v případě typových domů běžné.

Martin Růžička
PENATUS s.r.o.
Sledujte oficiální YouTube kanál časopisu DŘEVO&stavby, sruby&ROUBENKY. Autor videa: Martin Zeman, DAtelier
Technické parametry
- Typ domu: nízkoenergetický
- Zastavěná plocha: 120,52 m2 (bez teras a skladu)
- Užitná plocha: 98,21 m2
- Dispozice: 4+kk
- Konstrukční systém: sloupkový systém Two by Four, staveništní montáž, difuzně otevřená skladba
- Zdroj energie / teplo: elektrokotel, podlahové vytápění, doplňkově krbová kamna ROMOTOP Esquina N
- Větrání: řízené s rekuperací ATREA Duplex 380 EC V5.D.CF
- Součinitel prostupu tepla stěnou U: 0,18 W/m2K
- Okna: plastová
- Autor arch. návrhu: MgA. Josef Heller
- Autor projektu: Richard Vaněk, PENATUS s.r.o., www.penatus.cz
- Realizace stavby: PENATUS s.r.o., www.penatus.cz, 2020

Tento článek vyšel v časopisu DŘEVO&stavby 5/2022
Objednejte si krásně vonící výtisk časopisu s kvalitními fotografiemi pouze za 99 Kč
koupit časopis
Nejnovější články v kategorii “Návštěvy dřevostaveb”
-
Zrcadlová roubenka na soutoku
Majitel této roubenky – říkejme mu třeba Martin – měl jasný cíl: postavit svým dospělým dětem dům, kam by mohly o víkendech jezdit a být mu tak i s vnoučaty nablízku. A aby to…
-
Dřevěný domov v krajině rozlehlých luk
Tento příběh připomíná dokonalou pohádku o tom, kterak Kateřina a Jiří našli svůj vytoužený klid v podhůří Krkonoš. Jejich pozemek o rozloze dvaceti tisíc metrů čtverečních je…
-
Dávno splněný sen v podobě patrové dřevostavby na míru
Některé plány a nápady potřebují čas, aby mohly uzrát. Hluboko zapustit kořeny a trpělivě čekat na tu správnou dobu. Jako v tomto případě – poprvé totiž Milan na „svou"…
-
Dřevěná vila schoulená v náručí krajiny
Každý dům nevyhnutelně mění krajinu – jakým způsobem, to už záleží na jeho majitelích. Některé stavby přetvářejí okolí podle svého obrazu, jiné se naopak snaží splynout. A…















_kopie.jpg)
.jpg)
.jpg)
.jpg)
.jpg)
.jpg)
.jpg)
.jpg)
.jpg)
.jpg)
.jpg)
.jpeg)
.jpeg)
.jpg)
Hledali jsme dodavatele stavby, který má vlastní portfolio domů, nabídne kvalitu a rozumné cenové podmínky. Samo sebou jsme lustrovali internet, časopisy i veletrhy, až jsme našli vše u firmy PENATUS, která staví i typové domy. Od počátku jsme měli ze zástupců firmy dobrý dojem. Naslouchali nám a úpravy typového projektu zahrnuli do plánů bez okolků. Dostali jsme i možnost navštívit stejný, již postavený typový dům jednoho z jejich klientů (referenční dům; pozn. red.), takže jsme si o něm mohli udělat dobrou představu.
Vytvořeno v xart.cz