Markéta Kristová | Čtvrtek, 07. červenec 2022 |
Chcete bydlet v dřevostavbě a hledáte ověřeného a zkušeného dodavatele? Vybrali jsme pro vás tři projekty dřevostaveb s difuzně otevřenou skladbou stěny, které vynikají kvalitou zpracování a moderním designem.
Trendem dnešní doby jsou nízkoenergetické či pasivní domy a to především z důvodu úspory nákladů na energie. Dřevostavby díky svým jedinečným vlastnostem skladby panelu jsou tak ideálním řešením, jak tohoto docílit. Při dodržení technologického postupu výstavby a správném použití izolace v panelech, dosahují dřevostavby minimální tepelné ztráty. U dřevostavby lze snadno docílit i energeticky pasivního provedení a to díky použití vytápění s větráním, tzv. rekuperací.
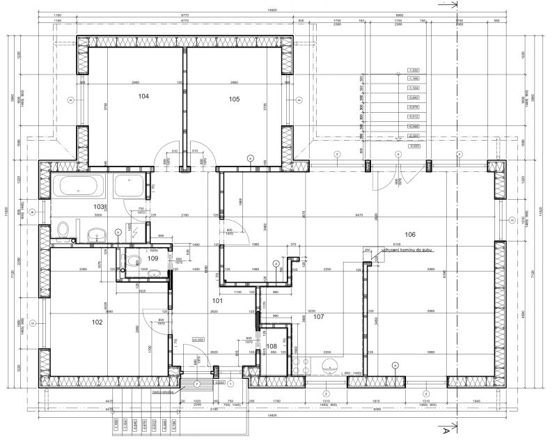
RD Brozany – individuální dřevostavba
- Dispozice: 5+1
- Zastavěná plocha: 152 m2
- Užitná plocha: 153,16 m2
-
Aktuální ceny naleznete na webových stránkách společnosti.
Realizace a zdroj: Dřevostavby DBH s.r.o.
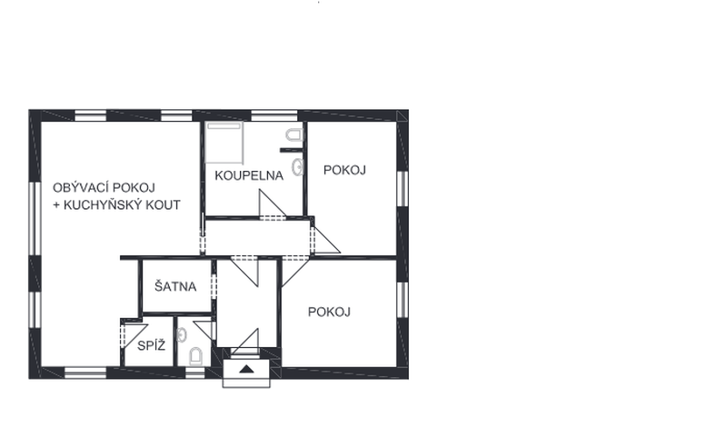
RD Brníkov – individuální dřevostavba
- Dispozice: 3+kk
- Zastavěná plocha: 111 m2
- Užitná plocha: 92 m2
-
Aktuální ceny naleznete na webových stránkách společnosti.
Realizace a zdroj: Dřevostavby DBH s.r.o.
Typová dřevostavba Abril
- Tato typová dřevostavba splňuje všechny nároky moderního bydlení.
- Má oddělenou denní a noční část.
- Zajímavý je také v poměru velikost a dispozice domu 4+1 versus cena.
- Ze vstupní chodby vedou dveře do samostatného WC, naproti do ložnice, dále do pokoje 1, do pokoje 2 a koupelny navazuje průchod, který spojuje jídelnu, kuchyň a obývací část domu.
- Obývací část dřevostavby je opatřena třemi velkými prosklenými výlohami, které ji činní velice světlou a příjemnou. Vstup do půdního uložného prostoru je řešen stahovacími schody v zádveří.
- Dřevostavbu Abril ocení zejména rodinny, které volí pohodlné a zároveň ekonomické bydlení.
- Aktuální ceny naleznete na webových stránkách společnosti.
Realizace a zdroj: Dřevostavby DBH s.r.o.
DBH s.r.o. – typové a individuální dřevostavby
Menší rodinná firma, která chce udržet kapacitu maximálně deseti rodinných domů ročně. Tím dociluje toho, že od začátku do konce jednání a realizace se zákazníky jsou v kontaktu přímo majitelé firmy. Dům s každým zákazníkem s pomocí vlastního projektanta tvoří od nuly s ohledem na lokalitu pozemku, umístění domu na pozemku a místní normativy.
.jpg)
- KONSTRUKČNÍ SYSTÉM: Domy s difuzně otevřenou konstrukcí, odvětranou fasádou a s hodnotou prostupu tepla obvodové stěny U = 0,12 W/m2K. Ke každému domu se provádí zkouška vzduchotěsnosti od VVÚD Praha. Základový práh z vrstveného dřeva (Ultralam) se zakládá na vysokopevnostní izolant, který maximálně chrání nejzásadnější část celé konstrukce a zvyšuje její životnost. Konstrukci obvodové stěny tvoří Steico wall nosníky, které oproti běžně používaným KVH hranolům snižují výskyt tepelných mostů v obvodové stěně. Vnitřní plášť je zhotoven z Vapor desek. Vnější opláštění tvoří H2O desky s odvětranou mezerou. Tato konstrukce dosahuje při nezmenšeném půdorysu vyšších izolačních vlastností obvodové stěny.
- VZOROVÉ DŘEVOSTAVBY:Po dohodě lze navštívit probíhající výstavbu v různém stupni dostavěnost.
- ZÁRUKA KVALITY:Zárukou kvality provedení stavby by mělo být členství v ADMD a předání blower door testu ke každému zhotovenému domu.
- PŮSOBNOST: Ústecký a Středočeský kraj.
- SÍDLO FIRMY:Doksany 1E, 411 82, +420 603 449 540, +420 604 434 532, Tato emailová adresa je chráněna před spamboty, abyste ji viděli, povolte JavaScript , www.drevostavby-dbh.cz
- Ukázka již realizovaných dřevostaveb
















.jpg)
.jpg)
.png)
.jpg)
.png)
.jpg)
.jpg)

Vytvořeno v xart.cz