Redakce | Středa, 22. říjen 2025 |
Tato atypická modulární dřevostavba v Tasovicích u Znojma je již pár měsíců novým sídlem společnosti Kasali – tradičního výrobce ocelových roštů. Nejedná se o žádnou okázalou dominantu, ale o promyšlené a vysoce funkční zázemí, které představuje názornou ukázku toho, že i administrativní stavba může být krásná, chytrá i ekologická zároveň. A v neposlední řadě: dřevěná. Pro zadavatele přitom představovala především důležitý logistický krok.
Společnost Kasali svým zákazníkům již téměř 30 let nabízí komplexní servis spojený s dodávkami podlahových a regálových roštů, schodišťových stupňů a systémových dílů pro stavební a technologické ocelové konstrukce, podest, roštů do anglických dvorců a dalších stavebních dílů pro široké využití v mnoha oblastech průmyslu. Donedávna však od sebe výrobní a kancelářskou část dělilo několik kilometrů, což se z hlediska provozu jevilo jako poměrně nepraktické.
Rozhodnutí postavit nové sídlo tedy vzešlo primárně z potřeby spojit oba provozy pod jednu střechu, zefektivnit jejich vzájemnou komunikaci a vytvořit příjemné, moderní a zdravé pracovní prostředí pro deset zaměstnanců.
Když jsou majitelé firmy opravdu osvícení...
... takto na spolupráci se zadavatelem vzpomíná Vojtěch Juřenčák z firmy Eko modular, která stavbu realizovala. Hlavními požadavky totiž kromě rychlosti výstavby byly ekologický přístup, energetická úspornost a důraz na detail. Právě modulární dřevostavba, navíc provedená zkušeným dodavatelem, takové zadání předem ve všech směrech splňovala. „Tradiční staveništní nebo panelová dřevostavba se staví delší dobu a je vystavena vnějším podmínkám, zatímco ta modulární vzniká ve výrobní hale. Po spojení jednotlivých částí modulů už je pak dům od klasické dřevostavby k nerozeznání," říká Vojtěch Juřenčák.
Při výrobě modulů se stejně jako u ostatních typů dřevostaveb používají materiály s menším dopadem na životní prostředí a rychlou a přesnou instalací na stavbě se současně snižuje i množství stavebního odpadu. Modulární bydlení bývá navíc často navrženo s ohledem na energetickou účinnost, dřevostavby v pasivním standardu nejsou nic neobvyklého. S ohledem na náklady i potřebu rychlejšího a udržitelnějšího způsobu výstavby se dá očekávat další vzestup popularity modulárních staveb, a to nejen v oblasti individuálního bydlení. Spolupráci tak nic nestálo v cestě.
Možnosti a výhody modulární dřevěné architektury prezentuje Eko modular i na svém rodinném a firemním sídle v jihomoravských Tvrdonicích, z něhož jsme vám přinesli návštěvu v čísle 1/2025.
Nemožné na počkání, zázraky do tří dnů?
Pokud si někdo z Kasali vzal toho chladného únorového dne dovolenou, nejenže se nazítří po příchodu do práce asi dost divil, ale mohl i litovat, že propásl celou stavbu nového firemního sídla. Instalace se totiž skutečně zvládla za jediný den. Podobně rychle a efektivně proběhla i montáž rohové venkovní terasy, která obklopuje dvě strany budovy a byla na místo dodána jen ve dvou panelech.
Elegantní konstrukce pro nesení skleněných panelů pak zajišťuje statické zesílení pergoly. Výsledkem technické spolupráce s architektem je na první pohled patrná perfektní souhra moderních technologií a architektonického designu. Společným úsilím tak vznikla pasivní dřevostavba s nadčasovým interiérem a řadou moderních funkcí a vymožeností, která administrativním zaměstnancům nejen umožňuje každodenní kontakt s kolegy z výrobní části, ale poskytuje jim i nadstandardně příjemné, zdraví prospěšné a atraktivní pracovní prostředí.

Foto: Martin Zeman
MODULÁRNÍ STAVBA JAKO VÝHODNÉ ŘEŠENÍ
Administrativní sídlo společnosti Kasali je další z řady úspěšných projektů firmy Eko modular, která se dlouhodobě specializuje na výrobu a realizaci nízkoenergetických a pasivních modulárních staveb. Tento trend se v posledních letech stává stále populárnějším, zejména s ohledem na rychlost výstavby.
Modulární bydlení se skládá z prefabrikovaných modulů, předem vyrobených v krytém výrobním prostředí, jež se následně instalují na místě stavby, a celý proces výstavby tak může být mnohem kratší než u tradičních staveb.
Další velkou výhodou je flexibilita a variabilita modulů – mohou být různých velikostí i konfigurací a jejich prostřednictvím mohou vznikat různé typy budov, od menších domů až po větší bytové či administrativní komplexy. Pokud se potřeby v budoucnu změní, mohou být moduly přesunuty na jiné místo nebo přestavěny, aby vyhovovaly novým požadavkům.
Račte dál...
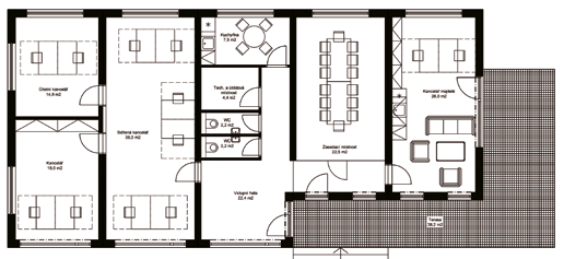
Budova, kterou tvoří sestava pěti modulů, je promyšlená a čistě provedená do posledního detailu. Ve třech větších modulech o rozměrech 4 × 10 m se nachází dvě menší a jedna velká sdílená kancelář a zázemí – vstupní hala, toalety, technická a úklidová místnost a kuchyňka. Následují dva kratší moduly, 4 × 8 m, po jejichž obvodu vede otevřená terasa – do této části je situována zasedací místnost a kancelář vedení společnosti.

Foto: Martin Zeman

Foto: Martin Zeman
Vstupy do budovy jsou opatřeny čisticími zónami, což představuje praktické řešení pro čistotu a komfort v kancelářích. Estetickým a zároveň funkčním prvkem moderní kanceláře nesporně je designová a praktická betonová stěrka, zatímco o precizní nastavitelné osvětlení se stará světelná rampa značky Danlux. Maximální pohodlí a bezpečnost jsou zajištěny kompletním dálkovým servisem automatizace Loxone a s ohledem na efektivní řešení pro úsporu energie a udržitelnost se nezapomnělo ani na fotovoltaiku a zelenou střechu.

Foto: Martin Zeman

Foto: Martin Zeman
Spokojenost na obou stranách
„Chtěli bychom touto cestou poděkovat firmě Eko modular za skvěle odvedenou práci při stavbě firemního sídla. Přístup manželů Juřenčákových je vysoce profesionální s důrazem na všechny detaily. Od podpisu smlouvy až po samotnou realizaci stavby vše probíhalo podle navrženého harmonogramu v rekordním čase," uvádí za společnost Kasali Pavlína Jílková.
„Dnes se již těšíme z nových prostor, kde se cítíme naprosto úžasně. Všechny navržené technologie – jako rekuperace, klimatizace a automatické stínění budovy – spolu s ostatními použitými materiály nám zajišťují vysoký komfort pro naši práci. Modulová dřevostavba od firmy Eko modular byla jednoznačně výborná volba."
A co na spolupráci říká realizátor stavby, Vojtěch Juřenčák? „Uvědomělý a moderně smýšlející investor zde pochopil tu hlavní výhodu modulární výstavby, jíž je rychlost. Dal nám prostor posunout kancelářský prostor k dokonalosti a máme pocit, že se to opravdu povedlo."

Foto: Martin Zeman

Foto: Martin Zeman
Kasali V ČÍSLECH
- Dispozice: sestava 5 modulů
- Zastavěná plocha: 184,2 m²
- Užitná plocha: 155 m²
- Konstrukční systém: nízkoenergetická modulární dřevostavba
- Vytápění: elektrické podlahové + teplovzdušné, centrální rekuperace
- Projekt: Ing. Gabriela Juřenčáková
- Návrh interiéru: Andrea Pastrnek
- Realizace: 2024
- Realizační firma:Eko modular s.r.o., www.ekomodular.cz

AUTOR ČLÁNKU PRO ČASOPIS DŘEVO&STAVBY 3/2025: DAGMAR DIGMA ČECHOVÁ















Vytvořeno v xart.cz