| Název: | PRIMO 117 |
| Kategorie: | Projekty dřevostaveb - katalog dřevostaveb na klíč |
| Společnost: | WOLF SYSTEM, s.r.o. |
| Charakteristika domu: |
|
| Počet podlaží: | vícepodlažní |
| Konstrukční systém: |
|
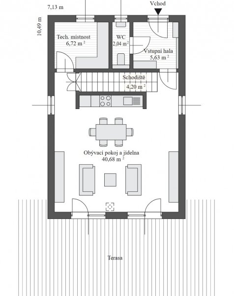
| Podlahová plocha (užitná): | 114,00 m² |
| Zastavěná plocha: | 75,00 m² |
| Dispozice: | 3+kk / 3+1 |
Aktuální ceny naleznete na stránkách, případně na dotaz u prezentované společnosti.
Primo 117 je moderní dvoupodlažní dům, který je zvenku kompaktní, ale uvnitř dostatečně prostorný a pohodlný pro rodinný život.
Tento dům byl navržen s ohledem na efektivní využití každého centimetru čtverečního, díky čemuž se perfektně hodí i na menší nebo úzké pozemky. Nadčasová architektura, minimalistický styl a možnost úpravy střechy z něj dělají ideální univerzální dům, který skvěle zapadne do jakékoli zástavby. Dům lze v případě potřeby snadno zvětšit.
Primo 117 kombinuje nadčasovou architekturu, funkčnost a dostupnost. Díky promyšlené dispozici je vhodný nejen pro rodiny, ale i pro jednotlivce či páry, které hledají kvalitní bydlení s nízkými provozními náklady.
|
Oznámkujte |
Oblíbené: 0 |
|
LUCERN 116 - dřevostavba na klíč
LUCERN dřevostavby s.r.o.
Užitná plocha: 103.1 m²
Dispozice: 4+kk / 4+1
RD Mnichovice
EKOPANELY SERVIS s.r.o.
Užitná plocha: 124.3 m²
Dispozice: 3+kk / 3+1
Rodinný dům Tábor - dřevostavba na klíč
ALFAHAUS s.r.o.
Užitná plocha: 137 m²
Dispozice: 4+kk / 4+1
Optimal 02 - dřevostavba na klíč
PENATUS s.r.o.
Užitná plocha: 124 m²
Dispozice: 4+kk / 4+1
Ekologická dřevostavba
EKOPANELY SERVIS s.r.o.
Užitná plocha: 128 m²
Dispozice: 3+kk / 3+1
Pavo 111 - dřevostavba na klíč
A T R I U M, s.r.o.
Užitná plocha: 111.03 m²
Dispozice: 5+kk / 5+1
Chata v Jizerských horách - dřevostavba na klíč
3AE s.r.o.
Rodinný dům 307 - dřevostavba na klíč
PILA MARTINICE s.r.o.
Užitná plocha: 130 m²
Dispozice: 5+kk / 5+1
Futura Freestyle - dřevostavba na klíč
Prodesi I Domesi
Užitná plocha: 107.8 m²
Dispozice: 3+kk / 3+1
Lesníkova roubenka
EKOPANELY SERVIS s.r.o.
Užitná plocha: 260 m²
Dispozice: 5+kk / 5+1
Dům se sloupy z douglasky
ARCHCON atelier, s.r.o., DŘEVOSTAVBY BISKUP, s.r.o.
Užitná plocha: 118.44 m²
Dispozice: 4+kk / 4+1
Bennet
KANADSKÉ SRUBY TÁBOR, s.r.o.
Užitná plocha: 177 m²
Dispozice: 5+kk / 5+1
EKONOMY MS 04 - dřevostavba na klíč
MS HAUS s.r.o.
Užitná plocha: 85 m²
Dispozice: 4+kk / 4+1
Dům venkovského stylu
EKOPANELY SERVIS s.r.o.
Užitná plocha: 153 m²
Dispozice: 4+kk / 4+1
Nízkoenergetická dřevostavba
EKOPANELY SERVIS s.r.o.
Užitná plocha: 115 m²
Dispozice: 4+kk / 4+1
Proč jste na portále DŘEVO&stavby?
Copyright © 2026 Českobrodská 35, 190 12 Praha 9 - Dolní Počernice Kontakt
