Markéta Kristová | Úterý, 05. červenec 2022 |
Nový koncept typového domu EVO je určen pro všechny, kterým není lhostejná naše planeta a její ochrana. Architekt Michael Šilar ho s týmem studia Prodesi/Domesi navrhl s ohledem na principy udržitelnosti a ekologie s odolnou a trvanlivou fasádou z opalovaného dřeva, která je nejen vizuálně atraktivním řešením, ale také hrdým přiznáním domu ke konstrukčnímu materiálu, ze kterého je postaven – ke dřevu.
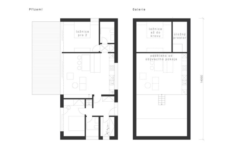
Jednopodlažní dům klasického obdélníkového půdorysu se sedlovou střechou je řešením pro malé rodiny nebo bezdětné páry, které preferují život ve zdravém, komfortním prostředí. Dům může stejně tak dobře fungovat jako „únik" z městského bytu při práci z domova či jako víkendová alternativa. V základní variantě nabízí 62,1 m2 s dalšími 16,5 m2 na platformě pod střechou využitelné jako herna pro děti, spaní pro hosty či jako pracovna. V rozšířené variantě EVO může mít dům dispozici až 4+kk s galerií, přičemž rozšíření domu lze řešit i etapově – na začátku EVO postavit v základní variantě s „přípravou" na přístavbu v budoucnu, až bude podle životních okolností potřeba.
.png)
Zdroj a autor fotografie se souhlasem: Studiosme
Konstrukčně je dům navržen v systému masivních dřevěných panelů CLT vyráběných průmyslově a na stavbě rychle montovaných do výsledného celku. Tepelné čerpadlo vzduch-voda s podlahovým vytápěním a ohřevem teplé vody je řešením, které v dnešní době zdražujících se energií a požadavků na ekologii dává jako jedno z mála smysl. Návrh počítá také s využíváním dešťové vody na splachování. Technologie lze doplnit o fotovoltaické panely, které pak v kombinaci s vlastní studnou povýší EVO na „off-grid" bydlení. Koncept EVO odráží požadavky většiny CHKO a nic tak nebrání jeho výstavbě v horských oblastech.
.png)
Zdroj a autor fotografie se souhlasem: Studiosme
Komentář autora návrhu
Při návrhu domu a výběru materiálů jsme se zaměřili na řešení, které reflektuje principy udržitelnosti a ekologie. Většina materiálů je přírodních, převážně je využíváno dřevo – jediný obnovitelný stavební materiál, který v cyklu od růstu stromu po stavbu domu více CO2 pohltí, než vyprodukuje. Zvolit si lze také větší poměr recyklovaných materiálů, které tak zakončí svůj životní cyklus smysluplnou formou. Dispozičně jsme dům navrhli jako variabilní odpověď na různé životní etapy, v nichž se postupně ocitáme. Snažíme se tak o maximální udržitelnost stavby nejen z hlediska stavebních materiálů a použitých technologií, ale i vzhledem k provozu domu a jeho využitelnosti pro obyvatele z dlouhodobého časového horizontu.

Ing. arch. Michael Šilar
autor návrhu domu EVO
Foto architekta: Prodesi | Domesi s.r.o.














.jpg)
.jpg)
Vytvořeno v xart.cz