Markéta Kristová | Středa, 02. srpen 2023 |
I z typového projektu může být dům podle vašich představ. Perfektním příkladem je i tato moderní dřevostavba, kterou si majitelé nechali upravit. Jak se jim bydlí, co by udělali jinak a jak hodnotí realizaci?
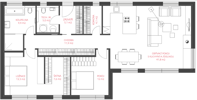
Tento dům vychází z typového domu LUCERN 118, ale byl uzpůsobený přáním a potřebám klientů. Dům o velikosti 110,4 m2 užitné plochy o dispozici 3+kk má zajímavě kombinovanou fasádou z šedé omítky a dřevěného obkladu ze sibiřského modřínu. Dům je spojen ze dvou částí – obytné a klidové. V obytné části najdeme velký obývací prostor s kuchyňským koutem a jídelnou. Tento prostor je velký a světlý hlavně díky spoustě oken a otevření půdního prostoru do krovu.
Atmosféru a teplo domova dotváří i samostatně stojící krb. Na tuto obytnou část navazuje dlouhá chodba s vestavnou skříní po celé jedné straně. Z chodby se následně dostaneme do pokoje pro hosty, ložnice, která má svou vlastní šatnu a do koupelny. Nechybí zde ani spíž, technická místnost se psí sprchou, majitelé jsou totiž milovníci zvířat, dohromady vlastní tři kočky a jedno psa. Majitelé také upravili část půdy jako útočiště pro svá vnoučata.
Proč jste se rozhodli pro dřevostavbu?
Od první myšlenky na stavbu domu jsme měli jasno v jediné věci - bude to dřevostavba. Dřevo máme rádi ve všech jeho podobách a argumenty byly jasné - rychlá, suchá stavba, čistá a jednoduchá instalace všech rozvodů a v neposlední řadě energetická nenáročnost. Po roce bydlení si stále pochvalujeme příjemné klima v domě. Dřevo je navíc na pohled krásné, neokoukatelné a příjemně voní.
Měli jste od začátku představu, jak bude dům vypadat nebo jste nechali návrh čistě na realizační firmě?
Vybrali jsme typový dům, který jsme téměř kompletně v průběhu projektování změnili. Díky trpělivé architektce a jejímu praktickému náhledu jsme vždy našli řešení, které bylo nejen podle našich představ, ale i reálné.
Jak jste přišli na firmu LUCERN a jak probíhala realizace?
Na firmu Lucern jsme narazili v té úplně prvotní fázi když jsme si tvořili představu o budoucím domě brouzdáním na internetu. Precizní a přitom pro laika srozumitelné webové stránky nás hned zaujaly. Jednak jsme se dozvěděli maximum informací o dřevostavbách vůbec o používaných materiálech a průběhu výstavby a díky fotogalerii realizací jsme hned věděli, že tohle bude to pravé.
Při první návštěvě ve vzorovém domě jsme si tuto intuitivní volbu jen potvrdili. Pro klid duše jsme ještě navštívili jednoho dodavatele ale to skutečně jen abychom se ujistili, že lépe vybrat nemůžeme. Zkrátka nám Lucern byl od začátku tak nějak hodně sympatický.
Následná realizace probíhala ve stejném duchu. Stavební povolení jsme díky našemu externímu stavebnímu dozoru a perfektně připravenému projektu Lucernem získali během jednoho týdne, což nám nikdo nechce věřit. Celá stavba trvala rekordních 8 měsíců. V říjnu se koplo do země, další rok v květnu jsme bydleli a v červnu zkolaudovali.
Malé "komplikace" se samozřejmě v průběhu stavby vyskytly (např. krádež obou jednotek tepelného čerpadla měsíc před plánovaným nastěhováním...) ale vždy se našla cesta jak to vyřešit co nejlépe a hlavně v klidu tak, jak si to u stavby na klíč představujete.
Proč jste se rozhodli pro dřevěný obklad na fasádě?
Jednak se nám to moc líbí a pak kde jinde už by měl být dřevěný obklad, když ne na dřevostavbě? Navíc kombinace dřevo / fasáda antracit je prostě dokonalá a nadčasová.
Co si na dřevostavbě nejvíce užíváte a udělali byste něco jinak?
V domě jednoznačně obývací pokoj s kuchyní. Otevření do krovu je příjemně vzdušné, přiznané trámy zase dělají celý prostor útulným, a když v zimě praská oheň v krbových kamnech, nemá to chybu. A pak samozřejmě terasu a kontakt se zahradou, to městský člověk z paneláku náležitě ocení.
Co bychom udělali jinak? Malinko bychom zvětšili technickou místnost, kde máme kromě klasického vybavení i "hygienické zázemí" pro naši smečku domácích mazlíčků (pes + 3 kočky) - psí sprchu a kočičí toalety. V podzimním období by se nám hodila rekuperace. Jsme v mrazivém "ďolíku". Podzimní mlhy jsou sice melancholicky romantické, ale vlhkost je pak při větrání okny všudypřítomná.
Technické parametry
- Zastavěná plocha: 132,2 m²
- Užitná plocha: 110,4 m²
- Dispozice: 3+kk
- Technologie: tepelné čerpadlo IVT, podlahové vytápění REHAU
- Projekt a realizace: LUCERN dřevostavby s.r.o., www.lucern.cz



















Vytvořeno v xart.cz