Redakce | Úterý, 09. prosinec 2025 |
„Nebyli jsme tady spolu už jednou?" zamyslí se fotograf, když se pozdravíme před poloroubenkou v Orlických horách. „Byli, támhle kousek. Přesně před rokem," usměju se. Jak velká je pravděpodobnost, že nás osud zavane téměř na den přesně na stejné místo, a to ve stejně krásný den? Nezbývá než přijmout milé pozvání pána domu, který už nám spěchá v ústrety, a přesvědčit se na vlastní oči, že nejde jen o déjà vu.
Klasická tradiční roubenka pro nás má nachystané velké překvapení hned po průchodu vchodovými dveřmi. Její interiér je totiž – vnějšímu vzezření navzdory – zařízený čistě, moderně a minimalisticky, s důrazem na kvalitní materiály. Běžný chalupářský styl totiž není a nikdy nebyl blízký ani Jarmilovi, ani jeho ženě a od úplného počátku věděli, že půjdou jinou cestou.
Spojení na první pohled tradiční roubenky s moderním interiérem je lákalo. Na pomoc si pozvali kamarádku Elišku Šafránkovou z Brna, která se interiérovému designu věnuje a pomohla jim vymyslet nejen celkové ladění interiéru, ale i rozložení zásuvek, vypínačů či svítidel a navrhla dispozice kuchyní a koupelen. Na vybavení je vidět, že si na něm majitelé dali opravdu záležet.
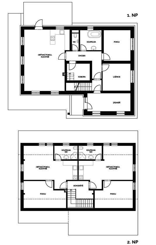
Dalším překvapením je, že chalupa, která od silnice nevypadá nijak velká, pojme hned dva apartmány, každý pro čtyři hosty, a i plnohodnotné prostory pro majitele s velmi velkorysou podlahovou plochou.

obr.: Od silnice vypadá chalupa skromně a vlastně úplně obyčejně, ukrývá ale dva prostorné apartmány k pronájmu i velkorysý rekreační prostor pro majitele.
Foto: Martin Zeman
Pohoda pro majitele i hosty
Oba apartmány pro hosty jsou v podkroví, zrcadlově proti sobě. Díky otevření prostoru do krovu a rafinovaně umístěným oknům jsou vzdušné a velmi příjemné. I Jarmil potvrzuje, že jsou tu hosté spokojení a rádi se sem vracejí. Majitelé je zařídili stejně jako prostory pro sebe – jednoduše, ale s citem pro detail. Přízemí pak slouží k rekreaci Jarmilovi a jeho rodině. Mají tu vše, co potřebují – hlavní obytnou místnost s plně vybaveným kuchyňským koutem a přímým přístupem na terasu, zahradu, ložnici pro rodiče i pokoj pro děti a sociální zařízení.

obr.: V zařízení apartmánů se majitelé drželi stejných parametrů jako v soukromé části – jednoduché čisté linie a kvalitní materiály si s masivními trámy překvapivě dobře rozumí. Kuchyň ale není jen na ozdobu – je vybavená tak, aby se zde každý cítil jako doma a mohl stejně plnohodnotně i vařit. Foto: Martin Zeman

obr.: Apartmány v podkroví jsou díky otevřeným krovům a oknům vzdušné a světlé. Foto: Martin Zeman
Návrat k dětským snům
Pro Jarmila byla chalupa na horách dětským snem. Do Orlických hor jezdili s rodiči – z Hradce, odkud pochází, to není daleko a měli zde i příbuzenské vazby. Díky tomu tu trávili hodně času – lyžováním, turistikou i návštěvami. Proto když se rozhodli pořídit si vlastní chalupu na horách, byly ty Orlické první volbou. Pozemek se jim podařilo sehnat kousek od místa, kde se právě nacházíme.
Začali projektovat chalupu, ale Jarmil měl pochybnosti. Něco mu říkalo, že to prostě není ono. I když rozum velel nevymýšlet hlouposti, srdce ho pořád táhlo jinam. Nakonec jeho volání přece jen vyslyšel, a i když byl původní pozemek zaplacený, začal se rozhlížet ještě jinde. Přes několik kontaktů se dostal právě sem a ve chvíli, kdy na parcelu poprvé přišel, věděl, že tohle je přesně ono. Neváhal, původní pozemek prodal a začal pěkně od začátku. A rozhodně nelituje – je to pro něj i jeho rodinu skvělé místo.

obr.: I když jde o prostor sloužící k rekreaci, nešetřilo se zde na do detailů promyšleném zařízení. Foto: Martin Zeman

obr.: Koupelna majitelů poskytuje veškerý komfort, který potřebují. Foto: Martin Zeman
Od papíru ke skutečné chalupě
Projekt na stavbu připravila firma, která zařizovala stavbu zděné části. Tu roubenou z TRIO hranolů z alpské borovice zajistil místní stavitel roubenek pan Bartoš, kterého si Jarmil vyhlédl právě v našem časopisu. Hlavním kritériem byla nejen kvalita práce, ale i to, že staví z vysušeného dřeva. S tím, že by chtěli poloroubenku, pracovali majitelé od začátku. Šlo jim hlavně o propojení příjemného životního komfortu v masivní dřevěné části a praktického využití cihelných stěn pro technické místnosti, jako je lyžárna nebo koupelna.

obr.: Nad poloroubenkou majitelé přemýšleli už od začátku plánování, hlavně kvůli umístění technického zázemí, koupelny a lyžárny. Foto: Martin Zeman
Stejně tak se už od začátku zaobírali myšlenkou, že by prostor měl sloužit nejen jim, ale i k pronájmu, ze kterého by se stavba postupně zaplatila. Ve hře byla různá řešení, majitelé zvažovali i dvě menší chalupy, ale nakonec se rozhodli pro rozdělení jedné stavby na část komerční a soukromou. Stejně tak velmi pečlivě promýšleli, jakou ubytovací kapacitu budou nabízet. I podle zkušeností jiných pronajímatelů se nakonec rozhodli pro ubytování osmi hostů a dobře udělali. Osm je totiž ideální počet pro rodinou rekreaci. Deset a více už láká větší skupiny hostů.

obr.: Majitelé mají z hlavního obytného prostoru přístup přímo na terasu. Okolní krajina je pak na dosah ruky. Do budoucna by pobyt zde měla zpříjemnit i sauna.
Foto: Martin Zeman
Výstavba v době pandemie
Se stavebním povolením nebyly žádné potíže a po jeho získání se mohlo začít stavět. V roce 2019 se poprvé koplo do země. Jarmil si stavbu dozoroval sám a přiznává, že občas bylo složité všechny práce zkoordinovat, takže sem musel jezdit, kdykoliv to šlo. Snažil se také řemeslníkům „koukat pod ruce" a něco se přiučit. Jako kluk z bytu nebyl na starost o dům zvyklý, dnes už se ale ničeho nebojí a se spoustou věcí si poradí sám. Jak stavba, tak její logistika, a nakonec i samotné užívání a udržování roubenky byly a stále jsou tou nejlepší školou.
Jarmil také přiznává, že měli štěstí a dokázali všechno potřebné nakoupit dříve, než ceny stavebních materiálů za covidu prudce vzrostly. Vyhnuli se i dalším potížím, které v této době provázely ostatní stavitele. Stavba samotné roubené části pak šla z celého procesu nejrychleji. Byla hotová během jediného týdne, i když ji na chvíli přerušil déšť. Okny a dveřmi pak roubenku vybavil pan Srnský. I tak ale covidovou uzávěru strávili majitelé ještě doma, sami sem začali pravidelně jezdit až po pandemii a v roce 2022 se mohli ubytovat první hosté.
Komfort pro všechny
Majitelé roubenku vybavili dálkově ovládaným podlahovým topením v přízemí i patře, aby mohli teplotu řídit z domova. Využívají ho hlavně k temperování, když v chalupě nejsou, a k vyhřívání komerčního podkroví. V hlavní obytné místnosti si nechali nainstalovat moderní krbovou vložku, která bez problémů vytopí celý prostor. Podlahy nechali všude udělat dubové, přizpůsobené podlahovému topení, protože komfort dřeva oproti dlažbě považují za nepřekonatelný.
V plánu mají ještě vybudovat pro sebe i hosty saunu a zahradní domek, který poslouží nejen na uskladnění důležité mechanizace a nářadí, ale bude v něm i letní kuchyně s posezením. Stavbu by znovu rádi svěřili panu Bartošovi, se kterým i nadále udržují kontakt a dobré vztahy.

obr.: Čistá, jednoduchá, funkční... a krásná. Foto: Martin Zeman

obr.: Když se spojí zdánlivě nespojitelné – tradice a čistý minimalistický styl. K oběma majitelé přistoupili s velkou pokorou a citem pro materiály i detaily. Foto: Martin Zeman
Slovo dodavatele
Investor se na nás obrátil s jasnou představou a očekáváním toho, jak má chalupa vypadat a jaké požadavky by měla splňovat. Díky přesné vizi dokázal srozumitelně zformulovat veškerá svá očekávání, a jednání tak probíhala věcně a rychle. Roubenou část, včetně konstrukce krovu, se nám i přes značnou nepřízeň horského počasí podařilo postavit za 5 dní. Pokrývačské práce perfektně navazovaly – roubenka byla pod střechou v řádu několika málo dnů a mohlo se začít s dokončením řemeslných úprav interiéru. Vznikla nádherná prostorově velkorysá poloroubenka, která nabízí očekávaný komfort jak majitelům, tak hostům v podkrovních apartmánech. Děkujeme za důvěru a moc se těšíme na další spolupráci!

Štěpán Bartoš
Bartoš dřevostavby.
Výhled do budoucnosti
Na to, jak se v roubence cítí, odpoví velmi rychle a jednoznačně: „Chtěli bychom tu bydlet." Celá rodina je tady velmi spokojená a každý pobyt si užívá na maximum. Oproti bytu v Hradci Králové je tu mnohem příjemnější klima, dřevo dýchá a voní. V létě udržuje příjemnou teplotu ve dne i v noci, v zimě nepromrzá a rychle se vytápí. Navíc blízkost přírody je benefit, který oceňují všichni.
Jarmila samotného to do hor táhlo vždycky, ale chalupu si zamilovala i jeho žena, která prý byla vždy spíš milovníkem jižních krajin a moře. Teď tady ale tráví veškerý volný čas, kdykoliv je to jen trochu možné. Netáhne je sem jen okolní příroda, ale také otevřená místní komunita, kde si našli přátele, jak mezi chalupáři, tak u stálých obyvatel. Proto stále zvažují, jak zařídit, aby tu mohli zůstat natrvalo. Zatím by to ale bylo logisticky příliš složité, tak třeba jednou, až děti odrostou.

obr.: Díky citu pro prostor mají apartmány velmi příjemnou atmosféru. Foto: Martin Zeman

Tato dřevostavba soutěží v anketě DŘEVOSTAVBA ROKU 2025
Pomozte nám zvolit nejhezčí dřevostavby! Tato roubenka se uchází o váš hlas v anketě Dřevostavba roku 2025 pod názvem "Překvapení v tradičním kabátě". Hlasujte do 31. 12. 2025 v tomto kole a získejte atraktivní ceny...
Hlasovat v anketě
Technické parametry
- Zastavěná plocha: 132,55 m2
- Užitná plocha: 283,5 m2
- Dispozice: přízemí 2 + kk, apartmány 2× 1 + kk s otevřeným patrem
- Konstrukční systém: obvodové masivní stěny z lepených TRIO hranolů z alpské borovice, zděná část z Porotherm T44, podkroví montovaná dřevostavba zateplená stříkanou a PIR izolací
- Ošetření stěn: v exteriéru Remmers HK Lazur Pinie, v interiéru transparentní vosková lazura Remmers
- Střešní krytina: hliníková falcovaná, Prefa
- Zdroj energie / teplo: dálkově řízené podlahové topení, krbová vložka
- Větrání: přirozené okny
- Podlahy: dubový sendvič, dlažba
- Návrh interiéru: Ing. arch. Eliška Šafránková
- Projekt: Ing. David Antoš
- Realizace: 2019, Bartoš dřevostavby s.r.o., www.bartos.cz


Tento článek vyšel v časopisu sruby&ROUBENKY 4/2025
Objednejte si krásně vonící výtisk časopisu s kvalitními fotografiemi pouze za 99 Kč
koupit časopis
AUTOR ČLÁNKU: MARTINA MÁTA NOSKOVÁ pro časopis sruby&ROUBENKY
Vaše komentáře (0)Nejnovější články v kategorii “Návštěvy dřevostaveb”
-
Zrcadlová roubenka na soutoku
Majitel této roubenky – říkejme mu třeba Martin – měl jasný cíl: postavit svým dospělým dětem dům, kam by mohly o víkendech jezdit a být mu tak i s vnoučaty nablízku. A aby to…
-
Dřevěný domov v krajině rozlehlých luk
Tento příběh připomíná dokonalou pohádku o tom, kterak Kateřina a Jiří našli svůj vytoužený klid v podhůří Krkonoš. Jejich pozemek o rozloze dvaceti tisíc metrů čtverečních je…
-
Dávno splněný sen v podobě patrové dřevostavby na míru
Některé plány a nápady potřebují čas, aby mohly uzrát. Hluboko zapustit kořeny a trpělivě čekat na tu správnou dobu. Jako v tomto případě – poprvé totiž Milan na „svou"…
-
Dřevěná vila schoulená v náručí krajiny
Každý dům nevyhnutelně mění krajinu – jakým způsobem, to už záleží na jeho majitelích. Některé stavby přetvářejí okolí podle svého obrazu, jiné se naopak snaží splynout. A…
















Vytvořeno v xart.cz