Markéta Kristová | Pátek, 25. srpen 2023 |
Někdo nad souslovím „typový dům" ohrnuje nos. Ve skutečnosti ale s ověřeným (na to pozor!) typovým domem nemůžete šlápnout vedle. Ušetříte za projekt, všechny detaily jsou technologicky dotažené a montážní parta nemusí vůbec „experimentovat". Navíc, navrhne-li Vám typový dům tandem zkušených architektů, nemusíte slevovat ani z designu. A poslední výhoda je možnost návštěvy, ať už jen té krátké, po boku architekta, nebo třeba víkendové, díky které si budete moct Váš nový dům vyzkoušet podobně, jako si v autosalonu vždy před koupí sednete do nového vozu.
Moderní typová dřevostavba do svahu i CHKO
Freestyle je mezi klienty Prodesi/Domesi jednoznačně nejoblíbenější typovou dřevostavbou. V ČR a na Slovensku jich stojí již kolem 70. Je to dům z CLT panelů v tradičním obdélníkovém tvaru se sedlovou střechou, pod níž je umístěno podkrovní podlaží, které lze využít jako otevřenou galerii, nebo jako plnohodnotné uzavřené patro. Systém založení stavby na zemních vrutech je vhodný i na svažité pozemky. Projekt dokáže splnit i ty nejpřísnější regulativy platné pro území typu CHKO a perfektně zapadne jak do horské krajiny, tak i do městské zástavby.
Vždy originální i přesto, že je typová
Přestože je Freestyle typovým domem na klíč, každý nový projekt je vždy jiný – přizpůsobitelný potřebám a požadavkům konkrétního klienta. Dřevostavbu lze například libovolně protáhnout a zvětšit tak vnitřní obytnou plochu. Také je možné přistavět jednoduchý přízemní objekt sloužící jako zádveří či sklad, nebo přidat stříšku nad vchod. Veškeré změny a úpravy projektu probíhají vždy ve spolupráci s architektem a dům tak neztratí jednotnost stylu, vizuální čistotu, ani funkčnost.
Rychlá a přesná stavba
Freestylku Prodesi/Domesi staví technologií masivních dřevěných panelů (CLT). Nosná struktura domu se nejdříve přesně zakreslí do počítače a následně je přenesena pomocí CNC technologií do měřítka 1:1. Ve výrobě tak vznikají jednotlivé elementy pro stěny, stropy i střechu, které jsou následně na stavbě velice rychle smontovány do výsledného celku. Nad hlavní obytnou místností s krbem je umístěné otevřené patro, které může sloužit jako volný prostor na dětské hraní, k relaxaci, nebo třeba cvičení jógy.
Dřevostavba k pronájmu
Ukázkový dům Freestyle v Pulečném vznikl z potřeby mít možnost představit zájemcům o nové bydlení, jaké to je žít právě v dřevostavbě. Je využíván ke krátkým návštěvám s architekty, kteří tak mohou klientům v praxi prezentovat materiály, technologie i samotný prostor, ale i pro víkendové nebo delší pobyty. Ve dnech s hezkým počasím je nejoblíbenějším koutem terasa, kde si můžete vypít dobrou kávu nebo třeba grilovat s přáteli.
Dřevo zvenku i uvnitř
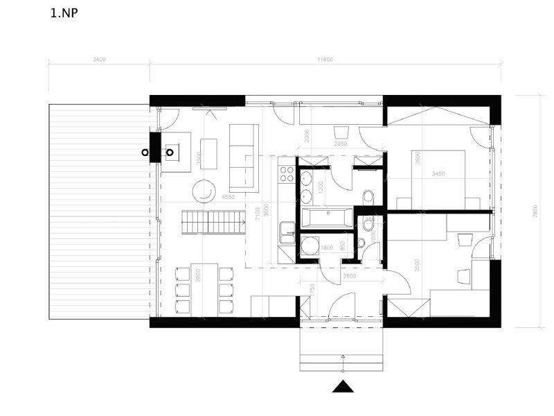
Část vybavení v téhle konkrétní „Freestylce" je vyrobené na míru z CLT panelů, tedy z pro nábytek netradičního materiálu. Jedná se o stejné desky, které byly použité na konstrukci domu a díky kterým je celý interiér skrz naskrz prošpikovaný dřevem. Dům má na jedné straně obytný prostor a terasu, ve středové části se nachází průchozí pracovna, koupelna, toaleta a technická místnost, vzadu jsou pak dvě ložnice, kde se ubytují až 4 osoby.
Technické parametry
- Místo stavby: Pulečný – Jizerské hory
- Autoři: Ing.arch. Václav Zahradníček, Ing.arch. Pavel Horák (Prodesi/Domesi)
- Rok dokončení: 2012
- Realizační firma: Domesi s.r.o.
- Užitná plocha (základní varianty): 108 m2
- Zastavěná plocha (základní varianta bez terasy): 75,2 m2
- Objem dřeva v jedné dřevostavbě Freestyle: 19 670 kg















Vytvořeno v xart.cz