Redakce | Pondělí, 20. listopad 2023 |
Mário a Anna žijí spolu a se dvěma syny v Bánské Bystrici na úpatí Nízkých Tater v moderním atypickém domě. Milují však vodu a sporty s ní spojené. Proto je to vždy táhlo k Liptovské Maře, největší přehradě na Slovensku. Kdysi sem s dětmi jezdili pravidelně stanovat do kempu, nyní si v lokalitě vodním radovánkám zaslíbené pořídili srub.
Poohlíželi jsme se po nějakém víkendovém bydlení. Původně jsme zvažovali koupi a rekonstrukci starší chaloupky někde na samotě. Nakonec jsme však plány přehodnotili, a to jednak kvůli cenám, ale také kvůli bezpečnostním rizikům. Můžete mít sebelepší zabezpečení, ale chatu na samotě proti nevítaným návštěvníkům stejně nikdy zcela neochráníte.
Když jsme zjistili, že se u naší milované Liptovské Mary plánuje vznik druhého resortu vytvořeného ze srubů, dlouho jsme neváhali. Viděli jsme projekt Mara 1, který v nás vyvolával důvěru. Líbilo se nám, že developer nejdřív investoval do infrastruktury a až poté začal nabízet pozemky. I proto jsme si v areálu Mara 2 koupili pozemek jako jedni z prvních.
Plánovanou samotu jsme tak vyměnili za trochu rušnější místo, ale zase si můžeme užívat spoustu jiných benefitů, které to s sebou nese včetně bezprostřední blízkosti vody. Milujeme surfing a windsurfing a tady stačí nazout pantofle, vzít vybavení pod paži a za minutku jste na pláži. Developer se stará o ulice i o pláž – kosí trávu, vysazuje stromy, vytvořil posezení... a před nedávnem tu postavil i soukromý přístav. A tak tu můžeme kotvit náš člun.
Když se rozhlédneme z pláže, máme před sebou obří vodní plochu vybízející ke koupání či vodním sportům a na dohled z jedné strany Nízké Tatry, z druhé pak Vysoké Tatry s vrcholky stále ještě posypanými sněhem. Tedy výhledy, které si lidé spojují spíš s Novým Zélandem než se Slovenskem.
To máte wakeboardy, paddleboardy, pádla...
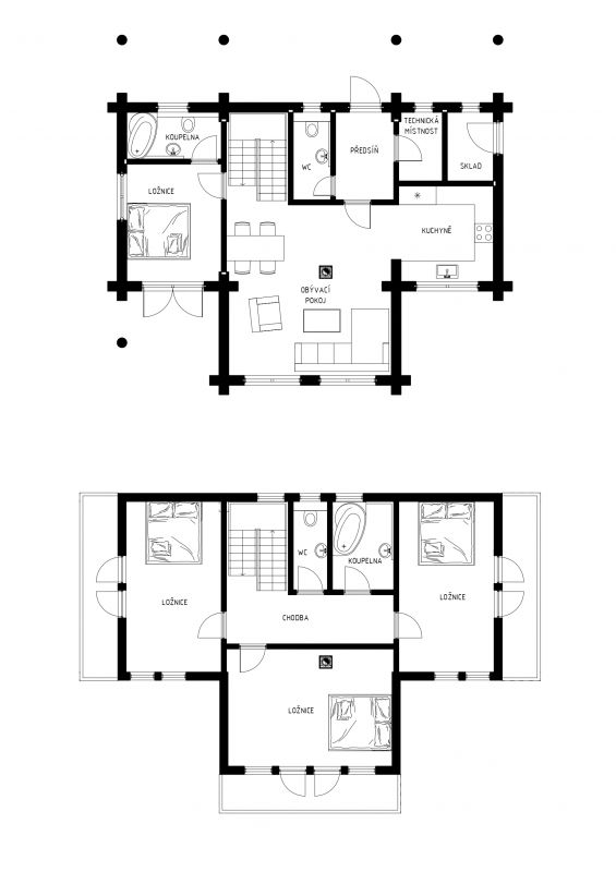
Když jsme se rozhodli pořídit si tu srub, naše základní požadavky byly, aby si tu mohla víkend pohodlně vychutnat čtyřčlenná rodina a k tomu vytvořit i zázemí pro hosty. Využili jsme nabídku z katalogu, kterou jsme s projektantem upravili. Vcházet se původně mělo do obrovské místnosti spojující skromné zádveří, obývák, jídelnu a kuchyni. Jenže my opravdu milujeme sport, což s sebou nese nároky na úložné prostory. S trochou nadsázky můžeme říct, že vlastně potřebujeme víc úložných prostor než těch obytných. Zádveří jsme si tak nechali upravit na šatník a skladové prostory.
Máme wakeboardy, paddleboardy, pádla a spoustu dalšího vybavení na vodu. Obývací pokoj je tak oproti návrhu menší, ale jsme za to řešení rádi. Ve spodní části srubu jsme nechali postavit i místnost pro hosty, která má nejen vlastní koupelnu s toaletou, ale také samostatný přístup na venkovní posezení. Nadchlo nás, že jsme si spodní patro mohli projít ještě předtím, než stavbu převezli na místo. V horním patře pak máme ložnici, pokoje pro naše dva syny a druhou koupelnu. Když přijde na věc, může se v našem srubu celkem pohodlně vyspat až dvanáct lidí.
Slovo dodavatele
Ze všech zákazníků našeho developerského projektu Mararesort byla spolupráce s panem Maruškou jedna z nejpohodovějších. Přesně věděl co chce, a když se náhodou jeho požadavky v průběhu projektování nebo výstavby změnily, uměli jsme jako zkušená firma pružně reagovat. Jen v jednu chvíli, ještě v ranném stádiu projektování jeho domu, vystrašil naše projekční oddělení otázkou, zda jeho srub už stojí. Do dnešního dne nevíme, jestli to myslel vážně nebo ne.

Ing. arch. Miloš Bronček
SRUBY RAJEC s.r.o.
Z elektromobilu do terénní čtyřkolky
Pozemek jsme koupili před čtyřmi lety a po dvou letech už jsme tu trávili první dny. Stavbu jsme přebírali jako hrubou, k některým dalším pracím jsme využili partnerské společnosti developera, ale například koupelny či podlahy jsme si zajišťovali sami. Jezdíme sem na víkendy či v létě takříkajíc změnit vzduch. To jsme promítli i do interiéru.
Žijeme v atypickém moderním rodinném domě, nemáme v něm ani pravé úhly, takže jsme museli hodně zainvestovat do nábytku. Tady jsme proto chtěli úplný opak. Jednoduchost, zaměření na poměr cena/výkon a odkazy na folklor. Zkrátka jak občas říkáme – z elektromobilu do terénní čtyřkolky. Proto stěny zdobí malby od domácího akademického malíře. Rádi nakupujeme i v antikvariátech.
V chladnějších měsících si užíváme také posezení u krbu. Udělá atmosféru a k tomu má velmi dobrý výkon. Máme tu ze všeho obrovskou radost, ale jednu chybu jsme přece jen udělali, týká se právě topení. Rozhodli jsme se pro podlahové, ale jen systémem odporového drátu, bez topného tělesa, bez rozvodu vody. Takže když už nestačí krb, jsme plně odkázáni na elektřinu, což se v posledních letech výrazně promítlo do nákladů na provoz.
Každému, kdo teprve staví, bychom doporučili nějaké flexibilnější řešení tak, aby se zdroj tepla dal měnit v závislosti na aktuálních cenách. Výhodou je aspoň to, že místnosti můžeme dálkově vytopit už dopředu, a to jen ty, které opravdu potřebujeme. Za dobré rozhodnutí naopak považujeme, že jsme srub jako jedni z mála zvedli. Myslíme, že z hlediska omezení vlhkosti se to vyplatilo. V zimě tu totiž bývá opravdu spousta sněhu. Jednou jsme v deset večer přijeli a do půlnoci frézovali, abychom se vůbec dostali dovnitř.
Celoživotní natěrači srubu
To, že jsme si pozemek pořizovali jako jedni z prvních, mělo i tu výhodu, že se nám se sousedy povedlo dohodnout na společné koupi prostředního pozemku, který jsme si mezi sebe rozdělili jako zahradu. Náš pozemek má tak plochu přibližně 750 m2, z toho je zastavěných jen kolem 300 m2. Z legrace tak říkáme, že náš labrador má větší prostor než my.
Dřevo je krásné, navíc skvěle drží teplo a v létě tu máme zase relativně chlad. Jen pořád natíráme. Každý rok. Náš rodinný dům máme také obložený dřevem, takže jsme vlastně takoví celoživotní natěrači. Synové jsou ještě mladí a zbožňovali život v kempu, takže nás občas ponoukají, abychom raději vyrazili tam. My jim na to říkáme, ať si klidně vezmou stan a jdou, vždyť je to odsud jen pár minut. Pokud jde o nás, kouzlo kempování jsme si také užívali, ale teď už jsme rádi za trochu pohodlí a komfortu. A toho se nám v našem srubu dostává bohatě.

Tato dřevostavba soutěží v anketě DŘEVOSTAVBA ROKU 2023
Pomozte nám zvolit nejhezčí dřevostavby! Tento srub na Slovensku se uchází o váš hlas v anketě Dřevostavba roku 2023 pod názvem "Ze stanu do srubu". Hlasujte do 21.1. 2023 v tomto kole a získejte atraktivní ceny...
Hlasovat v anketě
Technické parametry
- Užitná plocha: 145 m2
- Zastavěná plocha: 91,2 m2
- Konstrukční systém: přízemí masivní roubená konstrukce, podkroví montovaná dřevostavba
- Střešní krytina: betonová střešní krytina
- Ošetření stěn: exteriér - tenkovrstvá olejová lazura Kreidezeit, interiér - základový olej, včelí vosk
- Vytápění: krb, elektrické podlahové vytápění
- Podlahy: laminátová podlaha, na WC a v koupelně keramická dlažba
- Větrání: přirozené
- Realizace: květen 2019, SRUBY RAJEC, s.r.o., www.srubyrajec.cz
Autor článku: Radek Babička pro časopis sruby&ROUBENKY
Vaše komentáře (0)Nejnovější články v kategorii “Návštěvy dřevostaveb”
-
Apartmány s vůní dřeva
Když dědeček Soně a jejímu bratrovi odkázal v jihočeském Políkně kamenné stavení na krásném místě, sourozenci se rychle dohodli, že by mohlo, po rozsáhlejší rekonstrukci, sloužit…
-
Takhle to dopadne, když máte dům ve vlastních rukou
Andrej s Denisou původně pochází z podhůří Tater, po studiích se ale oba rozhodli zůstat v Česku. V pomyslném souboji mezi Brnem a Prahou nakonec zvítězila metropole, ale když čekali…
-
V dřevostavbě v Louňovicích se bydlení mění v zážitek
Když vám prozradím, že se v patře této dřevostavby v Louňovicích mimo jiné nachází i showroom, kde Pavel předvádí svým zákazníkům systém Loxone, jistě vás nepřekvapí, že je…
-
Tradiční roubenka s příběhem návratu domů
Navigace mě posílala do lesa, ale Josefova roubenka mi už od cesty naznačovala, abych odbočila na polní cestu. Kolem dokola jen louky a stromy, nebýt hájovny opodál, stála by tu jako…



























Vytvořeno v xart.cz