Redakce | Čtvrtek, 27. listopad 2025 |
Představte si malebnou horskou vísku, která z jedné strany přisedá k rozlehlé vodní ploše a z té druhé se choulí v horském objetí. Třpytící se hladina láká k plavání, plachtění i dalším vodním dobrodružstvím, zatímco lesy a louky Pošumaví nabízejí nekonečné trasy pro pěší i cyklisty. Každý rok do Lipna nad Vltavou míří stovky návštěvníků – mezi nimi i Aleš s rodinou. Ti sem jezdili tak dlouho, až se rozhodli, že je nejvyšší čas pořídit si zde vlastní zázemí.
S rodinou jezdíme na Lipno už zhruba 15 let, ale vždy jsme využívali pronájmy. Jenže se nám tady tak moc líbilo, až nás jednou napadlo, že bychom tu mohli vybudovat něco vlastního. Už od začátku nám byla blízká myšlenka krátkodobého pronájmu, což nás vedlo k přání vybudovat chalupu ve vysokém standardu, který jsme tu postrádali. Chtěli jsme zkrátka postavit hezké, dobře vybavené místo, kde se budeme cítit dobře. A povedlo se – líbí se nám tady víc než doma.
Během celého nápadu a jeho rozvíjení byl důležitý především výhled do krajiny. Ideální pozemek se podařilo najít poměrně rychle, vlastně náhodou. Ukázal mi ho známý a my jsme ho hned koupili. Sice šlo o první parcelu, která se naskytla, ale splňovala veškeré naše požadavky. Byla na hezkém místě s kompletní občanskou vybaveností v pěší vzdálenosti a nechyběl krásný výhled na vodní nádrž Lipno a přilehlé lesy. Jednoduše, nebylo co řešit.
Dřevostavba byla jasná volba
Dřevo jsme měli rádi odjakživa a pocitově nám k horám prostě patří – roubenka tak byla jasná volba. Díky zkušenostem z mnoha různých ubytování jsme si poměrně snadno ujasnili představu o vnitřním rozložení, různých vychytávkách a nadstandardním zařízení. Zbývalo jen zvolit materiál, dodavatele a architekta. Cíleně jsme se byli podívat v různých roubenkách a nejvíce nás zaujalo cedrové dřevo – krásně vonělo a vytvářelo úplně jinou atmosféru než třeba borovice. Tím se vlastně i výrazně zúžil okruh dodavatelů. Jednali jsme se dvěma firmami, ale nakonec pro nás byla rozhodující cena a blízkost zvolené společnosti.
Jelikož už jsme měli zkušenosti ze stavby rodinného domu, kde jsme si spoustu věcí řídili sami, měli jsme představu o objemu starostí spojených se stavbou svépomocí. Proto jsme neváhali a objednali si stavbu na klíč. Vlastně to ani jinak udělat nešlo – bydlíme u Prahy, takže bychom sem nemohli pravidelně jezdit a na stavbu dohlížet. Abychom měli jistotu, že vše probíhá správně, sjednali jsme stavební dozor a nastavili pravidelné kontrolní dny. Co šlo, vyřešili bez nás, a když bylo potřeba, přijeli jsme osobně. Věřím, že právě tato volba nám ušetřila spoustu času i nervů. Kdybychom měli vše zvládnout sami, roubenka by nejspíš dodnes nebyla hotová.

obr.: Na terasu si Aleš s Ivanou přáli použít exotickou dřevinu merbau, stejnou, jakou využili i u svého rodinného domu. Protože terasa směřuje na západ a nabízí pohled do krajiny, nechali pro pohodlné posezení i regulaci množství denního světla na jeden z trámů nainstalovat dodatečnou roletu, kterou lze podle potřeby kdykoliv stáhnout.
Roubenka postavená na klíč
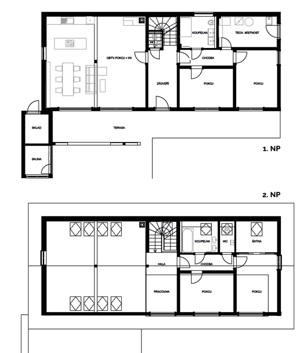
Nejvíce času zabrala příprava architektonického návrhu – dohromady trvala skoro rok a půl. Měli jsme poměrně jasnou představu a architekt doporučený dodavatelem ji úspěšně zhmotnil. Od začátku jsme chtěli maximálně využít nádherný výhled z parcely a přivést dovnitř co nejvíce denního světla. Základ tvořil velký společný prostor otevřený až do krovu, čtyři ložnice a koupelna na každém patře. Cílem bylo vytvořit místo, kde se pohodlně ubytuje i větší rodina či dvě rodiny s dětmi – a přitom má každý dostatek soukromí.

obr.: Přestože roubenka zabírá velkou část pozemku, zbylo místo i pro služby zahradní architektky. Aleš bez okolků přiznává, že veškeré vyřizování si vzala na starost manželka Ivana a spolu s architektkou vytvořila celý koncept osazení zahrady. Foto: Scan360.cz - Daniel Urban
Velký důraz jsme kladli také na celoroční relaxační využití. Proto už v návrhu nechyběla sauna a vířivka. Výhodou bylo, že náš pozemek měl už v době koupě vyřízené stavební povolení. Zařídilo se snad už před 20 lety na typizovaný dům a v průběhu let bylo jen prodlužováno. Vzhledem k záměru postavit úplně jinou stavbu bylo nutné stavební povolení změnit, ale díky profesionální pomoci vše proběhlo rychle a bez větších zádrhelů.

obr.: Požadavek na vzdušný charakter a bohaté přirozené světlo hlavního obytného prostoru se podařilo splnit do puntíku. Otevření do krovu dodává místnosti patřičný „wow“ efekt, zatímco pohledové cedrové dřevo vytváří příjemně teplou, hřejivou atmosféru, kterou je během chladných dní možné doplnit zatopením v krbu.
Foto: Scan360.cz - Daniel Urban
Během stavby jsme nenarazili na výrazná omezení – měli jsme štěstí na benevolentní územní plán a požadavek na maximálně dvě patra plus podkroví, takže jsme měli opravdu celkem volnou ruku. Trochu jsme narazili pouze v oblasti přesahu požárně nebezpečného prostoru na okolní pozemky v případě celoroubené konstrukce – proto se vlastně jedná o poloroubenku, severní a východní strana jsou postaveny ze sendvičových panelů, čímž se požárně nebezpečný prostor omezil natolik, aby nezasahoval na sousední pozemky.

obr.: Počtem oken a jejich umístěním majitelé chtěli dovnitř dostat maximum denního světla. Všechna velká okna navíc doplňují exteriérové žaluzie, které jednak umožňují kontrolu množství světla v interiéru i tepelného komfortu a jednak zvyšují pocit bezpečí.
Poučení pro příště
Samotná stavba trvala asi rok – začalo se v dubnu 2024 a hotovo bylo letos v červnu. Jak už to bývá, drobné komplikace se nevyhnuly ani nám, ale vždy jsme se s dodavatelem dokázali domluvit. Osobně mám tendence špatné věci spíše zapomínat, ale vybavuji si, že jsme měli problémy s dodávkou rolet. Vznikaly tam nějaké třecí plochy a tím se trochu zpozdila samotná dodávka i celá stavba – nešlo však o nic zásadního.
Na základě osobní zkušenosti jsme měli z minulosti ověřené některé subdodavatele, které jsme také našemu generálnímu dodavateli doporučili. Dnes už bychom to asi neudělali – jelikož se firmy navzájem neznaly a neměly vyzkoušenou spolupráci, organizace jednotlivých prací občas trochu skřípala. A někdy byl problém i najít termín, aby práce na sebe plynule navazovaly tak, jak jsme si představovali.
Co se týče technologií, jde částečně o chytrý dům – na dálku můžeme ovládat okna, rolety, topení a klimatizaci. V létě jsme roubenku zkoušeli předchladit i na dálku, ale brzy jsme zjistili, že nám stačí vychladit ložnice jen na spaní – jinak to nebylo potřeba. Dokonce se nám během chladných letních dní podařilo párkrát vyzkoušet krbová kamna, což vytvořilo moc příjemnou atmosféru. Do budoucna plánujeme ještě na střechu nainstalovat fotovoltaiku s baterií na přebytky – chceme si tím hlavně pomoci s provozem sauny a vířivky. K tomu by měla přibýt i dobíjecí stanice pro elektromobily, což našim hostům nabídne další vítaný komfort.


obr.: Inspiraci pro zařízení interiéru našel Aleš v našem časopise. Zaujala ho návštěva v cedrové roubence slavného fotbalisty Jana Kollera, kterou si díky možnosti pronájmu vyzkoušeli na vlastní kůži.

obr.: Všechny ložnice se, podobně jako zbytek interiéru, drží zásad minimalismu. Postele s nočními stolky doplňují vestavěné skříně či komody, přičemž jediným „nadstandardním“ vybavením jsou televize a klimatizační jednotky. Foto: Scan360.cz - Daniel Urban

obr.: Každé patro má vlastní koupelnu – dole se sprchovým koutem, v patře s vanou. Oproti zbytku interiéru zde dominují spíše světlé barvy, nicméně nechybí propojovací černý prvek v podobě desky pod umyvadly.
Slovo dodavatele
Zákazník od samého začátku přesně věděl, co chce, a díky tomu byla naše vzájemná komunikace rychlá a efektivní. Už v průběhu příprav bylo jasné, že půjde o jedinečný projekt, který se odlišuje od běžných staveb. Jsme moc rádi, že se vše podařilo dotáhnout do úspěšného konce a společnými silami jsme postavili krásnou, zcela unikátní cedrovou roubenku na Lipensku.

David Javorský
TABOR sruby-roubenky, s.r.o.
Dojmy z prázdnin
Zatím jsme roubenku užívali v rámci rodiny a díky tomu jsme včas odhalili drobné nedostatky. Třeba kolárna. Původně jsme tuto funkci plánovali svěřit technické místnosti. Jenže až během vlastního pobytu nám došlo, že ten prostor kapacitně stačí maximálně jedné rodině – jako nám s manželkou a dcerou. Honem jsme proto vymysleli řešení v podobě zahradního domku, který už čeká jen na smontování a při plném obsazení nabídne dostatečný prostor pro kola i lyže.
Zatím jsme nadšení – strávili jsme tu prakticky celé léto a v září se nám vážně nechtělo naskočit zpět do pracovního shonu. V roubence se lépe spí, dýchá a dřevo v interiéru vytváří příjemně teplou atmosféru, kterou žádný zděný dům nedokáže napodobit. Kdybychom se měli zpětně rozhodnout, jestli postavit roubenku, nebo klasický dům, ani na chvíli bychom nezaváhali – znovu bychom zvolili roubenku. Stejně tak jsme byli maximálně spokojeni s generálním dodavatelem. Pokud bychom se v budoucnu pouštěli do dalšího podobného projektu, rozhodovali bychom se už mnohem snáz – zvolili bychom opět stejnou firmu.

obr.: V bezprostředním okolí roubenky se nacházejí jak rodinné domky, tak chalupy určené ke krátkodobému pronájmu. Její poloha je skutečně výhodná – do centra se dostanete za několik minut pěšky z kopce, směrem nahoru zase leží vrch Kramolín se sjezdovkami a oblíbenou Stezkou korunami stromů. Nabídka aktivit v okolí je však mnohem širší.

obr.: Ačkoliv sauna plynule navazuje na roubenku, šlo o zakázku realizovanou subdodavatelem. Strategické umístění na terase doplňuje okno, které prostor otevírá směrem k přehradě.
Vše nakonec klaplo podle přání – pozemek s krásným výhledem, světlý a vzdušný design roubenky i moderní vybavení ve vysokém standardu.

obr.: V galerii v patře je šikovně umístěná pracovna s výhledem ven i do otevřeného krovu. Díky tomu jde hravě spojit příjemné s užitečným – jen se nabízí otázka, jestli zde bude člověk více pracovat, nebo se spíše kochat.

obr.: Přání krásného výhledu bylo rozhodně vyslyšeno – z terasy roubenky se otevírá panorama krajiny, které zahrnuje jak vodní hladinu přehrady, tak okolní bohaté lesy. Foto Scan360.cz - Daniel Urban

Tato dřevostavba soutěží v anketě DŘEVOSTAVBA ROKU 2025
Pomozte nám zvolit nejhezčí dřevostavby! Tato krásná roubenka se uchází o váš hlas v anketě Dřevostavba roku 2025 pod názvem "S výhledem na jihočeské moře". Hlasujte do 31. 12. 2025 v tomto kole a získejte atraktivní ceny...
Hlasovat v anketě
Technické parametry
- Zastavěná plocha: 152 m2
- Užitná plocha: 120 m2
- Konstrukční systém: roubenka z lepeného cedru a sendvičová dřevostavba systému NEMA
- Ošetření stěn: roubení z exteriéru neošetřeno, z interiéru olejovým nátěrem
- Střešní krytina: plechová krytina LINDAB CLIC
- Zdroj tepla: tepelné čerpadlo a klima jednotky
- Větrání: přirozeně okny
- Podlahy: převážně dřevěné
- Realizace: TABOR sruby · roubenky, www.tabor-wood.cz
- Pronájem: www.roubenkalipno.cz


Tento článek vyšel v časopisu sruby&ROUBENKY 4/2025
Objednejte si krásně vonící výtisk časopisu s kvalitními fotografiemi pouze za 99 Kč
koupit časopis
AUTOR ČLÁNKU: KAROLÍNA SVĚCENÁ pro časopis sruby&ROUBENKY
Vaše komentáře (0)Nejnovější články v kategorii “Návštěvy dřevostaveb”
-
Zrcadlová roubenka na soutoku
Majitel této roubenky – říkejme mu třeba Martin – měl jasný cíl: postavit svým dospělým dětem dům, kam by mohly o víkendech jezdit a být mu tak i s vnoučaty nablízku. A aby to…
-
Dřevěný domov v krajině rozlehlých luk
Tento příběh připomíná dokonalou pohádku o tom, kterak Kateřina a Jiří našli svůj vytoužený klid v podhůří Krkonoš. Jejich pozemek o rozloze dvaceti tisíc metrů čtverečních je…
-
Dávno splněný sen v podobě patrové dřevostavby na míru
Některé plány a nápady potřebují čas, aby mohly uzrát. Hluboko zapustit kořeny a trpělivě čekat na tu správnou dobu. Jako v tomto případě – poprvé totiž Milan na „svou"…
-
Dřevěná vila schoulená v náručí krajiny
Každý dům nevyhnutelně mění krajinu – jakým způsobem, to už záleží na jeho majitelích. Některé stavby přetvářejí okolí podle svého obrazu, jiné se naopak snaží splynout. A…
















Vytvořeno v xart.cz