Redakce | Pátek, 02. leden 2026 |
Některé plány a nápady potřebují čas, aby mohly uzrát. Hluboko zapustit kořeny a trpělivě čekat na tu správnou dobu. Jako v tomto případě – poprvé totiž Milan na „svou" dodavatelskou firmou narazil zhruba o šest let dříve, než s manželkou Karin vůbec začali uvažovat o stavbě domu. Byla to jednoduše láska na první pohled – a tak to nakonec i zůstalo.
Začalo to vlastně docela nevinně. Milan si rád na internetu prohlížel rubriky věnované novým domům a rekonstrukcím. Ačkoliv není odborníkem na stavebnictví, přiznává, že ho baví sledovat různé projekty, analyzovat dispozice a hledat způsoby, jak je ještě zdokonalit. Při jednom takovém brouzdání narazil na bungalov, který ho zaujal na první dobrou. Jenže tehdy byla stavba domu hudbou budoucnosti – naopak měli v plánu zrekonstruovat vlastní byt v Praze a dopřát mu otevřenější charakter. Na jeho zařízení si najali interiérovou designérku, která pomohla dát domovu konkrétní obrysy a vytvořit místo, kde se budou cítit skutečně dobře.
Uplynulo několik let a myšlenka na bungalov se Milanovi neodbytně vracela. Syn už vyletěl z rodinného hnízda, a tak si začal říkat, že je čas posunout se dál a vybudovat něco nového. Když poprvé přišel za Karin s nápadem postavit dřevostavbu, zhrozila se. Okamžitě si představila srub či roubenku. Jenže když jí Milan ukázal moderní domy firmy, která měla na svědomí i onen osudový bungalov, rychle změnila názor. Poměrně brzy se shodli, že právě takový dům by jim vyhovoval a chtěli by ho postavit se stejným dodavatelem.
Zkusili sice projít i nabídky jiných firem, ale pokaždé našli něco, co jim nesedělo. A tak se obloukem vraceli k tomu, co je oslovilo na první pohled. „Byli jsme se podívat i ve vzorovém domě a už jen jeho klima na nás udělalo velký dojem – to se se zděným domem nedá vůbec srovnat," vzpomíná Milan. „Plusem pro nás byly i použité technologie a samotné jednání dodavatele. Odcházeli jsme s pocitem, že jsme na správné cestě."
Pozemek jako zajíc v pytli
Přestože dodavatele vybrali poměrně snadno, s pozemkem to klaplo až na podruhé. Dlouhé roky žili na západě Prahy, kde se pohybovali i pracovně, a jak oba přiznávají, právě západním směrem je lákalo prostředí i příroda. Krátce po rozhodnutí postavit dům se jim naskytl pozemek kousek od metropole, ale z koupě na poslední chvíli sešlo.
„Nakonec jsme byli rádi – přišli bychom mezi starousedlíky a já jsem se tam cítila poměrně stísněně," vzpomíná Karin. Nějakou dobu trvalo, než se naskytla další reálnášance. Nakonec se ale díky doporučení od známé dostali k projektu jen o pár vesnic dál a tentokrát šlo všechno mnohem rychleji, a to navzdory období covidu. „První schůzku jsme absolvovali v respirátorech a pozemek jsme vybírali na obrazovce," vypráví dál.
„Dostali jsme čtyři možnosti s tím, že je o ně velký zájem. Schůzka proběhla v úterý odpoledne a již následující den ráno jsem potvrdila naše rozhodnutí pro jednu z nabízených parcel." Přestože jednání proběhlo v kanceláři, ještě ten den se na místo jeli podívat. „Potřebovali jsme si ho aspoň trochu prohlédnout a nacítit," doplňuje Milan. „Šlo o rozsáhlý developerský projekt, takže k samotným parcelám se tehdy vůbec nedalo dostat, ale prostředí celé vsi na nás působilo velmi příjemně."
Dřevostavba přesně podle představ
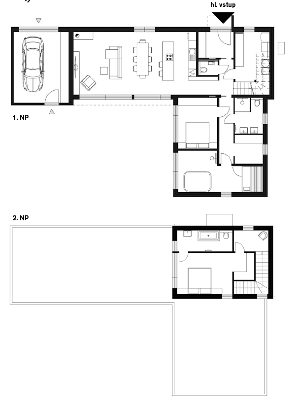
Když se pro stavbu domu definitivně rozhodli, chtěli ho maximálně přizpůsobit svým potřebám. Od původního plánu na bungalov však museli ustoupit – zakoupený pozemek měl podmínku patrové stavby. Bylo tedy jasné, že půjdou cestou individuálního návrhu. „Chtěli jsme jiné vnitřní dispozice a místo dětských pokojů jsme si vysnili odpočinkovou zónu se saunou a vířivkou," pokračuje Karin. Dům si přáli ve tvaru L, se zahradou orientovanou ideálně na jih a s co největším otevřením do tohoto směru. Od developera si zjistili přesnou polohu parcely a během plánování se na ni často chodili „naciťovat".
Trvalo ale téměř rok, než byly dokončeny inženýrské sítě a mohli pozemek konečně převzít. Při té příležitosti požádali developera, aby s nimi na místo zajel a oni se tak ujistili, že jsou na správné parcele. „Jel s námi v autě a najednou nás zastavil, že už jsme moc daleko. A měl pravdu – celý rok jsme se chodili dívat na sousední pozemek," směje se Karin. „Tak jsme se vrátili na úplný začátek." Ještě ten týden na místě proběhla schůzka s architektkou.
„Tehdy jsme zvažovali dva katalogové domy od dodavatele, jenže by musely stát obráceně, než jsme plánovali, a zahrada by směřovala na sever," vypráví Karin. „Měla jsem z možných řešení obavu, ale architektka nás uklidnila, že to nebude problém." Nakonec se podařilo skloubit jejich přání i stavební podmínky: dům ve tvaru L se otevírá na jih do zahrady a povinné patro ukrývá ložnici s koupelnou. „Až přijde čas na pohodlnější bydlení bez schodů, vyměníme si pokoje se synem: on dostane výhled, my pohodlí přízemí."

obr.: Terasu si manželé pořídili až letos, ale okamžitě si ji zamilovali. „Lodžie v bytě nám sice nabídla kousek venkovního prostoru, ale atmosféra tady je úplně jiná,“ říká Karin. „Moct si v klidu vychutnat kávu na zahradě nebo posedět u nedělního oběda – to je přesně ten komfort, po kterém jsme toužili.“ Foto: Martin Zeman
Slovo architekty
Klienti nás oslovili s pozemkem v nově vznikající zástavbě a s představou drobné úpravy vybraného typového domu. Po důkladném posouzení místních regulativů a orientace pozemku vůči světovým stranám se však ukázalo, že původní typový dům není pro danou situaci vhodný. Rozhodli jsme se proto pro individuální návrh, který lépe reagoval na specifika pozemku i na přání klientů. Ti kladli důraz na vytvoření soukromého prostoru v rámci zahrady a na promyšlené vnitřní uspořádání domu. Jako příjemný bonus se nám do návrhu podařilo začlenit také vysněnou wellness zónu.
Výsledkem je patrový dům, jehož dispozice majitelům aktuálně poskytuje klidné zázemí v ložnicích umístěných v patře. Do budoucna se však dům může proměnit ve funkční bungalov – majitelé se přesunou do přízemí, kde budou mít veškerý komfort, zatímco horní patro poslouží jako samostatná hostinská část. Společně s klienty jsme se shodli i na jednoduchém a nadčasovém pojetí vnějšího vzhledu domu. Ten v čase krásně vynikne v pečlivě navržené zahradě, s jejímž založením majitelé neváhali a pustili se do ní hned po dokončení stavby.

Ing. arch. Hana Kulová
LUCERN dřevostavby s.r.o.
Realizace jako na drátkách
Protože si manželé zvolili stavbu na klíč, dodavatel za ně vyřídil i veškeré formality spojené se stavebním povolením. „Měli jsme určité obavy z možných průtahů, ale nakonec se ukázalo, že bylo rozumné spolehnout se na jejich zkušenosti," říká Karin. Koncem července 2023 se konečně mohlo začít se základovou deskou. První dojem ale nebyl zrovna ohromující – Karin se zdála příliš malá. „Měla jsem pocit, že se nám do obýváku nevejde ani sedačka," kroutí hlavou. Protože to ze svého bytu měli na staveniště jen dvacet minut, jezdili se pravidelně dívat na postup prací. „Udělali jsme si z toho sobotní rituál," dodává Milan.
„Na dřevostavbách mě lákala rychlost výstavby, ale stejně nás překvapilo, jak rychle dům opravdu rostl." Pozitivní dojmy z jednání s dodavatelem se promítly i do samotné realizace – veškeré práce probíhaly přesně podle harmonogramu a díky přítomnosti stavebního dozoru měli manželé jistotu, že vše odpovídá projektové dokumentaci.

Foto: Martin Zeman

obr.: Jedním ze základních přání pro návrh domu byla velká okna směřující do zahrady. „I přesto jsme se trochu obávali, že s antracitovou kuchyní bude interiér příliš tmavý, ale nakonec spíš řešíme, kdy zatáhnout žaluzie,“ směje se Karin. Foto: Martin Zeman

obr.: Pro úpravu zahrady si manželé přizvali zahradní architektku, paní Danu Makrlíkovou. „Přáli jsme si, aby se zahrada nesla v tónech fialové a bílé – a paní architektka naši představu zrealizovala naprosto skvěle,“ říká Karin. „Během léta se tu postupně střídaly kvetoucí rostliny a zahrada si zachovala půvab i dynamiku po celé období. Byla radost se na ni dívat,“ popisuje Karin. Posezení v koutě zahrady má navíc strategické umístění – slunce sem svítí nejdéle, takže se tu dá pohodlně sedět i v chladnějších dnech. Foto: Martin Zeman
Bez zádrhelů to nešlo
V době, kdy se manželé rozhodli stavět, už se naplno projevoval růst cen ve stavebnictví. „Ekonomická situace se rychle měnila ve všech oblastech a od chvíle, kdy jsme koupili pozemek, šly ceny výrazně nahoru – než jsme dostavěli, bylo všechno podstatně dražší," povzdychne si Karin. Díky plánovanému využití rekuperace a dalších technologií si zažádali o dotaci Nová zelená úsporám – museli však provést několik úprav. „Bylo nutné splnit požadovaný standard a upravit pár parametrů, ale dnes z toho těžíme," dodává. Za okapy," vzpomíná Karin. „Vypadaly jako žirafy vyhlížející do krajiny. Byly tak výrazné, že jsme měli pocit, že je uvidí i ve vedlejší vesnici."
Oba přiznávají, že s přiznanými okapy původně souhlasili – tedy alespoň v principu. „Ve vizualizaci vůbec nebyly, takže jsme si jejich dopad na vzhled domu neuměli představit. Přišlo nám praktické je nechat venku kvůli údržbě. Jenže jakmile jsme je viděli naživo, bylo jasné, že si tenhle ‚praktický detail' bere až příliš pozornosti." Začali situaci řešit se stavbyvedoucím i majitelem firmy. „Naštěstí jsme našli řešení, které umožnilo okapy elegantně skrýt. Ano, byly to vícenáklady, ale výsledek za to stál."

obr.: Přidání patra nebylo jediným požadavkem spojeným s regulacemi v místě pozemku. Manželé museli dodržet i výšku plotu a stanovený odstup stavby od uliční čáry, zvolit přírodní odstín fasády a směrem do ulice navíc vysadit zeleň. Foto: Martin Zeman

obr.: Už během plánování se Milan jen tak mezi řečí zmínil, že má rád borovice – připomínají mu klid horského prostředí. „Stačila jediná poznámka a paní Makrlíková na ni nezapomněla,“ pochvaluje si. „Nakonec vybrala druh okrasných borovic, které skvěle zapadly do celého konceptu zahrady a zároveň jí dodaly osobní rozměr.“ Foto: Martin Zeman
Vůně domova
Hotový dům převzali začátkem února 2024, a to včetně připravené dokumentace ke kolaudaci. Zbývalo jen doladit několik detailů, ale protože je k odchodu z vlastního bytu nic netlačilo, rozhodli se nikam nespěchat. Nechali si proto u truhlářské firmy vyrobit kompletně nový nábytek a vše potřebné stěhovali postupně. V novém si však zvykli překvapivě rychle. „Zpočátku jsme si říkali, že při cestách do Prahy za kulturou nebo společenskými událostmi občas přespíme v bytě," vypráví Karin s úsměvem. „Ale nakonec se pokaždé vracíme sem – protože domov je už jednoznačně tady."
„A pokaždé nás překvapí ten kontrast. V Praze jsme bydleli v klidné části s bezproblémovými sousedy, ale přesto jde o obrovský rozdíl," doplňuje Milan. Jedním z důvodů, proč si na nové místo rychle zvykli, byli právě i obyvatelé okolních parcel – vesnice je nově vznikající, a tak jsou tu všichni tak trochu na stejné startovní čáře. Samotné stavby navíc posloužily jako nenucené téma k rozhovorům. „Každý si prošel podobnými fázemi stavby, rozhodováním i kompromisy. Bylo příjemné sdílet zkušenosti a porovnat si příběhy," dodává Karin. „Není to jako přistěhovat se do zavedené komunity starousedlíků, kde nový příchozí vzbuzuje spíš opatrnost než zvídavost."
V domě žijí přibližně rok a půl, přesto některé detaily ještě čekají na finální doladění. V nejbližší době plánují například instalaci fotovoltaiky, která by zlepšila energetickou bilanci domu. Celkově jsou však se svým novým domovem spokojeni. „Jsme opravdu rádi, že se dodavateli podařilo proměnit náš sen v realitu – a to způsobem, který plně odpovídá našim představám," pochvaluje si Karin. „Bydlení si tu užíváme," doplňuje Milan. „Pro mě osobně je to ideální podoba domu pro 21. století – moderní architektura, chytré technologie a vysoký uživatelský komfort."

obr.: Ačkoliv se Karin obávala, že vnitřní dispozice domu bude malá, vše potřebné se dovnitř hravě vešlo. Na zařizování interiéru spolupracovali se stejnou interiérovou architektkou, se kterou realizovali i rekonstrukci bytu, paní Magdalénou Lacenovou. Dokonce zvolili podobný koncept – minimalismus laděný do přírodních barev, Karin si poté vybrala doplňky v akcentním petrolejovém odstínu. Foto: Martin Zeman

obr.: Jelikož manželé nepotřebovali dětské pokoje, zařídili si vlastní wellness zónu s přístupem na zahradu. Její podoba ale ještě není definitivní. „Součástí plánované zóny je i vířivka, kterou už máme vybranou a čekáme jen na její dodání,“ vysvětluje Karin. Foto: Martin Zeman

obr.: Novinkou jsou také vyvýšené záhony se zeleninou a několik ovocných keřů. „Stále se učím, jak jednotlivé rostliny správně pěstovat – často metodou pokusů a omylů,“ směje se Karin. „Ale mít možnost sklízet čerstvé ovoce a zeleninu přímo ze zahrady je k nezaplacení,“ doplňuje ji Milan. Foto: Martin Zeman

Tato dřevostavba soutěží v anketě DŘEVOSTAVBA ROKU 2025
Pomozte nám zvolit nejhezčí dřevostavby! Tato dřevostavba se uchází o váš hlas v anketě Dřevostavba roku 2025 pod názvem "Na stejné startovní čáře". Hlasujte do 31.12. 2025 v tomto kole a získejte atraktivní ceny...
Hlasovat v anketě

obr.: Zatímco v koupelně v patře je vana, v přízemí se nachází sprchový kout. Původně manželé plánovali úplné oddělení toalety, nakonec ale z důvodu úspory místa zvolili symbolický dřevěný panel, který obě části vymezuje. Foto: Martin Zeman

obr.: Podobně jako zbytek interiéru jsou i obě koupelny zařízeny v minimalistickém stylu s kombinací neutrálních a přírodních barev. Jediný výrazný prvek představují ručníky a koupelnová podložka v různých odstínech modré. Foto: Martin Zeman
Technické parametry
- Typ domu: nízkoenergetický
- Zastavěná plocha: 172,75 m2
- Užitná plocha: 171,4 m2
- Dispozice: 5 + kk + garáž
- Konstrukční systém: lehký skelet, sendvičový panel LUCERN Eko Plus, difuzně uzavřená skladba
- Zdroj energie / teplo: tepelné čerpadlo IVT vzduch/voda
- Součinitel prostupu tepla stěnou: U=136 W/m2K
- Autor arch. návrhu a projektu: LUCERN dřevostavby s.r.o.
- Interiérová designérka: Mgr. art Magdaléna Lacenová, LAMA atelier
- Zahradní architektka: Ing. Bc. Dana Makrlíková, LEONE GARDEN, s.r.o.
- Realizace: 2024, LUCERN dřevostavby s.r.o., www.lucern.cz


Tento článek vyšel v časopisu DŘEVO&stavby 6/2025
Objednejte si krásně vonící výtisk časopisu s kvalitními fotografiemi pouze za 119 Kč
koupit časopis
AUTOR ČLÁNKU: KAROLÍNA SVĚCENÁ pro časopis DŘEVO&stavby
Vaše komentáře (0)Nejnovější články v kategorii “Návštěvy dřevostaveb”
-
Zrcadlová roubenka na soutoku
Majitel této roubenky – říkejme mu třeba Martin – měl jasný cíl: postavit svým dospělým dětem dům, kam by mohly o víkendech jezdit a být mu tak i s vnoučaty nablízku. A aby to…
-
Dřevěný domov v krajině rozlehlých luk
Tento příběh připomíná dokonalou pohádku o tom, kterak Kateřina a Jiří našli svůj vytoužený klid v podhůří Krkonoš. Jejich pozemek o rozloze dvaceti tisíc metrů čtverečních je…
-
Dřevěná vila schoulená v náručí krajiny
Každý dům nevyhnutelně mění krajinu – jakým způsobem, to už záleží na jeho majitelích. Některé stavby přetvářejí okolí podle svého obrazu, jiné se naopak snaží splynout. A…
-
Dřevostavba v zátiší s lekníny
Na dohled od jihovýchodního okraje Prahy se ocitáme na pohádkovém místě, které byste nedaleko rušné silnice nečekali. Nás však usměvavá paní domu pozvala dál, a tak můžeme…
















Vytvořeno v xart.cz