Redakce | Pátek, 02. leden 2026 |
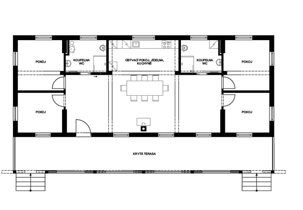
Majitel této roubenky – říkejme mu třeba Martin – měl jasný cíl: postavit svým dospělým dětem dům, kam by mohly o víkendech jezdit a být mu tak i s vnoučaty nablízku. A aby to bylo fér, nechal jim ji postavit osově souměrnou – ložnice jsou zrcadlově otočené a mezi nimi se nachází společný rodinný prostor. Když se tedy naskytl vhodný pozemek v požadované lokalitě, Martin ani na chvilku nezaváhal.
„Mám rád jednoduché věci, jako je kámen a dřevo. Dřevěné domy se mi líbily odjakživa," pouští se do vyprávění, sotva usedneme ke stolu uprostřed hlavního prostoru, „a vždycky jsem si chtěl nějaký postavit." Kromě praktického řešení si tedy zároveň plnil i svůj sen. V našich časopisech se inspiroval ohledně realizačních firem, u první oslovené však nakonec neuspěl.
„Měli krásné severské dřevo – mnohem hustší a tvrdší než naše, protože roste v těžších podmínkách, ale jejich nabídka byla omezená typovými řešeními, která nevyhovovala mojí představě." Jednání o případném individuálním řešení se vzhledem k nutným konzultacím v zahraniční mateřské společnosti na jeho vkus příliš vlekla, a tak se poohlédl po jiném dodavateli. „I díky tomu, že sídlí poblíž, jsem objevil pana Haniše – a tam bylo naopak všechno rychlé a pružné."
Neobvyklé parametry roubenky
Jak vůbec přišlo na požadavek atypického řešení? Překvapivě za tím primárně nebyla potřeba dvou stejných jednotek, ale výčet toho, co by dům obsahovat neměl. „Vycházel jsem z toho, co nemám rád: lustry, chodby, střešní okna, balkony a klimatizaci. Naopak se mi líbí staré domy, jaké se stavěly třeba před sto lety – vcházelo se rovnou do místnosti, kde rodina žila pospolu, ne do chodby. Z té hlavní světnice se pak šlo do ložnice."
Jako základ tedy zvolil jeden typový projekt předchozího zvoleného dodavatele a projektant mu ho upravil podle potřeb. „Nelíbila se mi toaleta uprostřed, takže ji posunul a vyšla z toho tahle symetrická varianta: čtyři ložnice, dvě koupelny a společný prostor s kuchyní." Při našem povídání u jídelního stolu se tedy netradičně nacházíme na ose domu. „Jestli to je ideální řešení, netuším," pokrčí Martin rameny, ale je na něm vidět, že osobně je s výslednou podobou roubenky spokojený. Stejně jako jeho děti. „Ještě tu nebydlí tak dlouho, ale úspěšně si zvykají."
Konkrétní podoba domu
S povolením na roubenku uprostřed tradiční zděné výstavby problém nebyl. „Na základě územního rozhodnutí obce byly podmínkou pouze sedlová střecha, štít do ulice a maximálně obytné podkroví, nic vyššího." Jediný problém řešil odbor životního prostředí. „Chtěli, abych tu roubenku postavil na stejném místě, kde býval původní dům. Nicméně před nějakými sto lety nebyla elektřina ani plyn, topilo se v kamnech na chodbě, na kterých se zároveň celoročně vařilo. Takže se domy stavěly tak, aby neměly žádná okna na jih a dalo se v nich v létě vydržet." Orientace na sever včetně vchodu by ale dnes byla nepraktická, a tak se nakonec na jiném umístění stavby dohodli.
„Před lety se tu vylil potok a parcela je pod úrovní komunikace, proto jsme dům zvedli," vysvětluje Martin finální řešení roubenky. „Lehkou inspirací mi bylo i Japonsko, které mám rád – tam jsou všechny domy takhle zvednuté. Tady je navíc jílovité podloží, takže ta roubenka stojí na čtyřiadvaceti pilotech. Ty společně s metrovou základovou deskou samozřejmě realizaci dost prodražily, ale bylo to třeba a dům je díky tomu nesmírně pevný – jen tak s ním něco nepohne."
Na stavbu byl použit smrk z nadmořské výšky nad 600 m, konkrétně z nedalekých hor, který byl na přání investora z vnější strany natřen na tmavo. „Až tam přijde druhá vrstva ke sjednocení barvy, bude ještě tmavší. Tak jsem si to přál a představu jsem si utvrdil, když jsem v jednom francouzském lyžařském středisku viděl, jak jsou tam všechny tmavé a jak dobře to vypadá."

Foto: Martin Zeman
Sázka na zkušenost
Interiéru naopak vládnou zlatavé a světlé odstíny, včetně rakouských dýhovaných dveří, které Martin původně chtěl vyšší, a podlahy, která ho těší přiznanými suky v dřevěné dýze. Detail ohledně dlažby okolo kamen pak okoukal ve vzorovém dvoře dodavatele stavby. „Kde přesně bude dřevo a kde bílé stěny, to jsem nechával na odbornících. Interiérová architektka, paní Pustějovská, navrhla otevřený strop a původně plánovala vytvořit i vyvýšené spaní z dětské ložnice. Od toho jsme ale nakonec upustili a je tam jenom úložný prostor," ukazuje.
Atmosféru kuchyně dotváří ručně kované háčky na zavěšení stylového nádobí i retro lednice, která svou oranžovou barvou vytváří zajímavý akcentní prvek prostoru. „Architektka navrhovala černou, která by přirozeně doplnila ostatní zařízení, ale já mám rád, když se to naopak jedním kusem rozbije. V čem jsem ji naopak poslechl a udělal jsem asi dobře, je okno nad kuchyňskou linkou – to jsem původně nechtěl, ale přesvědčila mě. I když to bylo na úkor skříněk a nedá se k němu dobře dostat, když potřebuje umýt, interiér by byl jinak hodně tmavý."

obr.: Sofistikované systémy osvětlení mohou interiéru dopřát několik variant atmosféry. Prostoru dominují litinová krbová kamna, která ale slouží převážně jako dekorace. K vytápění postačí podlahový systém. Foto: Martin Zeman

obr.: Jako v zemi za zrcadlem si mohou připadat Martinovy děti, které sem jezdí na víkendy. Jejich ložnice a dětské pokoje jsou totiž situovány osově souměrně, přičemž na ose sedí kuchyň a jídelní stůl. Foto: Martin Zeman
Světlo ruku v ruce s teplem
Na „vině" šera uvnitř je v tomto případě krytá terasa – je to ovšem záměr. „Vzhledem k orientaci na jih jsem na ní takto trval. Brání slunečním paprskům přehřívat interiér, takže i když je venku opravdu horko, tady uvnitř je příjemně." Celkové vyznění interiéru pak výrazným způsobem ovlivňuje osvětlení – jsou tu instalovány hned tři různé okruhy, jejichž rozsvícení s prostorem dokáže skutečné divy. Zejména bodová svítidla zapracovaná přímo do dřevěných trámů ve zkosení podhledu je opravdu efektní, stejně jako světelné kužely mířící na jednotlivé obrazy s dobovými fotografiemi, které spoludotváří jakýsi tradiční dojem.
O tepelný komfort se stará podlahové topení ovládané plynovým kotlem. „V těch litinových krbových kamnech se asi nikdy topit nebude, pokud bude plyn. Jsou sice moc hezká, ale také velmi výkonná – za dvě hodiny by to tu z 5 stupňů vytopila na 23 a pak by se muselo větrat. Tah je tu dobrý, stačilo by, aby v nich plápolalo jedno polínko. Jak to bude v zimě, se ještě neví – letos to bude první zkušenost. Dům byl dokončen minulý podzim, ale děti se stěhovaly až na jaře." I vzhledem k bezpečnosti malých vnoučat budou spoléhat na výhřevnost topení v podlaze.

Foto: Martin Zeman

obr.: Každé z dětí má na jedné straně domu ložnici pro sebe a dětský pokoj. Obklopeni voňavým dřevem v optimistickém medovém tónu se zde mohou o víkendech krásně a zdravě vyspat. Foto: Martin Zeman

obr.: I koupelnu Martin dopřál každému dítěti svou, a nechal proto projekt upravit. Společným rodinným víkendům tak nebrání opravdu nic. Foto: Martin Zeman
Dřevo schne a pracuje
„Dalším překvapením, které jsem zjistil až v průběhu stavby, pro mě bylo, že i roubenka si sedá, a to dokonce o 7 cm na metr," přiznává Martin. „To jsem si předem nezjistil, ani tak by to ale na mém rozhodnutí nic neměnilo. Vycházelo to na 17 cm, ale stavba si zřejmě sedala rychleji, takže jsme ji v jednu chvíli museli heverem zvednout."
Výrobci roubenek samozřejmě s přirozeným sesycháním a sedáním dřeva počítají, a proto se například okna a dveře neusazují přímo do stěnového masivu, ale do speciálních montážních (kompenzačních nebo kluzných) rámů. V tomto případě zřejmě trámy nebyly uříznuty všechny ve stejnou dobu – což je patrné i na tom, že jinak nasály barvu. Dům ale celkově pracuje až pět let a bude-li třeba, výsledný vzhled se dodatečně upraví obložkou na míru.

obr.: Atmosféru kuchyně dotváří ručně kované háčky na zavěšení stylového nádobí i retro lednice, která svou oranžovou barvou vytváří zajímavý akcentní prvek prostoru. Díky oknu nad kuchyňskou linkou je interiér lépe prosvětlený. Foto: Martin Zeman
Zahradní relax
Neodolám a posadím se s Martinem na chvíli na jeho lavičku u potoka – další plánuje ještě umístit k soutoku. Dokonalý klid láká k rozjímání a okolo nás se prohánějí vážky. „Zvířatům se tady líbí. Jsou tu hadi, dvě hejna kachen a při sekání mi tu běhají obrovské nutrie." Z dálky obdivuji střechu bez okapů pokrytou stylovými modřínovými šindeli a funkční pumpu, posazenou na kopané studni. „Čerpadlům nevěřím, takže tu žádné není. Dům je samozřejmě napojený na kanalizaci i vodovod, ale voda z té pumpy nám nedávno při blackoutu přišla náramně vhod."
Přírodní materiály má Martin zjevně opravdu rád. „Železo nebo sklo se vám časem okoukají, dřevo nikdy. Stejně tak se vždycky stavělo z kamene – ten je věčný." Ani tuhle jeho slabost nelze přehlédnout – český kámen je nejen na domě a na plotě porostlém psím vínem, ale jeden mohutný solitér o váze 7,5 tuny a výšce 4,5 metru (metr je zakopán v zemi) se vypíná na pohledovém místě uprostřed dokonale střiženého trávníku a v noci je dokonce osvětlený. Další Martinovou preferencí je jednoduchost. „Ta je nadčasová. Proto tu nejsou žádné květiny, jen ovocné stromy a okrasný javor. Ke schodům nechci dávat ani zábradlí, děti si zvyknou."

obr.: Krytá terasa chrání dům z jižní strany proti přehřívání interiéru. I během opravdu horkých dní je tak uvnitř příjemné klima. Foto: Martin Zeman

obr.: Dřevo, kámen a jednoduchý trávník stylově doplňuje střecha s modřínovými šindeli. Foto: Martin Zeman

obr.: S pozemkem sousedí ze dvou stran potoky, u nichž si Martin pořídil rozjímací místo. Kromě hadů a vážek ho sem chodí pozdravit i kachny či nutrie.
Foto: Martin Zeman
Chvála na dodavatele
„Nic bych tady neměnil, neudělal jinak," hodnotí Martin zpětně. „S panem Hanišem bylo všechno úplně v pořádku, domluvili jsme se na všem. Pokaždé to byla otázka deseti minut a bylo vyřešeno. Doporučil mi projektanta, pana Vlčka, a i tam jsme měli během dvou hodin hotovo." Nemůže si vynachválit i pracovníky, kteří před jeho očima roubenku stavěli. „Byli skvělí, dělali to ve dvou a trvalo jim to snad jenom nějaké tři čtyři měsíce. Problémy jsem tady za celou dobu měl jen s doporučenými instalatéry, ale přímo s dodavatelem stavby a jeho lidmi vůbec – ty můžu jednoznačně doporučit."

obr.: Láska majitele domu k přírodním materiálům, speciálně dřevu a kameni, je na první pohled patrná. Roubenka stojí na pilotech kvůli jílu a je preventivně vyvýšena z důvodu blízkosti dvou potoků. Foto: Martin Zeman
Slovo dodavatele
Na téhle roubence jsme pracovali s opravdovým potěšením. Už od samého začátku jsme si s investorem sedli – shodli jsme se na tom, že má smysl promýšlet každý detail. Ať už šlo o konstrukční řešení, nebo výběr materiálů do interiéru i exteriéru, všechno jsme společně ladili tak, aby výsledek opravdu stál za to.
Skvěle se nám spolupracovalo také s projektantem Danielem Vlčkem a architektkou Jiřinou Pustějovskou – každý přispěl svým pohledem a zkušenostmi, což bylo pro celý projekt velkým přínosem. Stavba samotná pak probíhala hladce, podle schválených podkladů a ve vzájemné důvěře. A to je vždycky nejlepší recept na dům, který bude dobře sloužit a přinášet radost. Majitelům přejeme, ať se jim v roubence krásně žije, a vítáme je mezi milovníky dřeva a poctivého řemesla – mezi pravé roubenkáře.

Pavel Haniš
majitel společnosti Haniš srubové domy s.r.o.

Tato dřevostavba soutěží v anketě DŘEVOSTAVBA ROKU 2025
Pomozte nám zvolit nejhezčí dřevostavby! Tato krásná roubenka se uchází o váš hlas v anketě Dřevostavba roku 2025 pod názvem "Zrcadlová roubenka na soutoku". Hlasujte do 31. 12. 2025 v tomto kole a získejte atraktivní ceny...
Hlasovat v anketě
Technické parametry
- Zastavěná plocha: 126 m2
- Užitná plocha: 106 m2
- Dispozice: 5 + kk
- Konstrukční systém: obvodové masivní stěny ze smrku, vnitřní nosné příčky z cihelných bloků
- Ošetření stěn: olejová lazura Delta
- Střešní krytina: modřínový šindel
- Zdroj energie / teplo: plynový kotel – podlahové teplovodní topení
- Větrání: přírodní
- Podlahy: keramika, dřevo
- Autor arch. návrhu: Ing. arch Jiřina Pustějovská
- Projekt: Daniel Vlček
- Realizace: 2023, Haniš srubové domy s.r.o., www.srubovedomy.cz


Tento článek vyšel v časopisu sruby&ROUBENKY 4/2025
Objednejte si krásně vonící výtisk časopisu s kvalitními fotografiemi pouze za 99 Kč
koupit časopis
AUTOR ČLÁNKU: DAGMAR DIGMA ČECHOVÁ pro časopis sruby&ROUBENKY
Vaše komentáře (0)Nejnovější články v kategorii “Návštěvy dřevostaveb”
-
Dřevěný domov v krajině rozlehlých luk
Tento příběh připomíná dokonalou pohádku o tom, kterak Kateřina a Jiří našli svůj vytoužený klid v podhůří Krkonoš. Jejich pozemek o rozloze dvaceti tisíc metrů čtverečních je…
-
Dávno splněný sen v podobě patrové dřevostavby na míru
Některé plány a nápady potřebují čas, aby mohly uzrát. Hluboko zapustit kořeny a trpělivě čekat na tu správnou dobu. Jako v tomto případě – poprvé totiž Milan na „svou"…
-
Dřevěná vila schoulená v náručí krajiny
Každý dům nevyhnutelně mění krajinu – jakým způsobem, to už záleží na jeho majitelích. Některé stavby přetvářejí okolí podle svého obrazu, jiné se naopak snaží splynout. A…
-
Dřevostavba v zátiší s lekníny
Na dohled od jihovýchodního okraje Prahy se ocitáme na pohádkovém místě, které byste nedaleko rušné silnice nečekali. Nás však usměvavá paní domu pozvala dál, a tak můžeme…
















Vytvořeno v xart.cz